查看完整案例


收藏

下载
“千家门对水,十里岸横舟。鸭脚林中寺,鹅黄柳外楼。”这首清朝王初桐诗作中描写的景象,就是以漕运兴起而得名的泊头。流淌了数百年的大运河,承载的不仅仅是贯穿南北的交通,更是流动的文化。
泊头运河餐厅,
生长于运河之岸,深耕于运河美食。
阿璞设计以“灵动运河文化”为设计主线,
将运河文化融入其中,
使得整个餐厅处处透露出一种独属于运河的、
至柔至刚的气息。
进入门厅,简洁、硬朗的现代装饰,
掩映着的茂林修竹,
与散发着晕染般古铜色的灯笼, 交相辉映,
是现代与远古的完美交汇、融合。
璀璨的灯带、晶莹剔透的镜面天花设计,
将人的视野拉高,
没有逼仄压抑,只有流光溢彩。
一个转身步入餐厅,
顿有一种误入“桃花源”的豁然开朗。
明档台处古铜拉丝不锈钢的装饰中,
呈现出山水层峦叠嶂、连绵不绝的姿态,
散发着如流珠般的光华,典雅、大气、高端,
将运河的气韵开始渐次予以呈现。
抬眼望去,头顶灰色的镜面天花板,
展现了水墨般的古韵。
在灯光的映衬下,泛着粼粼的波光,
让人仿佛感受到水波涌起的澹澹。
如梦如幻,如影随形,视线随之而去,
整个空间的延伸感也得到了拓展。
等待上菜就餐期间,您坐在舒适的沙发卡间,
透过敞亮的落地玻璃,欣赏着窗外的景致,
绿色将会让心情舒缓下来。
您还能发现,
以黑白两色突出的运河蜿蜒连绵的身姿,
这是独属于泊头大运河的美丽弧线。
是不是再次折服于家乡的美?
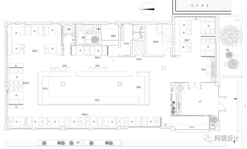
餐厅各个区域功能划分清晰,
用餐区、明档台、等位区位置布局合理,
整个动线就呈现出一种流线的美,恰如流水通衢自然而不繁琐。
跟随服务员的脚步,坐于舒适的餐桌旁,
您还可以欣赏到一帧帧古运河的老照片。
扁舟浮于河上,摇桨拍起波光,舟楫泊于岸边,
河上的人看风景,岸上的人看河中,
好一派古运河风光。
除了着眼于大处,
设计师的匠心还体现在一些细节上。
充满古风气息的花瓶、插花,
在餐厅内随处可见,
既是一种美丽的点缀,
又营造出了一种雅致的古韵。
在这里,有古典与现代的优雅碰撞,
有对运河文化的展现与承载,
在这里让我们静下来、慢下来,
欣赏运河的水之至美,品尝地道的美食美味。
这,也是设计师最想传达出的韵味与意境!
一层平面图
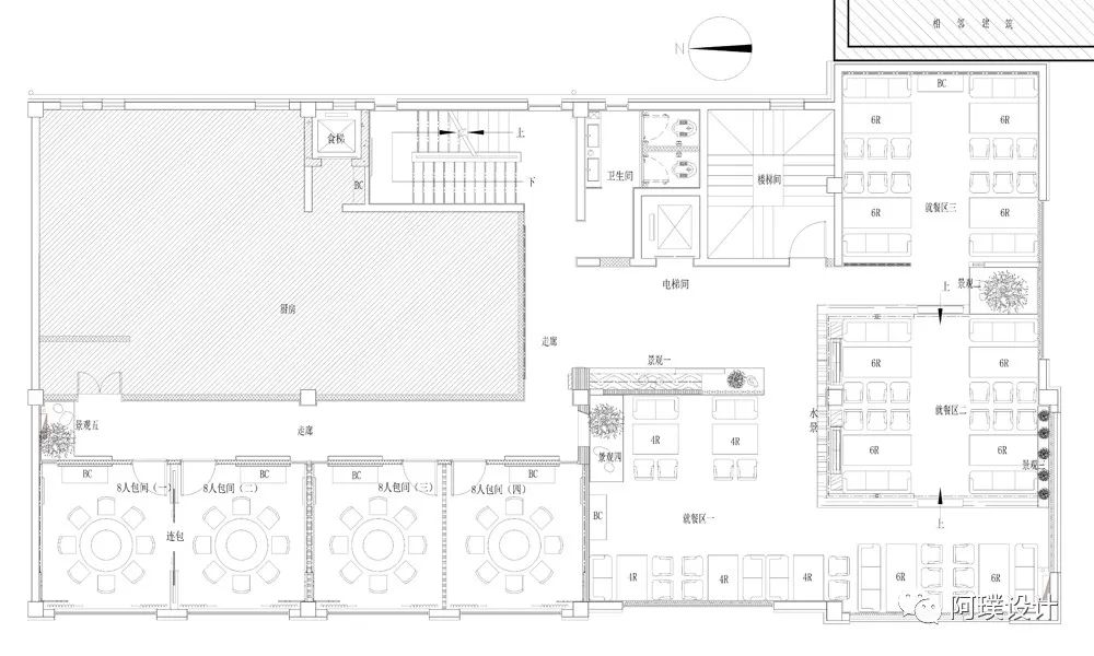
二层平面图
项目名称:
泊头运河印象餐厅
项目地址:沧州泊头市
项目面积:750平米
设计时间:2019年11月
设计团队:石家庄阿璞装饰设计有限公司
长按了解我们
业绩展示
邢台临西润凯九玺台售楼部
泊头运河印象餐厅
辛集天邦润泰会所
山西平遥冠云清华苑售楼部
辛集同益嘉禾样板间
石家庄丽人造型(省电视台店)
唐县隆昌包子铺(国防路店)
辛集律师事务所
石家庄华北汽车文旅小镇会所
唐县隆昌包子铺(广场店)
辛集同益嘉禾地产售楼部
望都隆昌豆捞
辛集润城悦府精装样板间
辛集润城悦府新售楼部
辛集天邦润泰别墅样板间
辛集合院别墅样板间
辛集合院会所
辛集润城悦府高层样板间
唐县隆昌包子铺(东环店)
任丘绿洲金棕榈时代广场电玩城
任丘海升国际酒店
邢台闫记四角香锅贴
唐县隆昌包子铺(县医院店)
石家庄世纪华茂教育机构
辛集锦园售楼部改造
辛集锦园样板间
辛集天润广场写字楼样板间
辛集天润广场设计
雄县永平烤鸭餐厅
唐县海乐迪主题KTV
石家庄烤宴餐厅
大理简宿民宿
宁晋宁坊宾馆
宁晋上城华府售楼处
宁晋上城华府地产办公楼
宁晋县文化馆(改造)
唐县金泰水上乐园
唐县隆昌洗浴改造
北京园博园酒店
宣化宾馆改造
石家庄辣小馆餐厅
唐县金泰国际酒店餐厅
石家庄嘉泽会所
张家口鸿金溢会所
阜平天祥国际假日酒店
石家庄悟味餐厅
唐县隆昌蓝波湾国际娱乐城
唐县隆昌假日酒店
石家庄欧韵精品酒店
辛集皮都国际酒店
宣化世纪王朝大酒店
北京张家口饭店
石家庄青瓦台洗浴
新疆巴州宾馆
……
客服
消息
收藏
下载
最近


















