查看完整案例


收藏

下载
本案设计师与业主合影
PrejectLocation
项目面积|套内 145㎡
ProjectArea
项目地点|锦都玫瑰园
ProjectTeam
设计公司|质鼎国际设计
设计师|雷佳佳
ProjectStyle
项目风格|意式极简
▼P
R
O
G
R
A
M
M
E
SHOW
方案展示
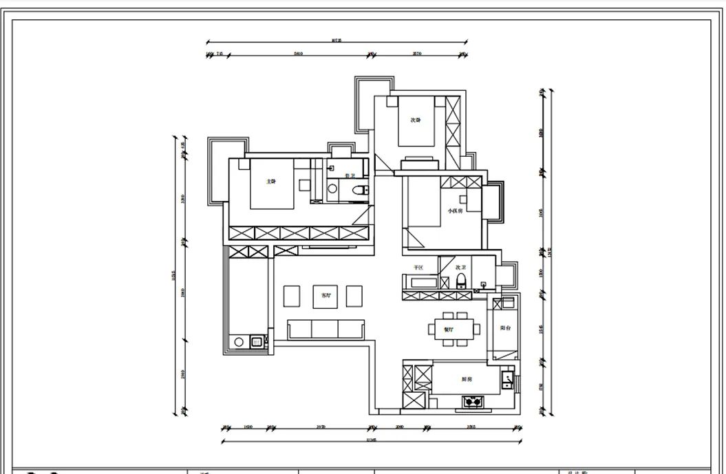
▲原始平面图▲
装修需求:
屋主对空间储物要求比较高,喜欢极简高级感,整体设计需要大气;母亲一起住帮忙带小孩,保留三间卧室,原始结构不需要大改,主要在色彩和材质方面搭配比较注重。设计师为其打造了这套意式极简风,整体有空旷的感觉,搭配温馨且大气,收纳充足。
▲平面方案图▲
设计思路:
建筑面积 145m²,除去公摊,套内面积 110m²左右;原户型规划比较合理,只需做一些微小的调整,使用变得更加合理。
入户处厨房墙做了调整,使入户处有鞋柜收纳之外厨房也可以摆放下冰箱;另外主卧将门洞往右边移了一些,使左边墙面可以设计满排的衣柜,收纳非常充足。
客厅
白色+原木色的搭配,在柔和的光线下整体空间显得非常温馨大气!
客厅摒弃笨重的茶几设计,大面积留白,搭配一张好看的地毯,使整个空间变得明亮通透,极简的设计感,视觉效果也非常好。
电视背景墙两边用格栅装饰,定制同色号电视柜,长度拉伸到底,整体比例更加协调。
客厅与阳台之间没有移门阻隔,空间更加通透明亮。极简的设计,顶面用点光代替主灯,经典耐看的色彩搭配,干净利落的线条,整个空间丰富又和谐。
一张懒人沙发靠阳台摆放,给人慵懒、轻松的感觉~南北通透的空间也带来良好的通风效果,落地窗的设计也在视野上非常突出,且明亮。
南北通透的空间也带来良好的通风效果,落地窗的设计也在视野上非常突出,且明亮。哆啦 A 梦给人一种童年梦的感觉~餐厅
餐厅与厨房之间一门之隔,做好的饭菜可以直接端至餐桌上,动线非常合理。
木质的温馨与白色的纯粹,黑色在其中作为点缀,彼此中和,使空间具有层次感。
开放式的餐厨设计,可给人一种非常大气的感觉,可以增加空间的延展性,让整体显得更加通透。厨房
厨房大面积白色,四面依墙,打造 L 型橱柜,充足的操作空间;另一面墙也做了改造,刚好摆放冰箱,拿取方便。
厨房呈 L 型,符合日常做饭的操作流程。卧室
主卧进深比较大,将门洞往右侧移了一些,主卫按比例缩小,保证里面充足;将衣柜打造在墙尾处,通顶、整排的设计使收纳功能非常充足。
靠墙打造工作台,满足业主在家办公的需求;卧室设计延续极简风,简洁不失温馨~
次卧
次卧延续主体风格与色彩搭配,全屋无主灯设计,没有复杂的造型,营造出简单放松的感觉。
屋主是个音乐爱好者,平时喜欢在家弹练钢琴,也方便小孩学习钢琴;宽敞的卧室空间,墙尾摆放一架钢琴,也使空间拥有艺术感。
儿童房
儿童房空间比较小,儿童床靠墙摆放,预留充足的活动空间;靠窗摆放学习桌椅,让孩子有自己的学习空间。
原木地板温馨简洁,暖色的背景墙乳胶漆刷新,采光也充足。
书桌上挂满孩子的玩偶,彰显儿童房活泼可爱的氛围。卫生间
客卫做了干湿三分离,定制的浴室柜充分利用空间,灯光设计让干区变得艺术感。
主卧卫生间在原来的基础上缩小了一些,干湿两分离也足够使用,淋浴房的隔离门时尚感爆棚。阳台
阳台与客厅相通,铺贴瓷砖更方便打理;阳光透过落地窗、透过白色的纱帘照射进屋内,感觉十分温馨!
洗衣机及烘干机利用叠放的方式,周围定制柜包围,增加收纳空间的同时彰显极简艺术美。
爆改 108㎡三室两厅,一次性满足小夫妻所有要求!!!
诚信 3.15 装修不将就 | 选择质鼎,让装修更放心,为您的新家保驾护航。
120㎡气质美式空间,一家三口其乐融融的小家!或拨打 400-805-0808 了解更多家装资讯
客服
消息
收藏
下载
最近
































