查看完整案例


收藏

下载
点击蓝字 关注我们
Space Day of China.
要把所有的夜归还给星河,把所有的春光归还给疏疏篱落,把所有的慵慵沉迷与不前,归还给过去的我。明日之我,胸中有丘壑,立马振山河。
设计师线文佳和业主合影
简介
设计师:质鼎国际设计 线文佳
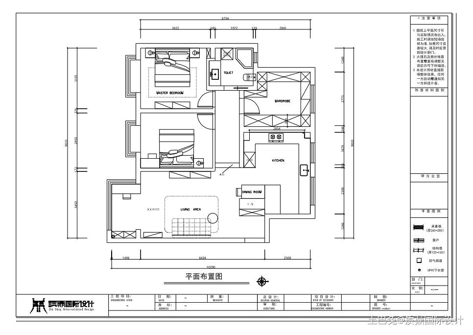
地址:浦东新区北蔡镇泰德福苑
户型:两厅一室
面积:79 平方
预算:12 万
风格:法式轻奢
装修需求:
1. 满足三口之家的日常生活!
2. 空间整体不大,所以需要尽可能的节省空间,方便日常生活。
3. 要尽可能考虑到日常生活所需,方便打扫!
设计思路:
喜欢法式的浪漫风格。经过与业主的详细沟通,在装修元素搭配以及设计选材等方面,从业主的角度将空间呈现完美的模样。以整体的线条造型、完美的细节,营造出简单大气温馨的感觉。
设计图
客厅
客厅以素白和原木为主,色彩搭配温馨、素雅,法式元素搭配将空间品质感表现得淋漓尽致。
背景墙典型的石膏线条设计,阳台垭口设计,窗帘搭配显现法式风。
主灯是一盏精美的吸顶灯,外加筒灯辅材照明。吊顶只在四周及中央空调的地方做了处理,极简的天花板在视觉上有拉伸的效果。电视背景墙与沙发对背景墙对称,没有多余的造型,整体格调统一。
法式的皮质沙发增加高级质感,在筒灯的照射下,整个空间更具时尚感。
餐厅
餐厅设计在吧台旁边,与厨房融合。白色灯光进一步提亮光线,增强空间感。
卡座的处理更节省空间,不影响使用时的正常动线。
吧台连接餐桌,延伸使用。使用金属边的吊灯照明,营造用餐的舒适氛围。
自然光线透过厨房引入客厅,增加餐厨区域的通风性。置身于这一空间,会感受到流动的明快、清透,不自觉地放慢用餐节奏,在忙碌一天后重新认识自己的情绪。
开放式厨房
厨房开放式设计,比较宽敞,布局完整,功能齐全。
高柜增加了垂直收纳空间,旁边摆放双开门冰箱。
吧台设计既能划分区域,又能满足一家三口日常用餐的需求。
卧室
主卧造型优雅,辉映成趣的灯具,在淡雅的用色衬托下,格外浪漫、柔美,悠然自得的舒适与随意。
米白色的床和床品,看起来软糯,主卧看起来温馨,在夜间的视觉效果也很好,打造温馨的卧室氛围。
卫生间
卫生间以蓝色作背景处理,淋浴房金色边框点缀。马桶隐藏式水箱,节省空间。
淋浴房与墙面凹槽的地方放摆放洗衣机和烘干机,合理的规划,将空间利用发挥到极致。
阳台
阳台设计比较实用,一边是收纳柜,一边是工作台。
儿童房
儿童房设计比较简洁,吊顶只做石膏线处理,干净利落。
床与床品的搭配比较可爱,床头一侧是床头柜,另一边则是学习桌,方便小孩学习。
窗台下面打造柜子,增加收纳。窗台也是小朋友玩乐的区域,摆放着小孩喜爱的玩具。
衣帽间
家里小房间改造成衣帽间,法式的造型很优雅。
两排衣柜,收纳充足。窗下的梳妆台满足一切需求。
走廊
过道拱形门设计,穿过拱门就是客餐厅空间。
拱形门、石膏线,将法式风显现的极致。
客餐厅空间上没有做区分,从地面做区分,地面一边是瓷砖,一边是地板。
往期推荐
教师节|致敬恩师,盘点各科老师喜爱的装修风格
超有用的装修攻略!按照这些步骤,不走歪路!
现代简约风,小户型要这样搭配!或拨打 400-805-0808 了解更多家装资讯。
客服
消息
收藏
下载
最近



































