查看完整案例


收藏

下载
这是一套北欧
风格
的装修案例,
浅淡的色彩、洁净的清爽感,让每一个细节的铺排,都呈现出令人感觉舒适的气氛。
希望这套装修案例能给大家带来一些灵感。
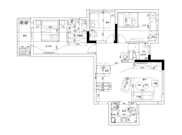
平面图
客厅
▲
客厅通铺大尺寸木质地板,提升空间气质。背景墙上的组合挂画,给客厅增添了一些文艺氛围。
▲
布艺懒人躺椅可坐可躺,简直不要太惬意。
▲
角落的简易小书架,加以绿植的点缀,烘托出自然闲适的空间氛围。
▲
墙上一盏壁灯,细节处彰显情怀。
▲
黑白
简约圆形茶几错落有致,高低组合的形式灵活而有层次。
▲
没有夸张的电视背景框,原木色的配饰及清新的绿植加深风格的定位。
餐厅
▲
全实木长方形餐桌椅靠墙摆放,扩大了过道的面积,使动线更加流畅。
▲
整个餐厅的布置安宁、简适,让人在就餐中感受轻松和愉快。
▲
创意餐碟装饰墙面,增添艺术气息,打造有格调的用餐环境。
▲
黑板漆的设计既不破坏墙面,又可以发挥孩子的创意,满足孩子任意涂鸦的需求。
厨房
▲
黄色谷仓门十分抢眼,推开后即是厨房。既节约使用空间,又增加了欢快、愉悦的氛围。
▲
橱柜将白色的纯净之感演绎到极致,彩色的复古花纹地砖凸显空间的别致感。
主卧
▲
主卧
简洁中也有细节,萤火虫吊灯点亮后很有艺术气息,墙壁上两幅绿色植物装饰画带来清新与活力。
▲
蓝白相搭的绣花树窗帘,与墙上挂画相互呼应,显得清新干净。
▲
铺上了暖色调床品的木质床,柔软舒适中带着自然恬淡的气息。
▲
置物架上的盆栽绿植,使小阳台精致而又充满自然的味道。
儿童房
▲
儿童房,
绿色墙面和红色抱枕形成对比,让房间更加活泼有朝气。
卫生间
▲
卫生间
干湿分离布局合理,洗漱空间独立出来,能使得实用功能加强。
网络,纯属分享,如有侵权,请联系删除!
推荐阅读
境远装饰 | 粉色主题
境远装饰 | 烟雨行舟
境远装饰 | 优雅变奏曲
J
INGYUAN DECO
诚信境远 品质选择
【
设计中心地址
】
浦东
:
浦东新区浦东南路1877号东旅大厦1楼(近峨山路)
徐汇
:
凯旋路2588号D-01(近宜山路地铁站)
宝山
:
普陀区中山北路3000号长城大厦608室
奉贤
:
南奉
公路7777号南方国际中心大厦8楼(近望园南路)
松江:
广富林路799弄月星家居二楼B104-106
点击“阅读原文”预约量房
客服
消息
收藏
下载
最近

























