查看完整案例


收藏

下载
JAPANESE STYLE
日式风格
Interior Design Case.
《
和风
》.Zephyr
#老朋友的新房
屋主屈先生是我们的老朋友,几年前的老房子装修就是找了我们,经过那次装修经历我们成了好朋友。去年屈先生说要买套新房,就他和老婆两个人住,于是在购房之前便早早的联系到我,让我来帮助选房。
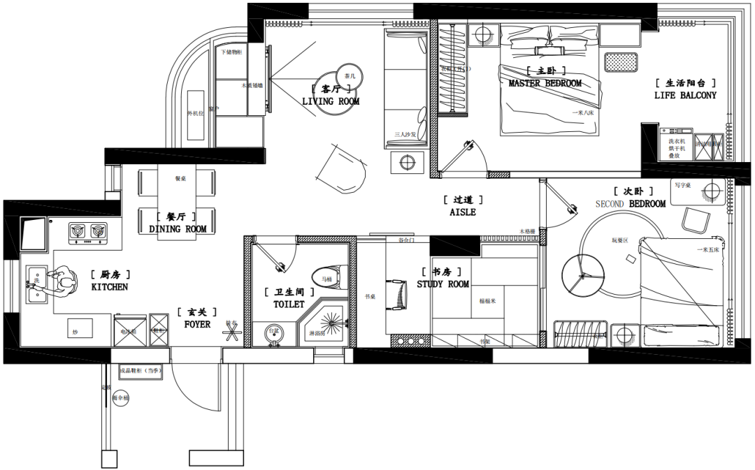
在选房时屈先生便提出了需求,因为预算有限,想买套小户型住宅,但后期居住需要三个房间,于是我们从选房量房开始便着手改造三房,这个新家便是通过改造实现了三个房间。
地址 | Addr:东方福邸
风格 | Style:日式风
面积 | Size :89㎡
◑
90后大男孩
屋主 屈先生
屈先生刚过而立之年,拍摄案例当天我们打趣问他,结了婚,买了新房,下一步该要小孩了吧。屈先生笑说还不急,买了房后每月的房贷就是一笔大数目,暂时没有条件要孩子。当代年轻人的压力非常大,晚婚晚育成了常态。
对于暂不要孩子这件事,不仅仅是因为经济条件,另一个原因是屈先生自己还是个90后大男孩。屈先生从事金融行业,有很多工作可以在家完成,这也是为什么屈先生一定要我们将二房改三房的原因。平时在家的空闲时间,屈先生就会拼拼乐高。他是乐高的重度爱好者,家中各个空间都有乐高摆件。
我们问他为什么会这么喜欢乐高,乐高在我们的印象中似乎是小朋友开发智力的玩具?屈先生却说,乐高真正能培养的是耐心和细心。玩乐高一定不要直接买成品,跳过了辛苦的拼搭过程,就少了很多过程的乐趣,而直接享受结果,也会让人越来越懒。
听着屈先生讲着乐高的大道理,看着满屋的乐高摆件与动漫手办,我们突然理解了什么是保持对生活的热爱,我想这也是屈先生装修新房时,选择日式小清新风格的原因吧。无论是过什么样的生活,最重要的是热爱生活、主动掌握自己的人生。我想这应该就是现代人对人生该有的态度。
二房变三房
Choose Mingpin
因为常常在家加班,以及有许多手办、乐高摆件的原因,屈先生要求将二房格局的新家改造为三房。新家的每个区域面积都不大,每寸空间都十分重要,可谓是寸土寸金,而想要在这样的空间中再额外添加一个房间,对于设计的要求很高。
我们利用开放式厨房结合餐厅的方式,把餐厨空间设计为同一空间,节省空间的同时,也可让视觉效果变得更宽敞通透。而屈先生的生活方式偏向于轻食,烹饪不会过于重油重烟,开放式厨房的设计反而增加了他与爱人之间的互动性。在卫生间区域,我们将它缩小移位,保证生活需求的情况下,把空间预留出来,形成一个可以和客厅连同共享的书房,满足屈先生的三房需求。
改造后:
改造前:
细腻温柔の家
和风小窝
这套小三房格局的新家暂时只有屈先生与爱人两人居住,屈先生喜爱日漫中的日式住宅,木质格栅推拉门,温暖而清新的色调。我们通过合理拆改,精准搭配,给房屋焕然一新的美感。原木与白的搭配,温暖空间氛围,让屈先生归家时,缓解疲惫,舒心放松。
两人的小家经过半年的时间,完工毕业。屈先生作为我们的老客户,同时也是老朋友,对于这次的装修他非常放心的全权交给我们负责。而我们在每次巡检工地时,也会拍摄记录现场情况并及时告知屈先生施工进程。装修的过程是繁琐的,不过好在最终新家毕业的效果小两口都非常满意。
屈先生要求新家从二房变三房,于是我们将厨房设计为开放式,与餐厅合并到同一空间,节省空间的同时,也可让视觉效果变得更宽敞通透。屈先生的生活方式偏向于轻食,就算是开放式厨房的设计也不会有重油重烟的问题,反而开放式的设计增加了他与爱人之间的互动性。
当房屋与生活不适配时,该拆就拆是破而后立的勇气。原始格局让面积不大的空间显得更加局促,而我们选择拆除隔断墙设计开放式,并采用浅原木色地板,让视觉感变开阔很多。
通透的客餐厅充分提高采光能力,原木与白的结合,简约又不失温馨,简单的装饰,舒适的家具,细节中充满了品质。
因为小两口常常在家下厨,我们将厨房空间设计为“U”字型的动线布局,空间更宽敞舒适。开放式的设计,改善了小空间原本采光差的缺点,让空间光线更通透。
俞先生最喜欢我们为他设计的书房空间,浅木系的空间,原木质格栅推拉门,满满的日式元素,类似和室的设计以及muji风的家居用品,结合业主喜欢的乐高摆件等,整个书房空间很有年轻人的生活朝气。推拉门的设计,拉开门书房与客厅合为一体,整个空间更加敞亮大气。
主卧无主灯的设计简约而不简单,我们将阳台包进室内让整个主卧空间更加宽敞明亮,墙面挂件暗藏灯带增加空间的精致感。
烘干为主的生活方式铸造了卧室连通阳台,视野增加的同时,整体休闲空间也有所增加。另一处次卧空间咱作为休闲室使用,后期可作为父母房或儿童房。
色调和谐、光影摇曳的日系小窝,带来不动声色却又处处为营的温馨私语...
《和风》.Zephyr
END
家是孕育幸福的地方
每一位屋主都希望自己的家
温馨舒适,独一无二
铭品装饰深知业主的期待
每一次筑家的设计,我们都全力以赴
如果您也想拥有如此温暖的家,
不如来铭品装饰聊聊设计
地址:天城路295号铭品装饰
客服
消息
收藏
下载
最近




























