查看完整案例


收藏

下载
内心的世界有多缤纷,映射在现实的世界里就能有多璀璨。20 几岁的 C 女士,这个年纪特有的朝气,讲话细细的,笑起来很温柔,却是特别有主见,内心装着一个五彩斑斓的世界,对未来满是憧憬。当第一次见到本案设计师,相仿的年纪让她们特别有共同话题,相同的姓氏也让缘分水到渠成,共赴一场关于春暖开花的“盛放”之约。
项目地址 / Address:都市水乡水曲苑
设计施工 / Co:铭品装饰
风格| Style:美式轻奢
项目面积| Area:77㎡
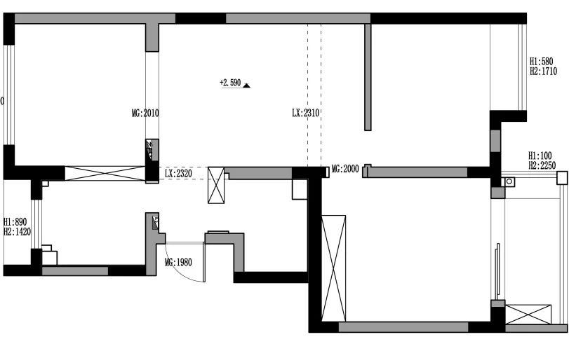
户型图
原户型⬆⬆
C 女士的房子有 77 平,目前是一个人住,爱好是研究烹饪料理,因此家里放了很多咖啡机、空气炸锅等小家电,需要足够的操作区域,多一些储物空间。
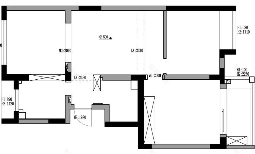
设计图⬆⬆
原始户型缺少玄关鞋柜,考虑到女孩子对鞋子的执着,设计师将原厨房门的位置做成换鞋区。原厨房面积对“料理达人”C 女士来说,远远满足不了需求,于是设计师打破封闭的空间,将厨房和餐厅、客厅连通,纵向提升了实用面积。
玄关
玄关是进门时留下的第一印象,合理搭配的换鞋区、一储物柜、别致的黄铜把手,串联出现代优雅的氛围。客厅
三点一线的平淡生活,却无法磨灭眼里的光芒。大面积的浅烟灰拼接雾霾蓝的背景,像雾像雨像风,如同海天交接处,太阳将露未露时的朦胧感。
客厅的主体是一张三人位的皮革棕沙发,充满弹性的外轮廓营造出美式的粗犷质感,与边几、装饰画、复古地砖和谐的交织在一起。
为增大房子的储物空间,客厅电视背景做了一组内嵌电视柜,金属小把手呼应落地黄铜灯,营造细腻现代的轻奢质感。
壁炉是点睛之笔,精致的石膏造型、熊熊燃烧的火焰雀跃着带去家的温馨。整个客厅的色彩则过渡到壁炉上的装饰画,凹凸立体拉伸了入户者的空间感。
整体来说,各种富有张力的颜色被恰到好处地调配在一起,惊艳的色彩冲击原本简单的空间,赋予冷暖交错的梦幻感。
餐厅
打通后的客餐厅,铺贴同色系的美式复古地砖,视觉上一览无余,颇具通透性。搭配橙色窗帘,与客厅色彩衔接的同时也唤起餐厅区域的用餐氛围。
整排轻奢风格定制餐边柜,一直延申到双开门冰箱内嵌位,不但提升了颜值,还便于收纳大件物品。厨房
敞开式的厨房和餐厅之间做了吧台过渡衔接,在时尚之余增加了料理的操作区域。
水磨石的吧台嵌入墙体,改成一个纯净白的壁龛,C 女士心爱的咖啡机正好摆放其中。一叠烤酥的松饼,一杯喷香的美式咖啡,足以打发下午时光。主卧
卧室则以浅珊瑚色为基调,拼接梅酒红色块,因为饱和度低的关系,鲜艳的撞色反而让温馨的空间多了几分高级和神秘。
卧室
多功能房
次卧目前是作为多功能房来使用,设计师利用原来的飘窗位置做了一组实用的榻榻米,集收纳、休憩、书房为一体。其他
卫生间⬆⬆
End
生活要细心经营,装修也要精打细算!即日起至 3 月 21 日,铭品装饰联合各大品牌商打造【鸿运开门红】活动,惊喜十重礼遇,牛年当“鸿”不让!福利加满,牛力 max⬆⬆,和您的装修顾问了解一下活动详情吧~
活动时间:2 月 22 日--3 月 21 日
活动地点:杭州市天城路 295 号
客服
消息
收藏
下载
最近




























