查看完整案例


收藏

下载
#写在前面
现在的年轻人,十个有八个都想装开放式厨房,却又被油烟问题劝退。事实上,装个半开放式厨房,鱼和熊掌也可以兼得!本案设计师就给大家提供了一个很好的思路。
半开放式厨房能有多香?
项目地址/Address:天巢花苑
设计施工/Co:铭品装饰
风格|Style:现代简约
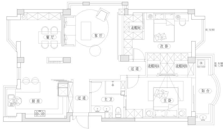
项目面积|Area:118㎡
#设计规划
户主夫妻对时尚的接受度高,对衣帽间有极大需求。女业主一直很想要一个高颜值的开放式厨房,希望设计师能解决对于油烟的困扰。
设计师量房后,把空间进行了重新规划:
1.原户型比较方正,阳台和卧室套间占了很大空间,留给客餐厅的位置不算多。
2.设计师在卧室做了三个衣帽间。
3.客餐厅全部打通,保证室内采光通透,做了几排储物柜。
4.厨房做成半开放式,在开放/封闭状态自由切换。
#完工实景
玄关/
入户白色玄关柜,中间镂空部分可以当作舒适的换鞋凳,下方预留 20cm 放换下来的鞋子。客厅/
整体是纯白色墙面搭配深色系家具,承重柱用胡桃木包起来,简约干练的现代风格中加入不同的线条组合,让结构不再单一。
地面用浅灰色水磨瓷砖铺贴,黑色大理石地台替代了电视柜,在保证功能的同时,给客厅节约出不少活动区域。
客餐厅同属一个空间,打通后视觉上开阔不少。三人位真皮沙发形成了物理上的半隔断,营造一个自然的过渡。餐厅/
餐厅吊顶设计与客厅保持一致性,餐桌也延续了茶几的风格,大理石桌面加载胡桃木桌腿,细节上更具趣味。收纳是空间简约感的重要保障,设计师见缝插针,在餐厅位置装了一个顶天立地式储物柜。
原餐厅与厨房之间有承重柱,影响美观,设计师巧妙加宽之后,改成了一道高颜值的装饰性屏风。厨房/
开放式厨房的意义,可不仅仅是节约一堵墙的面积,它还是提升视野的小能手。
设计师在厨房外加了一道定制 size 的半透明玻璃推拉门,开放式/封闭式自由切换。岛台设计缓解台面压力,简单的早餐、西餐可以在这里解决,非常方便!卧室/
主卧连通阳台,所以这里的采光非常通透,阳光随意的洒进来,温馨而舒适。
主卧无主灯,吊顶走边与公共空间保持一致。背景墙做硬包选用沁蓝色调,很清新,与窗帘的色彩交相呼应。
次卧包了抽象磨砂墙纸,中性的灰色调营造静谧平和的休憩环境,墙角的挂衣架很有设计感。
卫生间/
卫生间是莫兰迪灰与纯净白撞色,金属元素和色块增加了空间的饱满度。阳台/
#精彩推荐
End
铭品装饰
设计团队人均 10 年经验,创始人拥有首席设计师称号,曾荣获中国红鼎奖、和美设计奖、金巢奖等重要奖项,全球出版《设计唯品》专辑。铭品装饰设计团队将遵循“十二维度”设计标准和“3W”服务标准,时刻把您的满意度放在重要位置,和您一起实现家的梦想!
客服
消息
收藏
下载
最近






























