查看完整案例


收藏

下载
Preface 写在前面
家的概念,不仅仅是由钢筋水泥构成的空间,TA 除了提供遮风挡雨的功能外,更应该是令居住者安然于心的自在之地。
项目地址 / Address:和家园·琉园
设计施工 / Co:铭品装饰
风格| Style:新中式
项目面积| Area:400㎡
Scenery 完工实景
琉园,是一栋四层排屋,住宅面积约 400 方,从户外看,红枫掩映下,琉璃飞檐,大气沉稳。
户主是一对酷爱植物的夫妻,亲手将各种树木和花卉种满了整个小院,连墙壁都不放过,攀爬满凌霄花。/客厅
整体是新中式的风格,各个空间被隔成若干合理的活动区域,赋予鲜明的情感与记忆。挑空的设计,强调了视野的通透性,让居住者感受豁达的情志。
对于居住者而言,家的真正意义超越了物理上的概念。除了基础空间外,中庭鱼池、独立小花园、健身房、露台等额外区域,也为家注入了更多的情调。
在材质的选择上,我们始终秉承自然环保的原则,以深色木料打造颇有传统东方形制、规格的家具,如案几、电视柜、墙面装饰,酌量添加金属、大理石等现代装饰材料。
/餐厅
错层式客餐厅有两档台阶的落差,设计师特意加宽了台阶,这样看上去更大气。
圆形的黑白色餐桌,强调木石的碰撞,金属包角的介入创造了意料之外的惊喜。一副泼墨晕染装饰画,于潜移默化中熏陶东方审美。
原先的卫生间位置让给餐厅,增加了西厨,弥补了厨房空间的不足。西厨区域,做了隐藏式高柜收纳,烤箱、蒸箱,水槽、操作台一应俱全,用起来很方便。/厨房
厨房是大方的浅米咖,用了一些深灰勾边来压住色调。高低台面的设计,方便大厨在洗菜、烹饪等不同步骤间,而不会觉得费劲。
窗户做了黑色镂空格,既能保证隐私,又能保持室内的通光性。/工作室
腹有书香气自华,精神世界的豁达也需要丰富的给养。工作室沿着中轴线分为两部分,一部分是居住者处理工作的工作台。
另一部分则是茶室,其上摆着古色古香的铜柄兰花小瓷壶,闲来可饮一杯无。背景是一幅淡墨水青的晨雾江游图,两边是云石做的复古灯具,颇有韵味。/卧室
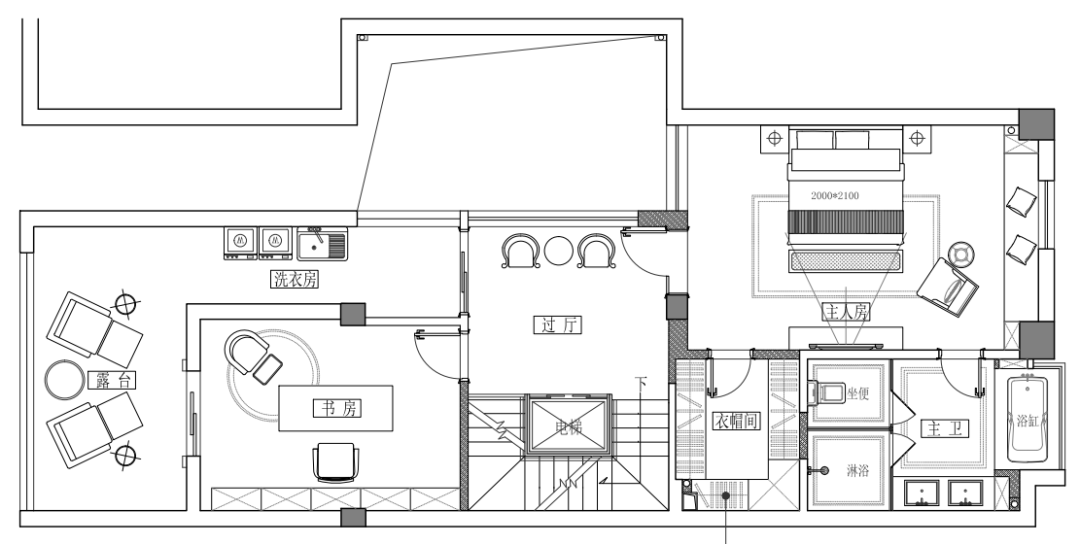
主卧采用素雅的浅咖基调,背景墙两侧增加了对称的深色木饰面装饰,契合传统中式平衡的意境。
窗户做了一体式榻榻米和书柜定制设计,增加卧室内的存储空间,轮换的四季是天然的装饰画。
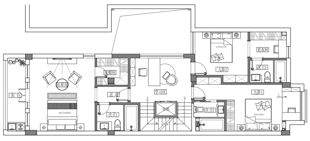
二楼的大房间分隔调整,做出了两个独立的儿童套房,一套是天青色调,方正硬朗的软装有现代线条的利落感。
另一套女儿房选用清新的嫩芽黄和少量粉,阳光照射进来,洒下竖条纹的影子。
考虑到精致女孩对衣物收纳的需求,设计师借了楼梯间位置,改出了独立卫生间,而原卫生间位置则是衣帽间。
/卫生间
主卫通过透明玻璃隔成三分离式,防雾镜柜颜值高,还能提供收纳功能,悬空式台盆的设计充满现代感。云白大理石定制的泡澡盆,是居者睡前放松的好去处。/电梯
楼梯起步方向做了调整,起步档加长加宽做了楼梯小景,使空间更灵动。/ 天井
原户型的楼梯厅比较窄,独立电梯间占用了太大位置,设计师通过缩小天井的空间,释放出一大块面积。/设计图纸
地下室
一楼
二楼
三楼
End
铭品装饰
设计团队人均 10 年经验,创始人拥有首席设计师称号,曾荣获中国红鼎奖、和美设计奖、金巢奖等重要奖项,全球出版《设计唯品》专辑。铭品装饰设计团队将遵循“十二维度”设计标准和“3W”服务标准,时刻把您的满意度放在重要位置,和您一起实现家的梦想!
客服
消息
收藏
下载
最近





































