查看完整案例

收藏

下载

翻译
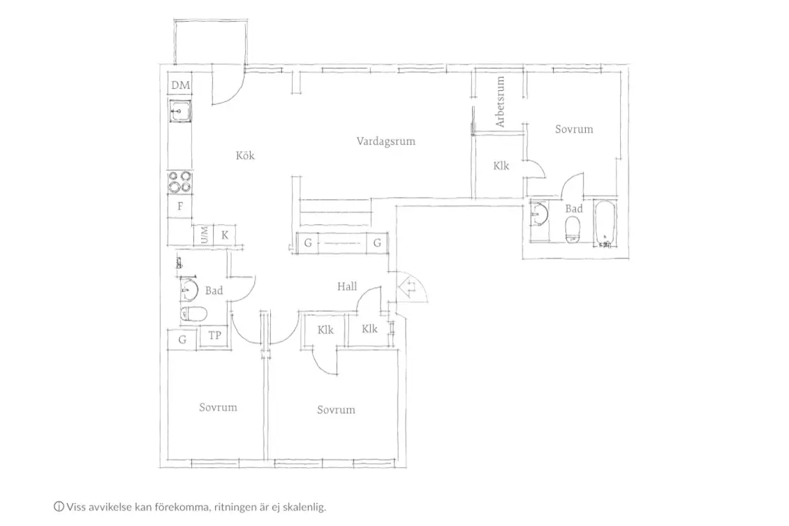
Avec ses couleurs actuelles, ce grand appartement rénové en tons sobres situé dans un immeuble suédois construit au milieu du 20e siècle, est doux et accueillant. L’accent a été mis sur l’accord entre un vert grisé, que l’on pourrait nommer vert olive, et le bois chaleureux et roux du mobilier et du sol. Le fil conducteur de la décoration, est fait de ce vert olive et de ce bois, que l’on retrouve tout au long de la visite dans les différentes pièces.Les volumes ont été adaptés à notre mode de vie contemporain lors de sa rénovation en 2020. Lacuisinepar exemple, a été ouverte sur le salon et la salle à manger, et c’est une bonne décision puisque c’est depuis cette pièce autrefois fermée que l’on accède à l’unique balcon de l’appartement. Les matériaux utilisés lors de ces travaux ont été la pierre pour les salle de bain et le plan de travail de la cuisine, et le chêne massif, ainsi que le cuir comme dans l’entrée où le banc construit sur mesure est un élément très pratique. L’ensemble de l’appartement baigne dans des finitions luxueuses sans être clinquantes et donne une impression d’équilibre entre décoration contemporaine et chaleur des éléments naturels.Large flat renovated in sober, contemporary tonesWith its current colours, this large, soberly renovated flat in a Swedish building constructed in the mid-20th century is soft and welcoming. The emphasis is on the harmony between a greyish green, which could be called olive green, and the warm, reddish wood of the furniture and the floor. The main thread of the decor is made of this olive green and this wood, which can be found throughout the visit in the different rooms.The volumes were adapted to our contemporary lifestyle during the renovation in 2020. The kitchen, for example, has been opened up to the living room and dining room, and this is a good decision as it is from this previously closed room that you can access the flat’s only balcony. The materials used in the work were stone for the bathrooms and kitchen worktop, and solid oak, as well as leather, as in the entrance hall, where the custom-built bench is a very practical feature. The whole flat is bathed in luxurious finishes without being flashy and gives an impression of balance between contemporary decor and the warmth of natural elements.106m2Ce grand appartement rénové en tons sobres est en vente chezStadshemThis large renovated flat in sober tones is for sale at StadshemShop the look !Livres
客服
消息
收藏
下载
最近



























