查看完整案例


收藏

下载
“在不完美中发现美,回归自然的本心”
侘寂,是一种带有原始残缺的美。其源自小乘佛法中的三法印,即诸行无常、诸法无我、涅盘寂静,尤其是无常,唯有无常才是“真常”,乃是自然生命之法则。
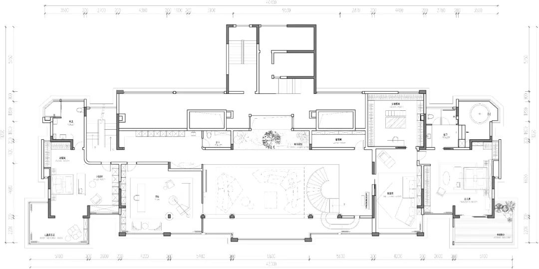
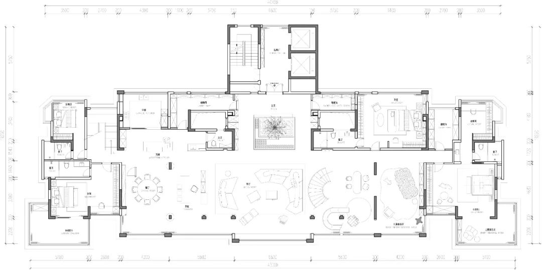
项目面积:1400㎡
设计风格:侘寂现代风
设计机构:红柏设计
【客厅】
进门处一眼夺走目光的,一定是这一片造景展示台,不是跳脱的绿色,在这个空间中总有似在自然而非自然的清新之感。
绿色的出现,增加了生活的闲适;而凹凸不平的草地表面质感纹理,又有着对岁月的情怀。
侘寂美学在家居风格中的运用,其直指事物的内在本质,不强调装饰,不强调奢华,是一种在很多年过后依然历久弥新的质朴美。
不需要很多很多的修饰,简洁明了的设计似乎更加深入人心,大理石的纹路和黑色的沉稳给柔软的灰白地毯增加了一种无形的定力,异形沙发的围观,似乎更显空间运用的巧妙!
整体客厅空间给家居带来的是在简约质朴的美感中增加了温馨色调的惊喜,正如照射在饱经沧桑石块上的那缕阳光,这种超越时间的美有着能够释放压力的天然之感。
在家居几乎处于整块的状态下,吊顶的主灯似乎是从天而降散落的珍珠,这样的形态打破了空间的死板,又和整体空间有一个很巧妙的融合。
日本著名建筑师安藤忠雄说“当自然和光被恰当的引入进来,平凡的屋子也就有了生命力。”
旋转楼梯的加入,挑空设计的客厅,拥有到顶的落地窗,光线充足,明亮且惬意。
黑色螺旋楼梯位于房间中央,承担了连接阁楼儿童区和分隔客厅的功能,雕塑一般的造型质感精致,非常立体。细心的台阶灯带设计,与扶梯自成一色,倒更像是一片洁白的荧光海。
【儿童区】
极其特殊的滑梯造型,在弯曲的滑道里快速滑下,到达目的地便迎面进入自己的玩耍小天地,银色的梯身又像是穿梭在浮云里的星星桥,一路传递着孩子童年的梦。
充分理解客户的想法,他说,他想在这个家里,有一个和孩子的小角落,不用特别大,只要在工作完成之余,身心疲惫地回到家里,可以无忧无虑和孩子一起玩闹嬉戏,陷进这温暖的欢乐里。
柔糯的编织软垫可以带你走进家的温暖,储物柜的多样化设计不仅可以储藏下孩子的整个童年,更可以保留陪伴的痕迹。
【餐厅】
空间的大面积留白地板给予餐厅呼吸的韵律与节奏,侘寂以另类的极简装点整个餐厅空间。
崇尚自然与返璞归真的意境,原木的元素、镜面材质、简约造型的桌椅。恰恰又是造型独特的灯具诠释了“现代”的含义。
厨房的选择上采用了浅灰色大理石与白色元素的碰撞,在融合中,似乎多了另一种沉静。
左边是大理石纹路的舞台,右边是大面积留白的原味,纹理和空白温柔碰撞,用设计将惬意与空间平衡完美保留。
【主卧】
在侘寂风中融入人的情感、生活态度与理念,在历久弥坚的时光中,仍能体现家的温度与人文特质。
不规则波浪形的背景墙打造不一样的艺术气息,白色元素虽然必不可少,但深咖色元素的到来似乎让空间多了一个色彩的着力点。3米的大床像是没有局限性的边界,微光的洒下,尽情做自己的美好生活显得更加令人向往。
主卫地面铺贴银河星辰系列浮生若梦,细碎的白色纹理似粒粒尘埃,温柔而克制。
大面积的深灰色奠定了极简的基调,沧桑感、阅历感,续上居室的故事。白色大理石淡黄色纹路的搭配缓和了私密空间空间的冷感,低饱和素净的色调带来具有禅意的东方美学空间。
【儿童房】
儿童房忽而改变的暖色调不言而喻,处处圆角及弧形拱门的设计无不体现父母深沉的爱意,在她自己的小空间里,也不忘给她打造一个公主般的梦境。
用低浓度色彩为基底,营造一个休闲放松的整体空间氛围,简单的开心和快乐,也许就是最好的礼物与憧憬。
HOMBLE DESIGN
:HBL9899 / 15999913767
:
FIND OUT MORE
相关精彩推荐
客服
消息
收藏
下载
最近

































