查看完整案例


收藏

下载
在日常里,在动静中,在感悟后,书写俗常与意味人生。
项目地址:深圳-香山里
项目面积:
540m²
设计机构:
红柏设计
白色的沙发背景墙,点缀造型简洁的墙面线条,和谐统一,白色的吊顶是最纯粹的回字顶造型,内嵌灯槽将形式感强化。意大利Gaetano Pesce Up 5 easy chair球椅与整个空间的形式搭配在一起,提升了整体精致感。
在质感的表达上,护墙板、光影再次成为了空间的主角。这无疑是最为纯粹的表达形式。在整体的设计中,我们融入了温润的木材、绿植、金属等材质。特别是在软装陈设的选择上,价值感进一步提升。精致的做工、考究的设计、以及稀缺的面料,都为品质的保证奠定了基础。
如歌如诗,向光而生
大美至简,客厅以法式为风格基调,从造型上简化了传统法式华而不实的装饰,壁炉的立面构成、悬空的电视背景、艺术画及装饰品的置入,赋予了静态空间不一样的观感,制造独属于这里的记忆点。
悬浮电视墙体与空间穿插,满足生活功用与审美,彰显精致品味。透过玻璃移门形成错动相间、虚实对比的效果,氤氲出朦胧之美。
设计立足居住本源,汲取自然灵感并融入对生态的前瞻性思考,以优雅流畅的动线,若有似无的边界,构筑进退得宜的场域尺度,球形的金属质感吊灯既有对空间线条的呼应,又带来些灵动的感觉。力求呈现出一个属于都市人向绿而生的心灵家园,悦享悠然时光,健康生活。
从洽谈区续至餐厅空间,天花和墙体界面嵌入隐润的光源,大面积的漫反射蕴生微妙氛围,悬空置物架带来物质性的美学意义,打破空间界线,营造节奏及韵律感的叙事艺术。
餐厅的设计以相对克制的设计手法,为空间做减法,让建筑呼吸。
恢弘大气,雅致欣然
在负一层的洽谈区域,布置了一个独特的圆形天井,最大程度地增强室内的采光,光线透过天窗投射于肌理的墙面,营造出温润的空间情境。引导进入室内的屋主人,这种思路借鉴了东方禅意中围合式设计,营造出一种特殊的仪式感。
洽谈区围合出序列的仪式感和天花造型尊贵感弥散,意大利进口Qeeboo猩猩灯指引着我们的目光,标志出浓郁的文化气息与文明历久弥新的格调。室内庭外的光影交融,带来美妙与激情。
从负一层缓慢地过渡到一层以一种意想不到的方式,让人在游走的过程中体验截然不同的视角与情绪转换。
意趣留影,美好留迹
笔直规整的线条、简单利落的块体结构和拱形的设计,增添空间序列感和纵深感;现代的设计手法中,象征性的物象从固有角色中释放,被抽象提取、具象,引入到真实的空间,又与观者建立起一种新的关系。
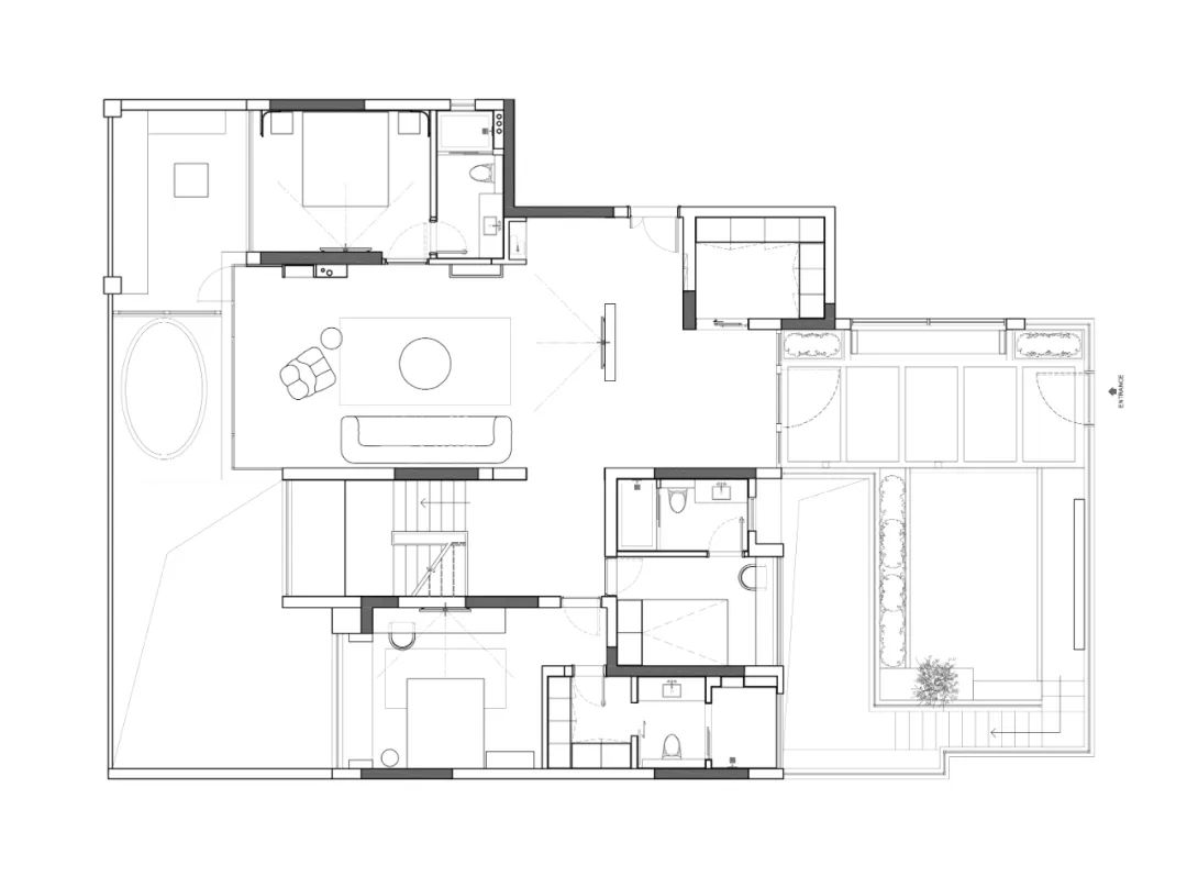
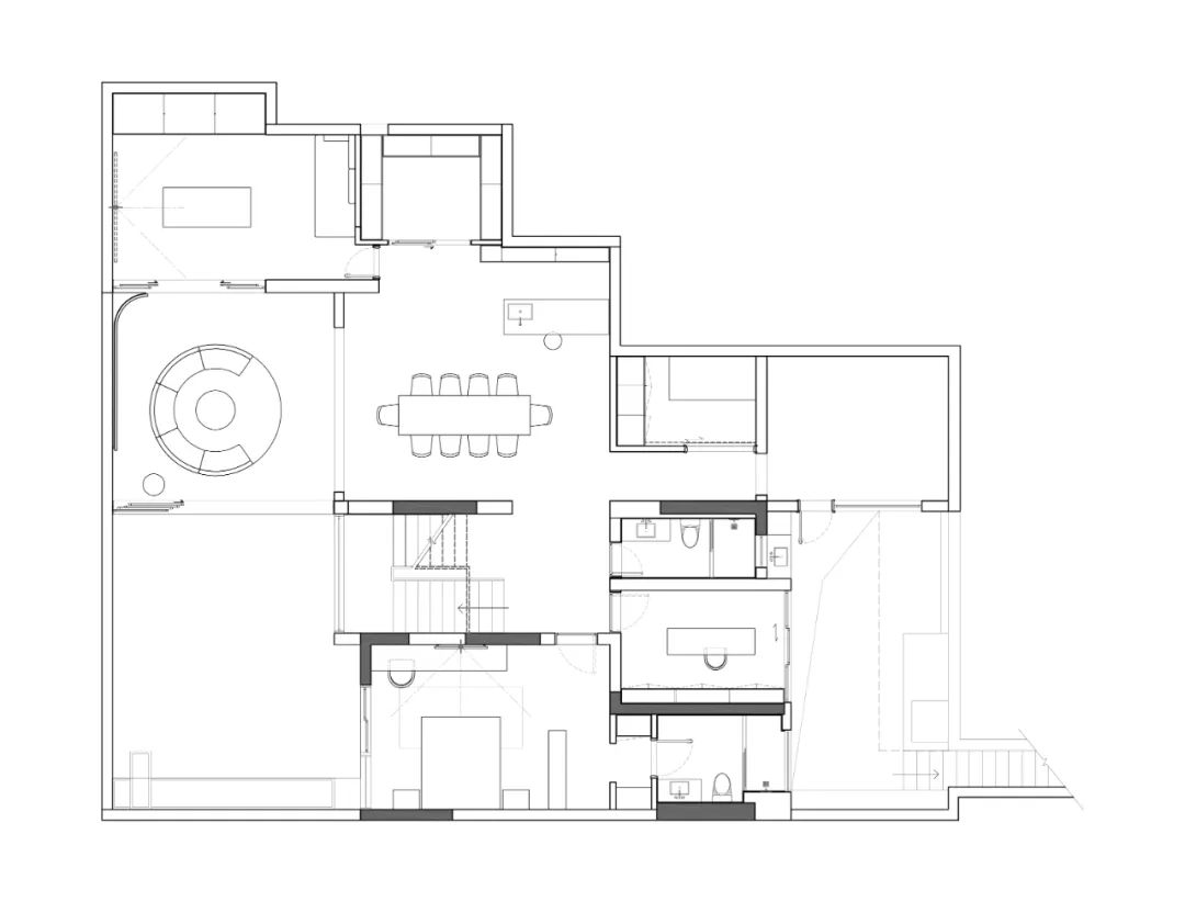
平面布置图
FLOOR PLAN
一楼平面图
负
一楼平面图
HOMBLE DESIGN
:HBL9899 / 15999913767
:
FIND OUT MORE
相关精彩推荐
客服
消息
收藏
下载
最近



































