查看完整案例


收藏

下载
建筑面积:35㎡
设计公司:壹贰叁肆空间设计
设计师:魏来
项目地点:辽宁省沈阳市
项目花费:6.5万
壹 | 写在前面
Hi,关注壹贰叁肆的朋友们!
今天为大家介绍的项目
位于沈阳市太原街商圈内,
是一个温暖浪漫,可以让人卸去一身疲劳的民宿,
这也是我们与业主的第三次合作,默契度非常高,
方案确定后,硬软装同步进行,
2个月顺利毕业,
实景落地还原度能达到95%以上。
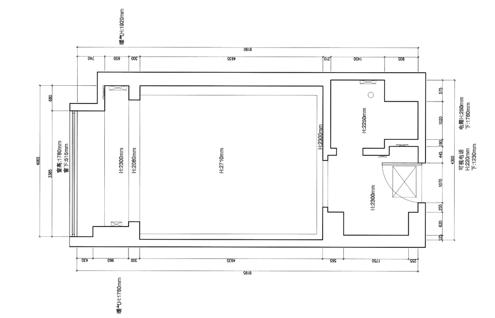
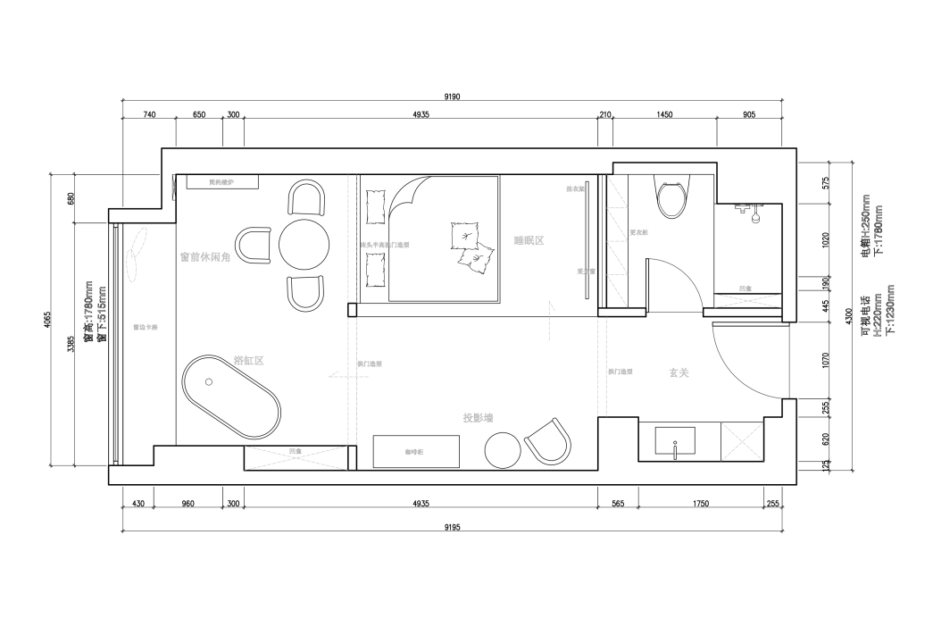
贰 | 平面方案
原始户型存在的问题:
1.常规的长条形布局,功能分区模糊;
2.空间中的棱角较多。
改造后的平面布局:
1.强化了功能分区,玄关、睡眠区、浴缸区、咖啡休闲区划分分明;
2.卫生间做到了千湿分离。
叁 | 落地实景
睡眠区
浴缸区
咖啡休闲区
效果图VS.实景照片
您可以在更多平台了解我们
版权声明
本文均由壹贰叁肆空间设计原创,
请勿私自引用,
请邮件联系:
—END—
客服
消息
收藏
下载
最近



















