查看完整案例


收藏

下载
2022
5/10
生活于生活之上
便知晓
百花和万物
沉默的思想
机构|Company:画年代设计事务所
项目地址:东山雨花胜境 自建别墅
项目面积|Project Area:330 平
摄影:AK 空间摄影工作室
本案坐落于苏州国家 5A 级景区东山镇雨花胜境。到了东山,对“丰圻大桥”的赞叹之词,一定让你觉得“书到用时方恨少”。对于网红打卡地“小镰仓”,会让你知道原来动漫里的世界,真的存在。而对于雨花胜境的描述,明代就有人帮你想好了,时山坞中满载桃花林,每至春末,花瓣飘落,似花雨从天而降。雨花一词由此得来!
2020 年
可以曲折,但要向前。
2021 年
茶字拆开是人在草木间。
茶字拆开,是人在草木间。天人合一,早在中国人的品味里。
茶室 Tearoom
进入门厅,透过隔断,茶室的清冽茶香扑面而来,丝丝缕缕透过隔断,挑逗你的嗅觉,原来“犹抱琵琶半遮面”就在这方寸之间。
茶香宁静却可以致远,茶人淡泊却可以明志。
一茶一世界,一味一人生。→
走进茶室,木质的色彩,流畅的线条,自然端景,一杯清茗,平心静气,芳香自来。“此时无声胜有声”便是如此!
且将新火试新茶。诗酒趁年华。
客厅 Living Room
独钓,在悠悠江畔;独钓,在高高山巅;独钓,在灵魂之间。
一幅独钓图作为背景,深色的实木家具让空间中多了一丝沉稳,大理石影视墙调和的恰到好处,将中式文化气息和现代时尚韵味完美的融合到了一起。
将室外的池塘搬回室内,俯首观鱼,点香喝茶,静下来,观自在。
主卧 Master BedRoom
主卧摒弃繁琐的装饰,强调简约淡雅。床头采用深色和白色拼色,缀以金属的明朗质感,简约大气不失质感。
次卧 Guest Bedroom
卧室高级的调性,墙面和顶面的线条相互呼应,墨绿色作为点缀,大气又不失雅致。
书房 Reading Room
偷得浮生半日闲,清茶一盏也醉人。
厨房间 Kitchen Room
餐厅硬包材质的肌理感,在方圆造型之间,将中式元素和现代材质完美融合,整体色调淡雅,一抹嫣红作为空间的点睛之笔。
外卫 Bathroom
量身定制的一体盆,在这样的空间,没有一寸多余的线条。
庭院 Courtyard
最喜古人对院落的记载:“高林受日,宽庭受月,短墙受山,花夜受酒,闲日受书,云烟草树受诗句。”
院落中的景色,是跟大自然最好的配合。春有百花秋有月,夏有凉风冬有雪。
芳草池塘,轻踏石上,半缕暗香,似风浅唱。
心里,一直有一个关于江南的梦,梦里有远山如黛,小桥流水,烟笼人家。浮云吹作青烟,世味煮成粗茶。
当餐厅亮起来灯,房子就变成了家。
月上树梢薄雾间,光下曲径通幽明。
苏式园林的月洞门,代表团团圆圆。颗粒归仓,一家人都在,一年就这样过去了。
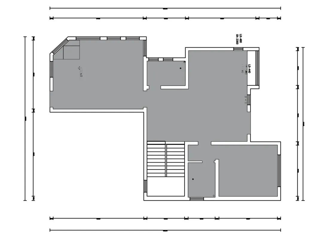
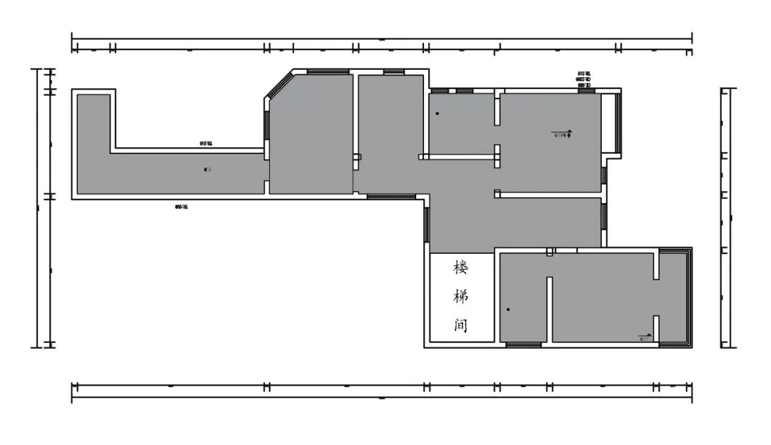
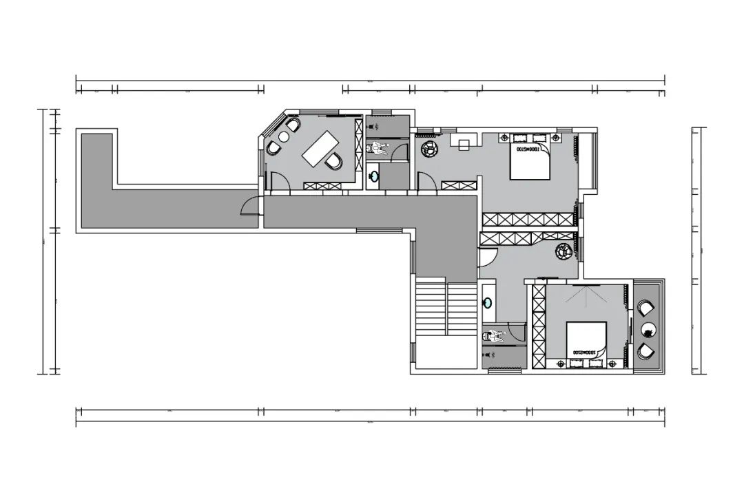
平面户型
改造前
改造后
改造前
改造后
设计咨询
每一套房屋的装修都是装易换难,几乎每套装修都会伴随她的住户八年、十年甚至更为久远,陪她的住户走过最珍贵的青春年代!我们的理念就是“用心的绘画和勾勒出属于不同住户独一无二的年代空间”!
欢迎关注画年代设计
更多作品
扫码欣赏
往期作品回顾:
客服
消息
收藏
下载
最近






























































