查看完整案例


收藏

下载
故事开始:(心急的朋友可以直接跳到图片部分进行观赏)
跟她相识的那个夏天,我第一次知道星巴克的醋意桃桃可以装满夏天的味道。她的出现刷新了我对美女的认知,而我的出现,对她来说可能像半路杀出的程咬金。7 月傍晚的微风夹杂着冰镇饮料的酸甜味,很棒的体感,如同我对她的第一印象,满满的漫画感。她从朋友圈认识了我,但结识我的时候,她的房子已经在另外一个设计师手中设计了,而且房子也处在开工不久的阶段了。我和她本应该像两条永不相交的平行线,可能是那个夏天的风,太过温柔,吹乱了我们本该走的轨道,让我们不期而遇。
由于情况确实比较复杂,第一次跟她见面交流情况的时候,我也是边听边缕思绪,大意概括就是:她希望那个容纳她喜怒哀乐的家可以有更多的可能性。
于是在我仔细研究了房子的原始户型,前设计方案以及他们的需求之后,我对之前既定的方案开始了大刀阔斧的改造。
机构|Company:画年代设计事务所
项目地址|Project Address:东原千浔
项目面积|Project Area:300 平
摄影|Photograph:AK 空间摄影工作室
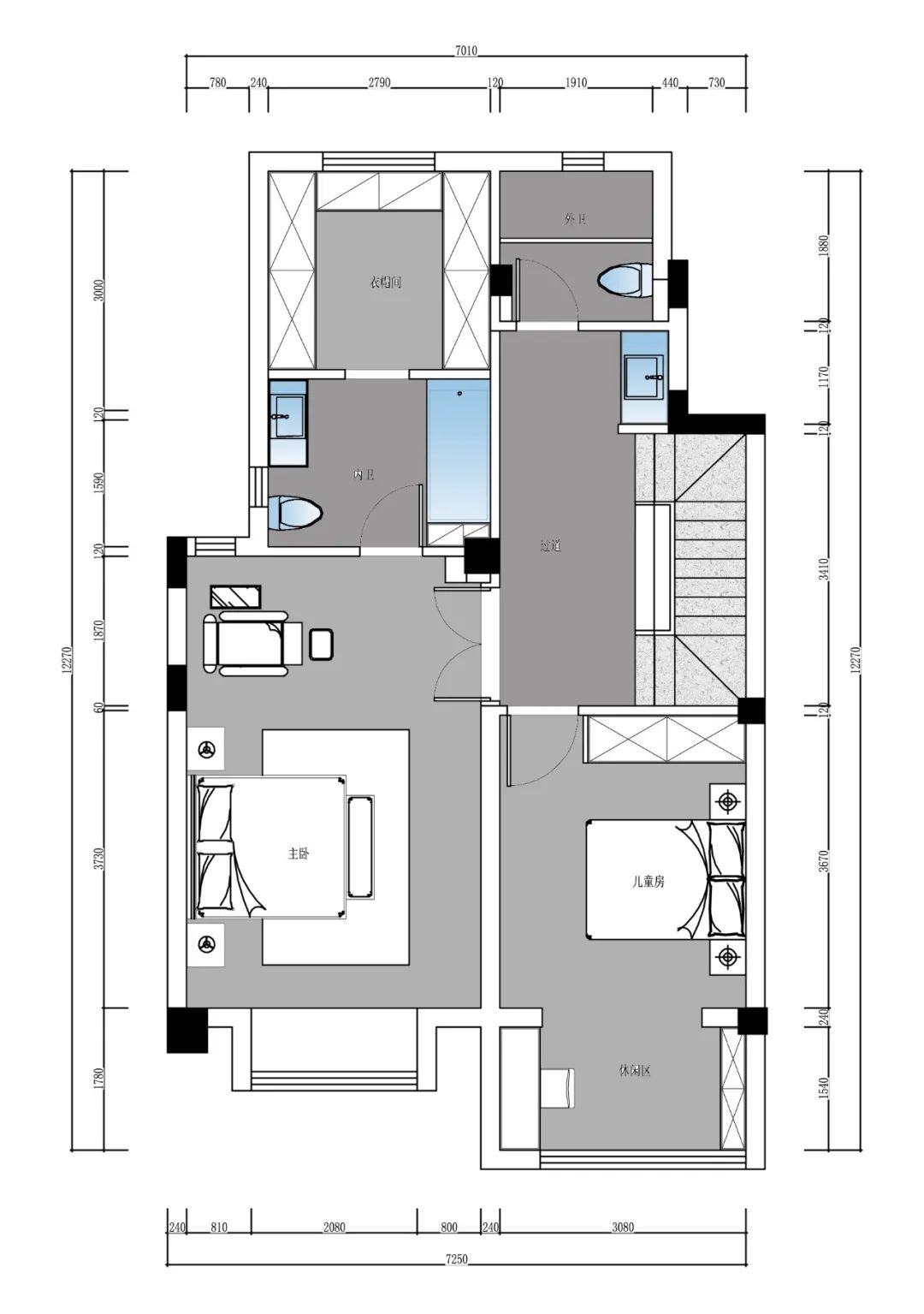
一楼平面户型
原设计
改造后
改造后:整个一楼的空间增设了独立马桶间、台盆区、入户可封闭式换衣区和吧台。客厅 Living Room
灰色烤漆饰面板与深色大理石纹结合,大面积涂刷的浅灰色艺术涂料更具肌理感,细微色调深浅不一,丰富整个空间的层次感。
客厅、餐厅、厨房,材质相同、色彩深浅,用以平衡空间关系、让空间与空间之间有连续性,也更具互动性。
公共区域采用开放式设计,整体色调偏暗,用橙色点缀,瞬间温暖起来。两边大面积的落地窗,让室内光线更加充足,空间更加开阔、通透。
火柴点燃的瞬间,“噗嗤”一声,橙色的火焰在空中摇曳,黑夜染上了橙色,淡淡的灰雾揉碎了风,白色的星星开始眨眼,银光散落的海边,梦轻轻的摇,月亮打了个哈欠,溜进了蓝色的梦。
餐厅 Dining Room
夜幕降临,灯光垂下,一壶浊酒,一对闲人,相对而坐,看花开落,望云卷舒。原本无光,我们以意境创造光。
餐边柜与客厅的色调一致,背板也用了和地砖的纹路相似的选择,空间丰富却不杂乱。
厨房间 Kitchen
黑色的橱柜和墙面形成强烈的色彩对比,剩下的内容就让生活来填满吧! 翻越春秋冬夏,尝遍酸甜苦辣,人间最贵是亲情,世间最爱是美食!
入户换衣间 Vestibule
入户后,我们增设了换衣间的概念,出门之前可以在这里整理形象,用最自信的姿态面对一切。回家后,这里可以卸下疲惫,整理情绪,好好享受跟家人相处的时光。
我们利用装饰画,给原本封闭的空间,注入了一缕清风。
公卫干湿分离,糖果釉亮面材质在灯光的照射下,波光粼粼。
楼梯间 Stair case
白色楼梯穿插黑色线条作为装饰,背景选用灰色衬托,黑白灰的基调,带给我们心灵上的宁静。
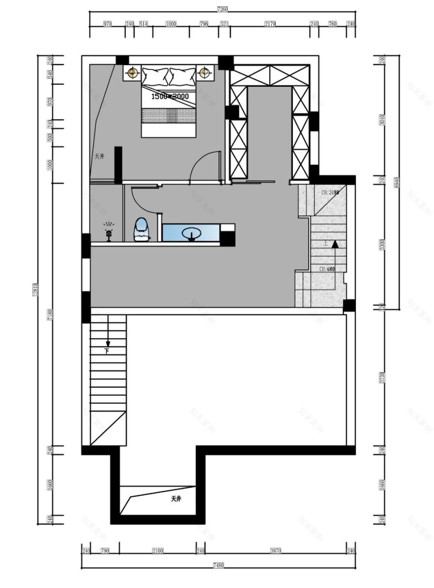
二楼平面户型
原设计
改造后
改造后:二楼公共空间宽阔而不再狭长。卫生间台盆使用尺寸增加。主卧衣帽间以及整体储物量增加。动线更加合理。二楼楼梯间 Stair case
主卧 Master BedRoom
墙面和地面纵横交错,肌理变化,颜色深浅,整体质感淡雅细腻,表达着空间语言、维系着空间情感,和公共空间完全相反。
主卧的设计摒弃繁复,木色的床头饰面板和吊顶做了连接,扩展了空间的延伸感。
儿童房 Children’s Room
用蓝色编织一个遨游太空的梦,星星藏进云里,月亮掉入海里,孩子进入梦中,可以随意编制自己想要的世界。
窗边抬高,规划出一部分作为孩子的玩耍区域,丰富的图案造型,激发孩子探索未知世界的兴趣,给孩子一个充满想象力的空间。
外卫 Washroom
不同纹理的灰色砖,一体成型的台盆,空间里跳跃的一抹橙,卫生间也可以设计出不一样的精彩。地下室 平面户型
原设计
改造后
改造后:有公共区域的储物间,保姆室有采光。台盆尺寸加长,利用率提高。
原设计
改造后
改造后:空间功能更加分明,增设亲子互动区、储物间、健身室、茶水间。将原本不能敲的柱子,融合在我们设计的各个功能区里。地下室 Basement
过道底部,我们精心挑选的装饰画,变幻出了此处是尽头却又非尽头的意境。
挑空的观影区,巨大的圆形吊灯自上而下,增加光线的同时给人的纵深感更强。
方寸之间,一把单椅,一个边几,足矣。顶部星星点灯,总有一盏灯是为自己而亮。
一部分作为孩子的活动区,柜体收纳玩具,一整面的乐高墙,拼凑出孩童自己的世界,随着孩子的成长也可以轻松变化。欢迎关注画年代设计,更多作品,扫码关注。
设计咨询
客服
消息
收藏
下载
最近




















































