查看完整案例


收藏

下载
机构 |Company:画年代设计事务所
设计 |Designer:王丹丹
摄影 |Photograph:AK空间摄影
她,虽是一介单身
房,虽有九年之龄屋
屋,
虽为一室蜗居
但…………
Before
她要一个美美的衣帽间
今天的穿着是韩日可爱风,
还是潇洒中性风,
心情说了算!
Before
她要一个宽敞的厨房间,
有中式的烹饪以供日常,
有西式的料理享受单人贵族的情调!
她要一个多功能的餐厅,
既可供三五好友来小聚,
也要为平时的生活留出舒适的空间!
Before
她要一个放个豆包,
就可以是自己小世界的小角落!
Before
她要一个在某些地方
可以暴露自己少女心的颜色。
Before
她想挑战一个,
她初见不敢接受,
可遇见又满心惊喜的墙面颜色。
Before
她要一个她不忍辜负的餐厅,
一个人也是要好好吃饭的。
Before
她要一个碰上阴雨天的休息日,
可以在温暖的床上窝一整天的卧室。
Before
她要一张大大的书桌,
要将工作带回家之后也有足够的空间展开思路!
Before
虽然小小的卫生间还有一个大柱子,
但是她希望盥洗柜的台面尽量多一些!
综上所述,一个68平的户型,
你们以为她要的多吗?
不,不多
……因为遇见了我们
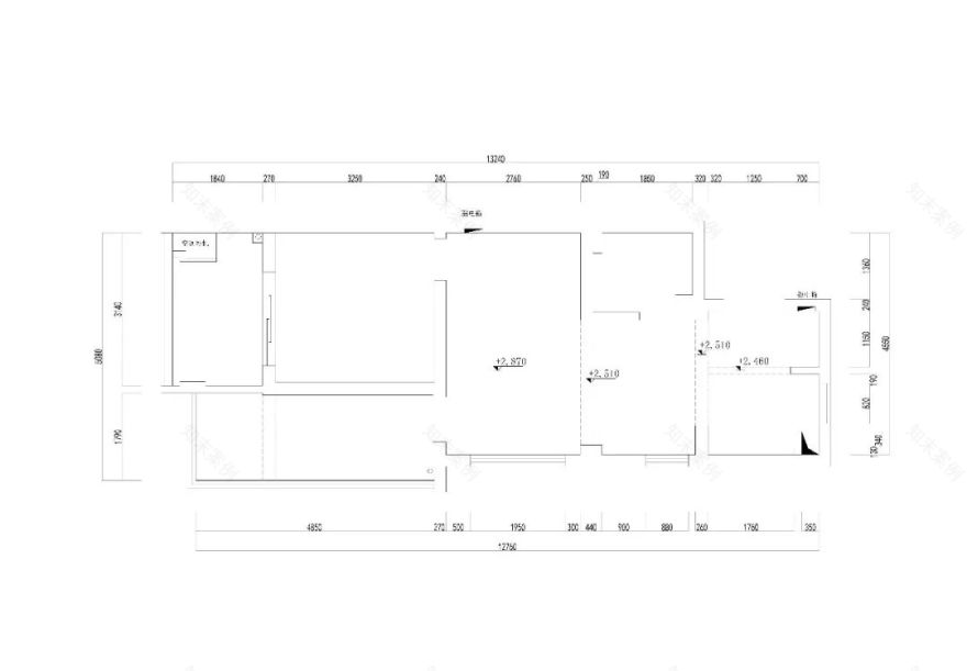
▼ 原始结构图,PLAN
▼ 平面布置图,PLAN
尴尬的客厅尺寸,一侧偏短,一侧又长的离谱,餐厅只能靠在窗户边,长长的阳台堆着满满的杂物。还记得第一次在房子里碰面,迎着暖暖的冬日,她笑着跟我形容她想象的在这个房子里生活的情景。
调整之后的户型,将客厅的空间重新划分调整 ,保证一个合理的尺寸后,开辟了一个阅读角,铺上一块小地毯,再来个懒人沙发,窝在里面一整天都不嫌多。
餐厅与客厅相连,可拉伸的四人桌,更多的时候是处于收起来的状态 ,使得空间得已更高效的利用。开放式的厨房,使得整个空间更加通透,偶尔下厨,犒劳一下辛苦的自己。长长的阳台,被改造成一个书房兼客房,看书累了,透过大大的玻璃看着绿荫,这个算是她的“常驻地”了。
每一套房屋的装修都是装易换难,几乎每套装修都会伴随她的住户八年…十年…甚至更为久远,陪她的住户走过最珍贵的青春年代!我们的理念就是“用心的绘画和勾勒出属于不同住户独一无二的年代空间”!
设计咨询
画年代设计事务所
往期精彩回顾
画年代设计|何须浅碧轻红色,自是花中第一流
画年代设计|石湖景苑146平|与光同行
画年代设计|弘阳上湖130平|这个大白不太冷
客服
消息
收藏
下载
最近






























