查看完整案例


收藏

下载
ZHI CHI &
DESIGN
你要的家、尽在咫尺设计!
——
设计师是一个替别人做梦的职业。
Designer is a profession that dreams for others。
项目信息
项目地址 | 中建大公馆
项目面积 | 108㎡
项目设计 | 武汉咫尺设计
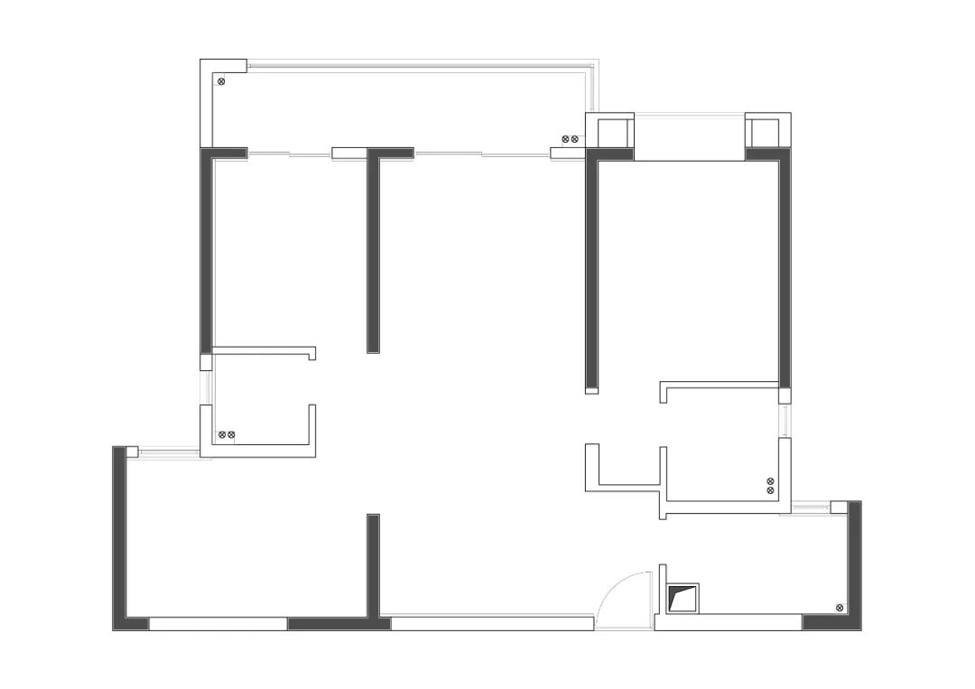
平面改造图
户型优化
1、将客厅阳台彻底打通、增加一家人的休闲活动范围,进门处利用拐角设计收纳柜和餐边柜,从而释放厨房空间的压力,缩短家务动线、更加方便省力。
2、保证空间合理的情况下,扩大主卧卫生间面积、打造真正意义上的三分离,采用收纳柜进行隔断,保证卧室和卫生间两个空间的独立,同时增加空间的收纳量。
3、扩大次卫空间打造干湿分离,儿童房利用转角处设计了靠墙衣柜和书桌椅,满足小朋友学习、收纳和休息的需求。
4、老人房靠墙设置书桌椅和收纳柜、满足老人的生活习惯,靠近阳台的双滑门改成三滑门、方便进出。
视觉设计
▶素雅朴拙的木饰面、诉说着生活本有的温情与安心;
大面积的浅灰色石膏墙、衬托空间色调的层次;
摇曳的绿植、在空间中透射出自然的优雅,让空间充满明亮而鲜活的感受。
▶
简雅静谧的美学空间,可以为居住者带来了赏心悦目、抚慰心灵的绝佳体验;
沙发的慵懒,原木的温润、天然石材等不同材质的家具搭配,极大地提升了空间的质感。
▶艺术简雅的餐厨空间、让家真正地成为了温情自在的精神港湾,与客厅空间相通、在尺度视野上得到了拉伸与拓展,这是一个不流于平庸、静谧温润的美学空间。
-The End-
荣誉奖项/Honorary Award
.2021金住奖-中国(武汉)十大居住空间设计师
.2021-40UNDRE40中国(武汉)设计杰出青年
.202
0芒
果奖-中国住宅
优胜奖
.2020-40UNDRE40中国(武汉)设计杰出青年
.红棉中国设计奖-2020室内设计奖
.好好住-2020营造家华北赛区Top100
.她设计奖-2020年度优秀软装设计奖
.2020“自然 共生”G+设计精英大赛全国Top100
.M+中国高端室内设计2020武汉“头号设计师”
.2020PCHOUSE AWRED全国BEST100杰出设计机构
.2020设计本最佳软装搭配、最佳别墅/豪宅空间奖
.2020-2021上海国际设计周新锐中国设计奖省际榜单
往期内容/Past works
Add:武汉市江岸区青岛路10号
多牛世界G栋二层(12-2)
阅读原文,给你更多惊喜!
客服
消息
收藏
下载
最近







































