查看完整案例


收藏

下载
提示
:
点击上方
"
北京紫名都装饰
"
↑
更多惊喜等着你......
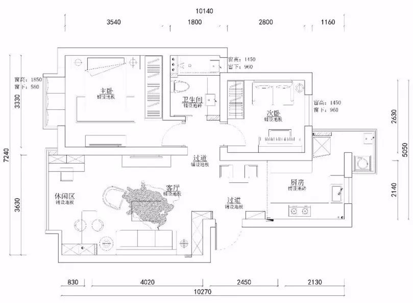
整体是北欧风格的简洁空间,配上舒适鲜艳的软装布置,带来了一个轻松闲适的惬意氛围,充满了清新优雅的气质。
客餐厅打通的格局,中间是玄关区域,整体北欧风格的家具布置,闲适轻松的软装,置身其中感觉惬意自在好自然。
留白的电视墙顶部加入了筒灯与投影幕布,一个书架钟,搭配白色与木质的电视柜,简洁的电视墙也显得很是舒适大方。
浅灰色的布艺沙发,搭配上彩色地毯与桌椅,沙发墙大小不一的装饰画,带来的是文艺精致的气息。
玄关的鞋柜设置在客厅侧边的位置,L形的柜体,中间留空一层作为展示台,摆上精致的盆栽与摆饰品与藏光设计,显得充满了文雅精致的氛围感。
客厅阳台打通成一体的空间,显得宽敞自然,布置了书桌与吧台,小小的空间也有着更多的可能。
厨房后方还有个小阳台,以1+L字形的操作台布置,实用舒适的厨房以白色橱柜搭配白色工字贴的墙面砖,整个空间都充满了文艺优雅的氛围感。
灶台后方的这个一字形操作台,放上小电器可以作为料理台。
文艺洁净的空间,搭配灰色亚光砖,显得优雅舒适而自然。
淡蓝色的卧室空间,木质的床与格纹床单,床头中间挂一幅方形装饰画,宽大的木质床头靠背,顶部还能作为展示架。
木质床头柜上摆着鲜花与铜制台灯,小小的角落也是温情优雅好自然。
衣柜以窗帘作为柜门,找衣服也更加方便。
书房摆了一张沙发床,以休闲阅读为主的空间还设置了一个大面积的书架。
坐在小沙发上在落地灯的照射下,取一本书而阅之,简单的日子也惬意情趣。
卫生间整体灰色的墙面地面砖,搭配白色的半入台的洗手盆,巧妙精致而实用。
以玻璃隔断作为干湿分离,马桶与洗手盆对向布置,整体设计宽松实用。
长按关注:紫名都
客服
消息
收藏
下载
最近


























