查看完整案例


收藏

下载
美 学/情 怀/时 尚/文 艺/设 计
YiXing,2021,MINGSHE DESIGN
“生活 不能等待别人来安排
要自己去争取和奋斗……”
心中想要的家——是足够欢喜
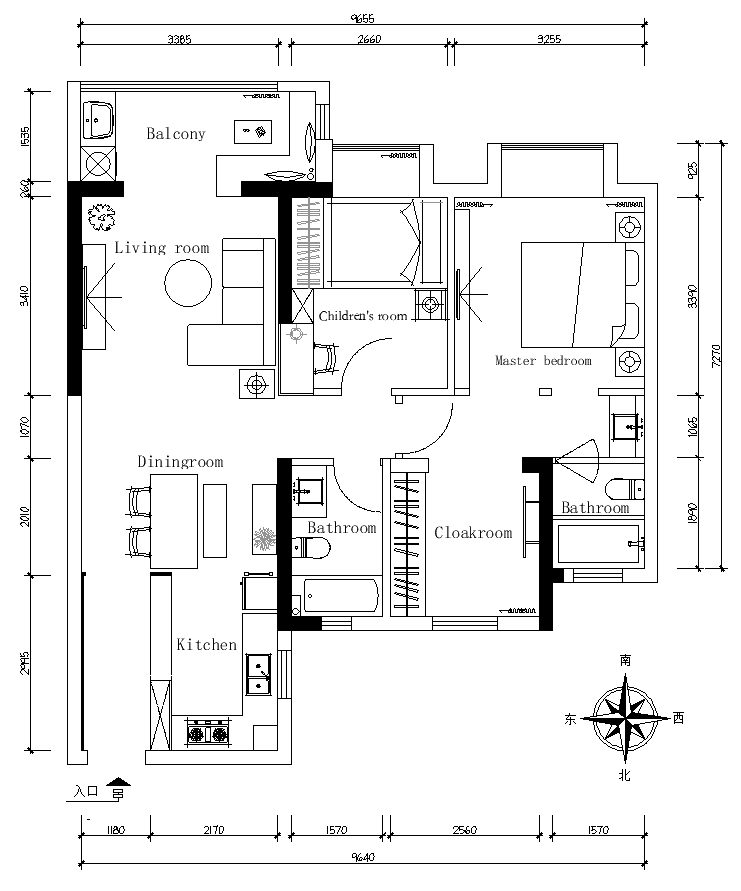
陶里春风110m²【平面图布置图】
屋主是我的好闺蜜,性格温和开朗,另外还有一只可爱的宠物小狗一起居住。她希望未来的家不仅能够遮风挡雨,更可以贴合自己的生活。既要时尚温馨,也要容得下柴米油盐和日常琐碎。在设计中,尽量让空间延伸,室内明亮。也利用很多色彩轻松地营造整体家居氛围。
为了提高入住后的自由度和舒适度,我们只留了两个卧室,将主卧及公共区域扩大。保留观赏性阳台、加入书房、衣帽间、套房功能。
厨房料理区以清新的浅绿色为基底,搭配白色的橱柜,将空间的灵动轻盈平衡的恰到好处。开放式厨房,让厨房和餐厅之间有一定的社交功能,朋友偶尔来聚会也很方便热闹。
餐厅一侧的餐边柜与整体风格协调,补充收纳给生活提供便利。
原木的质朴,布艺沙发的柔软,清新的绿植装饰加持…真实、自在、美好,让每个角落都有所互动,如此的生活样貌,如此多的温暖贴心,才让以后那些寻常日子也变得不同!
走道的拱形设计让空间有过渡感,及空间的韵律,分区。
书房与客厅也是半开放有互动.
卧室空间重新规划了生活动线,设计了集卧室、衣帽间、卫生间的大套房。拥有一处独立的放置衣服和鞋子的房间,是每个女人的梦想。
客卫的色彩和整体调调也是和谐的。复古的小花砖配长虹玻璃门。浴缸上方的吊灯是宜家的爆款,美美的泡澡一定很惬意呢!
愿屋主未来的日子一如既往地可期!
谢谢阅览!感谢闺蜜的信任及工人的辛苦劳动!
好的设计永远不是依靠设计师天马行空的想象力,
而是需要对生活有更深刻的理解,
每个热爱生活的人,
都可以被称为一名优秀的设计师。
Add:宜兴市荆邑北路8号
▼
客服
消息
收藏
下载
最近





























