查看完整案例


收藏

下载
现代都市快节奏的生活方式和日益增长的生存压力,使得很多人身心都处于极度的疲惫之中,都需要在高楼林立中寻得一处宁静之所。
DESIGNER+DECOR
项 目 名 称|碧 桂 园—翡 翠 湾
设 计 风 格|现 代 极 简
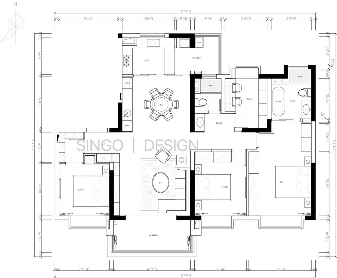
项 目 面 积|180㎡
房 屋 类 型|平 层
本 案 设 计 师|许 聪
今天小编就给大家带来一个平层的经典设计案例,本案从格局开始首先极力满足业主居住需求的同时做了部分的格局调整,采用现代极简的设计风格。
+ Sittingroom 客厅
客厅经过简单的调整过后,使原本开阔的空间充分得到功能释放,同时对局部局促的空间进行空间扩充和公用关系的处理。而且在保证空间开阔度的前提下,收纳方面也相比原户型增加了两倍的收纳空间,以满足女主人的收纳需求。
整体采用纯色,且色调偏淡,减少视觉负担。摒弃一切无用或刻意的装饰意图,每一个角落都最大程度的具备实用性,保留生活的本真。+Dining room 餐厅
用餐区域放置在客厅右侧,布置极简自然。以强调功能性为主,摒弃一切繁杂,没有奢华的造型和装饰,只有处在灯光下的餐桌、餐具、画作,可供一家人静静品味珍馐佳肴。
Master bedroom 主卧
卧室中简单的线条,美的倾诉,刻画着一幅幅精彩的作品,让休憩的片刻也有着动人的故事和对话。静谧舒适的灯光还原宁静、安逸的生活空间。
+ Studyroom 书房
书房能让人沉淀心灵,放松身心,在墨香中让精神得以升华,忘却凡尘俗世,休养、滋润灵魂。+ Toilet 卫生间
|效果 VS 实景
最后的模样,满足主人高要求的同时,效果图还原度还高达 99.99%,给主人们带了不少惊喜。
平面图
设计师—许聪
▲年度“华语设计领袖榜”
▲40UNDER40 中国(张家港)设计杰出青年
毕业于四川美术学院
11 年专注室内环境艺术设计
国家注册二级建筑师
CIDA 高级室内设计师
CBDA 高级住宅室内设计师
中国建筑装饰协会设计师会员
苏州市装饰协会设计师会员
2013 年度“金鹏奖”公寓类优秀作品
2014 年度“筑巢奖”公寓类银奖,“华鼎奖”别墅类银奖
2016 年度“金堂奖”公寓类杰出作品,“菊花杯”老房改造类一等奖
2018 年度“苏州设计周”公寓类优秀作品
2019 年度“时间坊实战赛”别墅类,华东区十强设计师
2019 年度“金住奖”别墅类,城市十大居住空间设计师
2020 年度“40 UNDER 40”,设计杰出青年
设计理念:设计源于对生活方式的理解,用心去体验生活,用思想去创造设计
擅长风格:现代、极简、禅意空间、侘寂美学
人物风采
———— READ MORE
>>>>>
(点击图片查看往期文章)
以上皆为星杰实景。查看更多实景案例。初心未改,严真以待,止于至美。咨询热线:0512-58963318。地址:张家港 人民中路 151 号,金城大厦 17 楼。
客服
消息
收藏
下载
最近



























