查看完整案例


收藏

下载
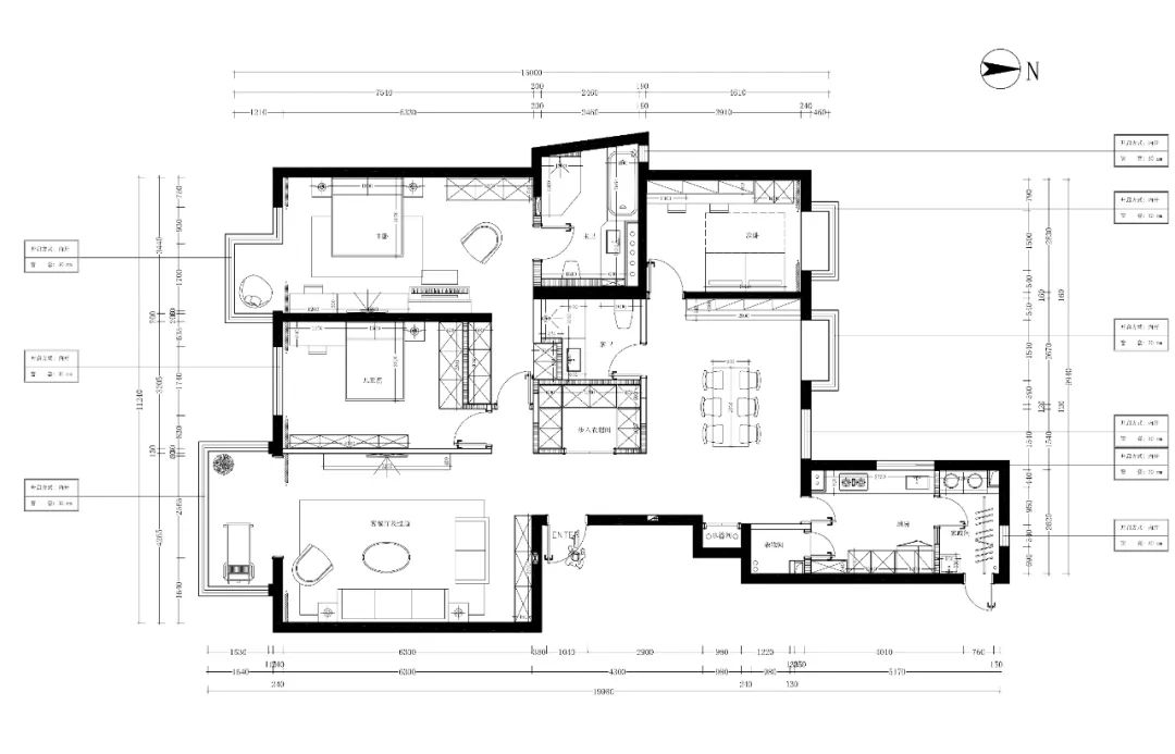
本次分享的案例是三口之家,夫妻双方都是空乘人员。由于平时的衣物及行李箱很多,因此需要大量储物空间。原始为 180 平的 4 居室(两个大卧室+一个次卧+书房)完全可以满足日常生活的居住需要,但是现有的空间布局不合理,业主想让空间规划更规整,提升居住舒适性。除此之外,男主人比较个性化的需求是一间专门的电竞室。
Project
户/型/分/析
Project analysis
原始布局里,位于整个户型的中间、正进门的位置是一间客卫;无论是从风水学还是实用居住的角度来说,它都是比较“尴尬的存在”。其次,餐区空间很局促,采光欠佳;最后是户型动线规划不合理,浪费很多空间。基于业主的以上需求,设计师在跟业主进行全面沟通后进行了大胆的设想与改动。
玄关
Vestibule
亮
点
将进门的客卫进行拆改,通过加出部分空间,形成独立衣帽间,用来存放暂时不需要的衣物、鞋子、行李及杂物,加出的区域不但扩容了空间,此处墙面也与客厅过道位置持平,让户型看起来更完整。
客厅 Living room 亮 点
风格上,业主偏爱优雅的古典法式风格;实地体验过实景展示之后,决定选择博洛尼——白金汉宫系列。设计师也非常给力,用古典稳重的象牙黄色、略带奢华感的香槟色“打底”,点缀靓丽的橙黄色为空间增添活力气氛。
客厅户型规整,展示柜、电视墙、沙发都沿墙布局,不占地方。3 层吊顶,摒弃传统法式照明的繁复,选择当下主流的无主灯设计+磁吸轨道灯,将古典与现代结合在一起。深灰+黑色大理石的电视背景墙,此处的亮点之一是地面设计成软木地板+瓷砖的组合,方便打理,但脚感却很加分!
客厅通向卧室的走廊比较狭长,改造的时候设计师特意采用了“镜面收纳柜的设计”,在充分利用空间的基础上,也让室内更明亮宽敞。
餐厅
Restaurant
亮 点
原始用餐区很局促,只能容下一张餐桌的大小。设计师把书房拆除,扩容到餐厅区域,形成西厨+用餐区的组合。女主人很喜欢这个空间,还特别搭配了精致的骨瓷餐具,一家人在此分享美食带来的幸福时刻!
厨房
Kitchen
亮点
厨房使用的是博洛尼——威尼斯整体橱柜。改造的重点是功能分区,家政间、洗衣区、独立的晾晒区都划分明确,方便业主使用。
主卧 Bedroom 亮点
压缩了儿童房和原有主卫空间,使主卧不但拥有宽敞的睡眠区、小阳台,同时还新增了独立的衣帽柜。风格上延续客厅的法式浪漫,但色调及材质都更柔和;灯带的形式解决照明,漫反射的光线柔和温馨,很适合卧室气氛,也呼应了其它空间的现代感。
主卫 Bathroom 亮 点
主卫的动线根据业主的生活习惯做了调整,盥洗、淋浴房、浴缸、壁挂式马桶,功能齐全,让空间利用更合理。
儿童房 Children’s room 亮 点
不同于客厅、餐厅、主卧室的法式风格,女儿房、电竞房、厨房设计成现代简约风格。
电竞房 E-sports room 亮点
为了满足男主人的个性需求,设计师牺牲了飘窗空间,特别使用 6 层玻璃去打造“0 噪音“纯黑色系(整屋黑色壁布)电竞空间。女儿房、电竞房“双面门“设计,一面现代,一面法式,一个空间两种生活,生活的美妙就在于此!
客服
消息
收藏
下载
最近



















