查看完整案例


收藏

下载
2019 年北京世园会结束后,都市实践设计的植物馆是园区内唯一持续运营的场馆。植物也适应了场地,获取了更旺盛的生命力。这给予我们一个契机重新思考植物馆这个建筑类型的潜力:如果不是建造在郊区,而是在社区中,更贴近日常生活,植物馆将会带来不可估量的城市活力。这个想法驱动了我们一个决心,把四季常青的社区花园做为社群建设的抓手,在每一个北方项目中植入类似温室的植物空间。由于有世园会植物园设计经验和设计资源的加持,这个决心很快付诸于行动,也有不少甲方为之心动,但都因为种种原因没能落地。这个理想最合适的场地当然是东北,所以当沈阳这个社区活动中心项目出现时,我们一个先验的直觉是这是一个实现社区温室花园介入的好机会。
白沙岛金融小镇 WD-03-D 地块规划设计
场地位于沈阳白沙岛金融小镇,这个 5 千平米的社区活动中心位于这个小镇入口的一个有 5 万平米开发量的商业地块中。但是,“沈抚新区-金融小镇”这两组词对于完成这个商业开发量极为不利。首先,沈抚新区是沈阳和抚顺中间的一个待开发地带,现在还没有足够的人口来支持商业;其次,金融小镇只是这个开发区众多小镇之一,如何形成有竞争力的商业模式?
通过和甲方的沟通,双方都认同靠做一个抢眼球的活动中心来带动商业的陈俗做法并不可行。而社区活动中心做为项目开发的刚需,可以消化一部分商业面积,但剩余的十分之九的面积如果要合理消化掉的话,就必须依靠一个更有力量的因素来带动所有的公建面积。
从这个逻辑出发,如果只是设计成一个展示项目 IP 的社区中心,对于激发地区活力意义并不大。所以,更好的解决方案是做出一个能解决整个地块生存的提案。而这个方案也很简单,就是用一个温室把这个地方缺乏活力与公众参与度的公建连接起来,使之成为一个有活力的,整体的生态圈。而甲方在东北的生活经验使他在几分钟内做出了决断:由都市实践来负责全部 5 万平米的商业地块设计。
整体地块剖透视
从片区的城市研究和设计出发推导出单体建筑的设计方向,是我们 URBANUS 都市实践的一贯工作方法。
在这个规划研究中,我们穷尽多种布局模式,最后得出了一个符合工程时序、合理分配功能、满足规范要求的方案:用一个温室连接几个功能模块,并结合此处客观的商业容量,合理地分解了不同的业态。
最后的解决方案是朴素的,没有猎奇式的造型,但直观上看不仅能够吸引商业人流,还能吸引年轻人创业。
考虑到东北地区的保温需求,温室并不是全玻璃顶的,部分的实屋面还塑造了一个社区互动空间。
在公建市场并不景气的地区,这个案例其实可以做为一个用营建温室内的社群空间为抓手来带动销售或租赁的范式。
而这个简单合理的模式之所以在市场上见不到,其直接原因是现行的规划指标不允许如此,因为为了保护绿地过冬的温室会占据大量的计容面积,这是开发商不允许的;平摊的温室会大大超过覆盖率,这是规划局不允许的;绿地上有建筑物,这是园林局不允许的,等等。
如此之多的上位条件使盖温室这个念头寸步难行。
所幸的是在这个地方有一个更高的上位条件,那就是沈抚新区是东北改革的先行区,一切陈规还有复议的可能。
在政府组织的专家评审会上,专家们看到了这个方案可以帮助解决东北地区漫长冬季中枯萎的绿地问题,更看到用让四季常青的绿化带动城市活力和社群建设的潜力。
基于建筑法规是用来促进建筑有序健康发展的原则,最终审批尺度得以灵活调整,在规划指标的解释上有所破局,使这个规划构思得以成立。
温室轴测
前期社区中心项目诞生于 2020 年春节期间。当时疫情时候的关键词是“隔离”,这也促成了对社群聚会的渴望。这种对建筑要返璞归真的诉求甲乙双方都有共识,即把活动中心建成一个社区的活力场。这在郊区化的小镇并不难实现,因为小规模的人口反而容易形成熟人社区,关键是缺少一个促进人与人交流的场所。
建成社区中心外观(摄影:曾天培)
图书馆像社区的一盏明灯(摄影:曾天培)
用框架限定户外广场(摄影:曾天培)
有了这样的共识,这个设计实现了惊人的后疫情速度,从概念方案到完成室内施工图花了不到四个月的时间,其中关键的方案认可、政府通过等工作还是在居家办公时间里完成的。
之所以能够实现这个速度,在于方案精准地立足于对几个最基本要素的把握:
第一,场地布局
社区中心东侧道路是小镇的主入口,这个街块的进深有百余米长,所以直白的逻辑是一个百米街墙比一个点式的造型更有利于形象设计。
另外,这是一期工程,还要最大限度地为西侧未知的温室设计节约用地,所以要尽量用足东侧的南北用地。
这样,建筑外轮廓就界定在南北向狭长边界内。
同时为了节省时间,不做地下室。
第二,主立面
如果刻意为百米长的立面的做个造型,将是件很矫情的事。
疫情把矫情打回原形,为什么不把立面变成一个博古架上社区生活的展示?
我们设想了三个社区生活场:
一,一个线型的图书馆,背景是宏伟的书墙,前景是靠近窗边的阅读桌。
在东北漫长的冬夜,这将是小镇入口的第一盏长明灯。
二,一个社区剧场,外墙是个巨大的窗框,开演前将窗帘打开,把剧场内部空间用剖面的方式展露出来。
三,带个小温室花园的小镇接待厅。
这三个场所的形象都是靠内部活力的外溢,所以在巨大的幕墙后面的室内空间才是真正的立面。
社区图书馆(摄影:曾天培)
社区剧场(摄影:曾天培)
透过玻璃幕墙看小镇社区接待厅(摄影:曾天培)
带小温室花园的小镇
接待厅(摄影:曾天培)
第三,前广场
广场是有中国特色的社区标配,它既有自上而下的礼仪功能,也有自下而上给大妈们发挥的自由空间。建筑东侧的退让虽然有足够的宽度,但如果没有空间界定,空地并不等于广场。于是我们把建筑的柱网延展出来,定义了一个舞台画框式的广场。不仅仅把二层的三个主要的活力场包容其中,还在一二层的联系上加了一个山形的坡地。本来计划是做成一个绿坡,把室内外的绿化连接起来,但考虑到冬季绿化存活率的问题,就改为了一个木地板儿童游戏场。
户外广场(摄影:曾天培)
户外广场儿童活动空间(摄影:曾天培)
第四,功能与动线
对于这样的金融小镇,惯常的活动中心做法会设置一个展示区,开门见山的展示模型,以及规划相关的信息。
与其如此,为什么不用实景来直接展示小镇的人文理念、生活品质和社区氛围呢?
我们将官方的小镇大展厅做为一个独立单元的被设置在首层,通过一个空间序列才到达,这即加强了仪式感,还使之完全封闭,适合于策展团队独立运作,不与其它功能混淆。
后来的抢工过程证明了这种做法的明智,因为布展工作完全可以独立于其它部位的装修,没有不同工队之间的纠纷。
在未来的换展中,这种独立单元的灵活性也非常高。
这样活动中心的主体变成一连串有趣的文化空间,这些空间建筑学的起承转合变成了建筑所能给日常生活带来的趣味感,这样建筑的空间句法带来了生活的语义。
分层轴测
社区美术馆(摄影:曾天培)
把这些基本要素组织起来的线索是变化的场景,而每个场景都不能脱离温室的概念。
遗憾的是在这个活动中心我们还没有条件做真正的温室,但我们还是尽力引进绿化,尤其是垂直绿化。
室内垂直绿化是在东北地区非常值得推广的产业,也是因为这个设计,使得我们也真正了解了目前国内在这个行业上的技术水准已非常系统化了,而这个设计无疑可以做为推动这个产业的一个样板。
在竹林中拾级而上(摄影:曾天培)
建筑内部垂直绿化(摄影:曾天培)
从一楼上二楼有三条路径:
东侧是与外部大楼梯同步的室内楼梯,通向二层的阅读空间;
西侧是向西敞开的室内绿植,穿过这片竹林,可以达到二层的会议区;
南侧则是美术馆,通过他的内部三角形中庭也可以达到二层。
以植物为主体的主要建筑公共空间(摄影:曾天培)
从竹林上到二层空间(摄影:曾天培)
社区剧场前厅(摄影:曾天培)
社区剧场前厅(摄影:曾天培)
社区美术馆(摄影:曾天培)
二层的主体是图书馆和有折叠座椅的多功能剧场。
虽然狭长的平面没有多大的设计余地,但两层高的图书馆还是有动与静、私密与开放的空间变化。
这里会是所有功能中居民的使用频次最高的地方,必须涵盖不同的年龄层,也必须考虑到对读者的粘性。
社区图书馆(摄影:曾天培)
社区图书馆(摄影:曾天培)
社区图书馆(摄影:曾天培)
对于无法用真正绿植来点缀的空间,我们则通过超级平面设计的方式来实现。
在这里,我们以法国画家卢梭的画作为原型,设计壁纸和地毯,来表达一种回归到野性的植物世界的氛围,以此来期待二期即将建设的温室,那时绿植不但是视觉的,也是听觉的、嗅觉的和味觉的。
社区图书馆儿童阅读区(摄影:曾天培)
回到温室本身,经过这个项目的实践,这个活动中心的绿植设计所表达的,不仅是好想在东北盖个温室,更是想在东北建个有温室的社区。
建成社区中心鸟瞰(摄影:曾天培)
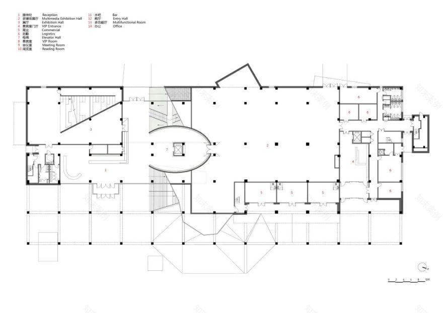
一层平面图
二层平面图
三层平面图
剖面图
项目信息
项目名称:白沙岛金融生态小镇社区中心
项目地点:沈阳市沈抚新区
设计时间:2019—2020
建设时间:2019-2021
用地面积:9500㎡
建筑面积:7097㎡
建设单位:辽宁白沙湖实业发展有限公司
规划设计/建筑设计/室内设计/景观设计:URBANUS 都市实践
主持建筑师:王辉
设计团队:郑娜、姚咏梅、豆勇辉、胡海波、高子絮、王竞飞、胡家铭、张婷、江中雨、李刚、汪蕾、柴秉江
建筑施工图:沈阳市华域建筑设计有限公司
室内施工图:沐澜装饰工程设计有限公司
景观施工图:玖拓景观
摄影:曾天培
Click and followURBANUS
↓
点击“阅读原文”
客服
消息
收藏
下载
最近


































