查看完整案例


收藏

下载
与人文交互,与自然共生,自然、和谐、舒适 Interaction with humanity, symbiosis with nature
设计团队:时光里全案设计
Design team:Full Case Design In Time
项目地址:成都 亚特兰蒂斯
Project address: Atlantis, Chengdu
项目面积:560m ²
Project area: 560m ²
户型结构:独栋别墅
House type structure: single family villas
设计风格:现代简约/轻奢
Design style: modern simplicity/light luxury
设计师:黎晓军/李妍玥
成都﹒亚特兰蒂斯 X560m²
FULL CASE DESIGN IN TIME▍时光里全案设计
DESIGN CONCEPT
设计理念
本项目是位于亚特兰蒂斯的一处独栋别墅。业主家是三世同堂,期望在保持各个空间互相独立的同时,展现人文之间的交流与互动,此外,考虑到老人的居住,因此想构建一个人文与自然和谐的共享共建空间。
设计师充分了解到业主的需求,在空间的构造上,设计多处家庭日常交流互动面,在色度与取舍之间,也为家庭调和了更为温暖的色调,打造出人文与自然和谐的居住空间。
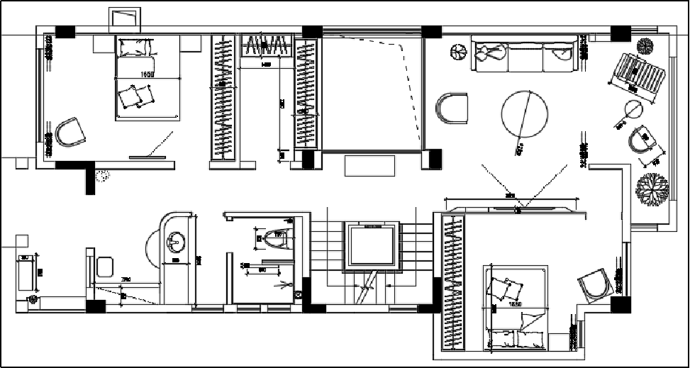
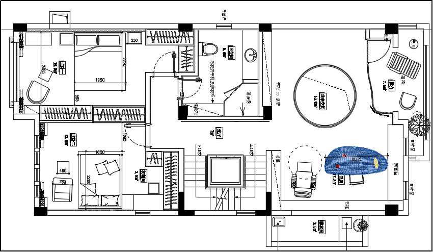
HOUSE LAYOUT/平面图
1F
2F
3F
-1F 入户 Entrance
负一楼入户充分体现人文与自然的互动,将整体美观与功能融合得恰到好处;设计师颠覆传统,打造绿植端景,使业主一进入空间就能放松心情,彻底卸下疲惫,进入自然、舒适、自洽的空间状态。楼梯扶手运用曲线元素,结合绿植端景,营造出一种自在山水的意境。客厅 Living room
轻盈舒适,大气简洁。客厅空间主要考虑人文之间的互动交流,与开放式厨房进行连接,当置身于客厅休闲时也能与做饭的家人产生亲密互动;沙发背景墙选择简洁的大理石。在软装的搭配上,选择了很柔和的花瓣沙发,营造舒适、轻盈的空间氛围;高级橙与质感黑的错落收纳柜,向内、向外的连接,又营造出一种空间层次感。餐厅 Dining room
极简中的高级感;整个餐厅空间以质感的大理石与温润的木质元素为主设计基调,以空间中的冷与暖的对撞,形成空间独特的呼应;整个空间的挑高与楼上阳光映衬,营造自然、和谐的用餐空间;错落的水晶吊灯也增加了空间的灵动性。
1F 玄关
Porch
柔和、自然,入户玄关多用曲线元素,弧形玄关几,转角处做弧形处理,圆形壁灯等等,希望业主一进入空间,就能有放松开阔的心境。客厅 Living room
沉稳内敛,紧致有序。将阳台借用到室内空间,无限的扩大了客厅的空间感;一楼主要为两个老人的活动空间,搭配上,也选择了活力稳重并存的暗橙色沙发搭配沉稳的木质元素,使空间有一点中古既视感却又不失灵动感。壁画结合业主喜好及习惯,选择了一副橙色系的万马奔腾,寓义马到成功;顶部圆形设计也正好契合人文互动,自然共生的理念,既与二楼进行亲密连接,也能享受自然的天光。
老人房 Elder’s room
宁静朴素,老人房主要运用了低饱和度的灰色作为主基调,营造安静舒适的睡眠空间。
2F 女主人房
Hostess room
温润舒适,宁静温馨。女主人房运用大量的木饰面元素,营造温馨、舒适的空间氛围;背景墙与休憩区域呈错落设计,给空间营造更多的层次感与丰富性;圆形大小不一的壁灯,又给予空间一丝巧妙性。
男主人房 Master room
简约干净,大气雅致。整个空间以干净的素色调为主,水蓝色床头柜与折线椅的搭配会给予空间一定的柔和性;隐形灯带也为空间带来一些活跃感。
3F 女儿房 Daughter’s room
自由浪漫,美好曼妙。女儿房以活力橙色系为主氛围,搭配随风舞动的床幔,本身就如同指尖舞蹈的少女,随风曼妙。
浴室也充分结合自然,也能感受阳光的照射,营造更开阔的视觉空间。
女儿房的休憩区,也打造了一个独属于少女的曼妙空间,皮质与棉麻材质相结合的暖黄沙发与彩色猫猫镜共处一室,少女感满满。
时光里全案设计
结合每一位客户的家庭实际生活需求,在设计中融入艺术美学元素,从平面布局规划到风格色彩定位,用心雕琢每一个家,为每一位业主打造独一无二、充满幸福感的家居生活空间。REVIEW
客服
消息
收藏
下载
最近







































