查看完整案例


收藏

下载
如何将一栋Art Deco装饰艺术风格的建筑改造为满足现代需求的办公场所?杨浦瑞安INNO创智项目启动时,就致力于塑造一个打破传统的联合办公空间,并与杨浦区一带的校园与知识产业有机结合。
随着上海经济的腾飞和创业人群的激增,对于商业设施尺度需求也在时时变化。由此, 联合办公空间的适应性变得尤为重要。瑞安INNO创智在秉承创新精神的前提下,给出了详尽的解决方案,设计出一整套办公生态系统:从个体、到初创企业、再到中型企业和大品牌,都能找到与之相适的空间。
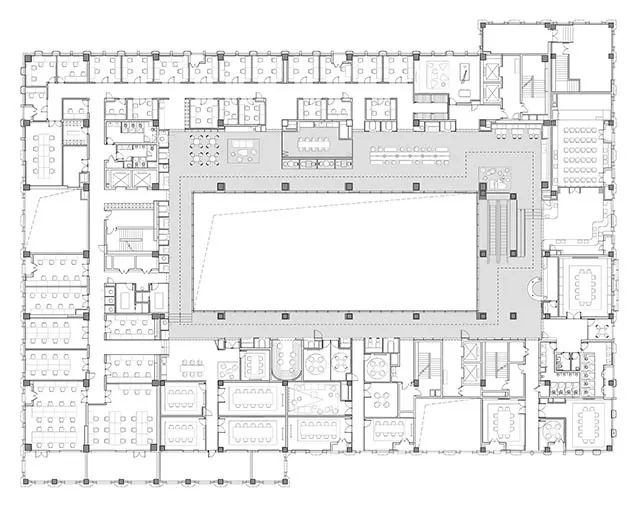
作为上海新型城市综合体的一环,瑞安原有的中庭更贴近人的尺度。AIM为增强社区内各区域的亲近感,进一步优化了中庭的尺度设计,使之成为项目的核心。
尽管建筑立面无法改变,但AIM借由围绕中庭构筑共享空间带的方式,赋予了社区以整体性和脉搏。整条通道仿佛一个枢纽,将办公、零售和餐饮区由外及内连接在一起;改造后的瑞安中庭成为了集会区域和活动中心,让人直观感受到瑞安INNO“共享”的价值理念。
两栋办公区楼的总建筑面积在6.5万平左右。尽管各入驻公司的规模、性质各不相同,但通过二楼环状的共享空间,它们都被纳入相似的价值系统,不同功能分区和素不相识的用户也因此被串联为一个整体。
如需进入高层办公区,用户必须先经过共享社交空间。该灵感源于上海老里弄——居民穿越诸多商铺、店面和房屋立面,最终抵达社区的核心。
对于生活在城市中的人而言,个体需要借由适当的公共性彼此联系。
AIM将城市居民的情感诉求,具象为锐意优雅的设计。
共享社交区域被温暖的木质立面包裹;午休时,用户可以在开放式厨房享用午餐,或者在睡眠舱里打个盹。
会议室亦有不同规模可以选择:从仅供两人使用的胶囊式空间,到能容纳全体例会的大会议室。
中庭上方,外立面环形玻璃形成了鲜明的视觉冲击,阳光顺着茶色玻璃流泻到室内,点亮了整个空间。
AIM希望通过这种设计,引起人们好奇的发问:这是哪里?谁在这里?他们在做些什么?这些问题,也恰是我们在经过一个充满活力的街区时,会忍不住提出的问题。我们相信,想要构建一个良性生态的商业社区,所需要的远不止是浮华的商铺。
业主: 瑞安房地产
项目地点: 中国上海市杨浦区政学路88号
建筑面积: 65,000 平方米
竣工时间: 2019
设计范围: 外立面改造, 室内硬装和软装
设计总监: Wendy Saunders, Vincent de Graaf
项目建筑师:
李璐禕, 田炳玟
项目经理: 徐心懿
设计团队: 蔡宁远, 焦琰, 李梦婕
软装设计团队:
李昭沅, 利佩珍, 王尤宝儿
摄影: Dirk Weiblen
-----------------------------------------
AIM ARCHITECTURE
恺慕建筑设计咨询(上海)有限公司
5F, 77 Fenyang Road, Shanghai 200031
上海市徐汇区汾阳路77号5楼 200031
+ 86 21 6380 5995
Facebook: AIM Architecture
Instagram: aim_architecture
Linkedin: AIM ARCHITECTURE
客服
消息
收藏
下载
最近















