查看完整案例


收藏

下载
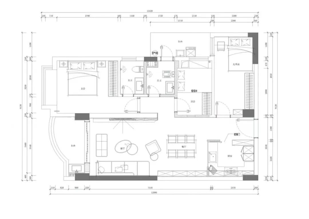
原始户型
Firsthand House Type
这是一套100㎡的三居室,房子条件本身很好,户型端正,窗景将江景风光尽收眼底,与品质感的内部装修结合起来,恰好便是繁华小城中颇具品质感的现代居所。
存在不足
Deficiencies
1.无入户玄关,收纳功能缺乏。
2.客餐厅面积较小且动线单一。
3.三个卧室却有一间暗房,拥挤和狭小。
设计策略
Design Strategy
1.把厨房与暗房互换,厨房用玻璃墙面代替,保证了厨房采光,又避免油烟。
2.打通了客卫与平台,增加一个晾晒空间。
3.把原有的三个房间及卫生间的非承重墙体做了拆除,将空间做了重新整合。
4.原有的厨房改为次卧,添加榻榻米+柜体,主要用于储物收纳,预留了二次改造的可能性。
请横屏观看
业主是一对年轻的夫妇,完成了从两人世界变为一家三口的人生转变,设计师以此为功能布局的原点,注重满足全新人生阶段的空间需求。设计师希望能够让空间去承载生活的温度,让家人之间拥有更多的交流、情感的连接。
当设计师第一次来到这里时,我们意识到内部将继续建筑其清晰的线条和秩序感。当更深入地了解客户的意愿时,该项目的主要动机就完全形成了:流畅的线条、视觉上的轻盈、放松和一目了然的现代简约风格。
作为一个居住空间,通风采光是需要解决的核心问题,设计师在公共区域做了比较多的贯穿设计,让各空间更具视觉连贯性,同时环形通道能让每个空间的空气游走起来。
客厅以白色和浅灰色为主色,优雅素,地面选用
微水泥色地砖
,与户外斜射进来的光线相抵,结合营造了不同的韵感与雅致,有很好的居住舒适感。
餐桌面向客厅摆放,视野可通达客厅及阳台,增强互动性与观赏性。
餐桌对面做了置顶连体柜,既增强了收纳,又确保了整体视觉美感,空间简约而不简单。
主卧打造了大面积飘窗,
光线透过薄纱,在室内洒下浮动的斑驳光影。
抽象艺术挂画悬于床头,线条既有极简的基调,也有打破单调的功能,恰到好处地调剂空间。
木与白的碰撞,搭配线条的美感,空间富有层次又和谐统一。
一幅画作可以改变一个空间,一颗童心可以改变一种生活。儿童房延续了简约大气的格调,让自然、阳光、清新的空气与温暖的爱意,陪伴小朋友健康成长。
次卧由榻榻米+整排柜体构成,主要用于储物收纳,预留了二次改造的可能性。
在直线构造的空间中,辅以柔软的线条作为点缀
,木材质朴粗糙的纹路,布艺温柔的触感,自然与舒适并行。
/ Related news /
- 更多新闻 -
入选亚洲青年设计之光Top100
荣获2022INNODESIGN PRIZE全球创新设计大奖
/ About Designer /
- 关于设计师 -
陈海
Hai Chen
尚城舍影創始人/設計總監
当代精英生活方式倡导者,尚城舍影创始人,从事空间设计领域13年。他始终以独特视角不断探究人与空间的本质,坚持“设计有价值”,其构思开放包容,敢于创新与自我突破;倡导简约、实用、多维的生活美学空间,尊重空间、环境与人的共生关系,专注为客户实现一个个理想的生活居所。
尚城舍影/设计团队
尚城舍影建筑装饰设计成立于2015年,专注于高端住宅、商业、办公等多个领域的设计实现。公司践行全案落地服务,强调设计的可落地性与创意输出,通过建筑、景观、软装、机电等专业配套资源的整合,强化设计落地能力。秉持“解决问题”为设计宗旨,“创造价值”为设计导向的原则,多年深耕韶关市场,逐渐成为当地极具代表性的先锋设计机构。
S.C.D Space Studio
地址/Add:韶关新丰人民东路32号东盛新城小区3区首层
客服
消息
收藏
下载
最近






















