查看完整案例


收藏

下载
X會所
美與自然的敬畏
項目名稱:X會所
項目地點:廣東 深圳
建築面積:950㎡
設計需求
私人會所
顏色對比強烈
貼近自然
滿足所需功能
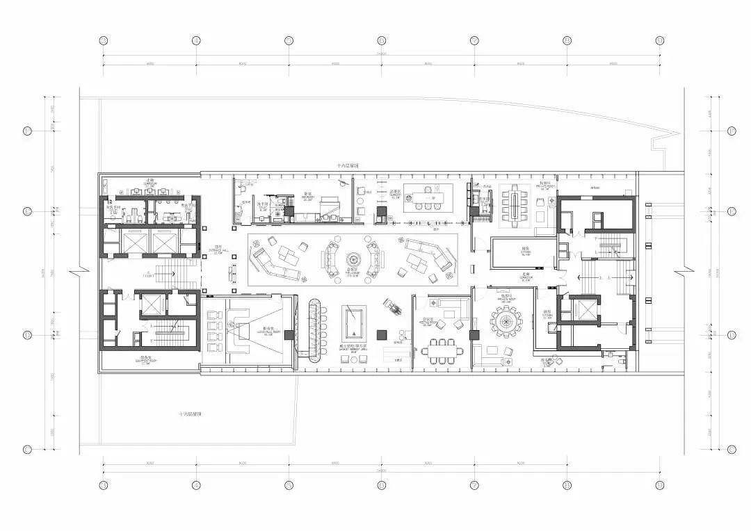
前期現場
平面圖
設計呈現↓
實景落地
會客區
色·彩 | 光·影
会客区天花用直线光强调顶棚,包房的线条灯,整体空间点状光源强调细节,让空间层次具有变化,灯光与材料的糅合交织,都渲染出静谧悠然的氛围,光影的韵律,置身其中,怡然自得。
品酒區
大自然雕琢的力量,給我們提供了最天然的設計靈感。
水紋玻璃磚、波紋金屬板源於水面波紋,石材墻面、酒吧臺背景則源於山體砂巖造型,包房天花的木質造型則源於綠色森林,層巒疊嶂。這些從自然中提煉的設計語言都讓空間增加了層次感,變得立體豐富。
中餐區
美國的波浪谷,因其砂巖上的紋路像波浪一樣因此得名。
這是一個由數百萬年的風、水和時間雕琢砂巖而形成的產物。
在大自然的洗禮下,使得巖表面形成黑色、灰色、紅色、咖啡色和土黃色的條紋。
風化成型,水滴石穿。
西餐區
巖面自身的色彩優勢,足以讓空間的色彩自然融合,通過不同的材料的顏色在不同空間裏分別發揮著各自的作用,斑駁的金屬肌理漆、質感分明的木飾面、粗礦自然的石材,整體交互融合。
茶室
和諧 共生
挑高的木質坡屋頂,肌理豐富的墻面,精致溫暖的壁爐,棕色皮質沙發以及絨毛地毯,與周圍山、水、林和諧共生。
我們希望給空間帶來一份溫暖,營造自然地美好,三兩好友,交談甚歡,這份溫暖可以在彼此之間,永遠留存。
休息室
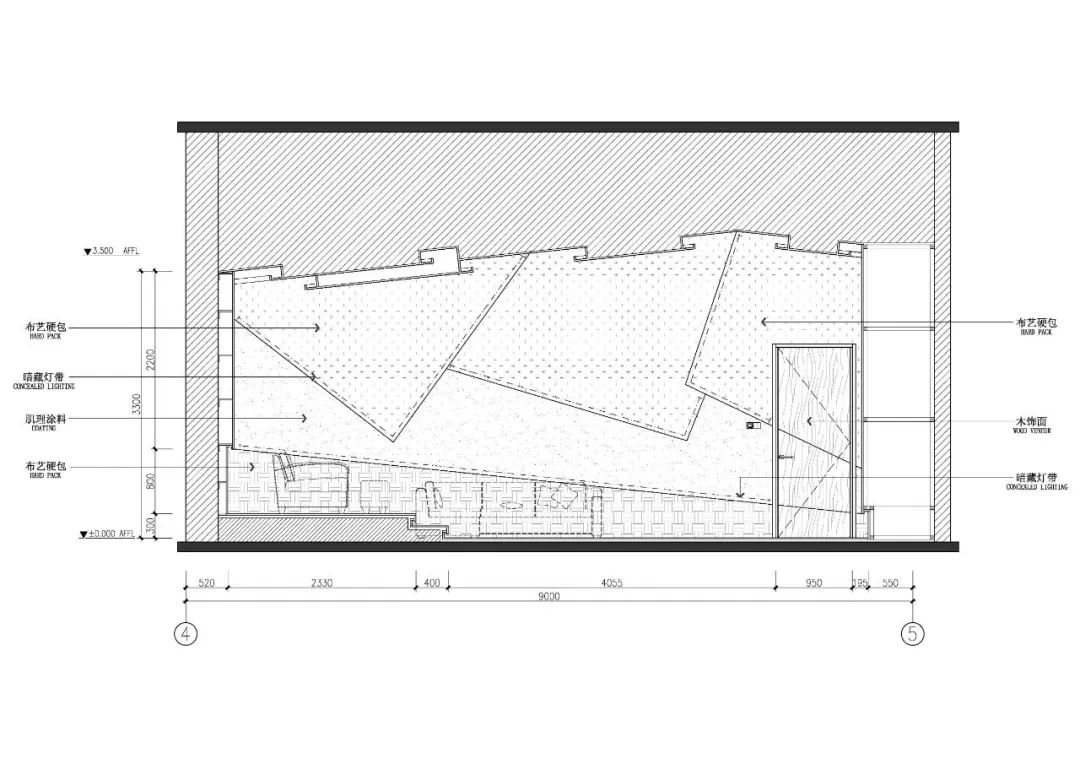
影音室
臥室
洗手間
玄關
慢
設計歸於簡約,歸於自然,在喧鬧的城市中,尋找那份慢節奏,享受這個空間帶來的安靜與愜意。
地址:廣東省深圳市福田區八卦嶺工業區427棟503
503, building 427, Bagualing Industrial Zone, Futian District, Shenzhen, Guangdong, China
手機MB:136 9224 4943
客服
消息
收藏
下载
最近








































