查看完整案例


收藏

下载
千广 | 澹然工作室
主案 | 袁小军 朱妍
五月的天,刚诞生的夏天。春去夏来,人们早已迫不及待迎接夏天,而家,似乎也在随着季节的变化,长成新的模样。
在如今愈发浮躁繁琐的网络环境下,越来越多的人不得不向市场做出迎合,逐渐忘记家的内里本质,但是大多数情况我们每个人都没有资格做出高下立判,设计的最终使用权依旧是业主自身的品味归集,设计师所做的就是把业主的理想中的家宅进行完整的呈现。
空间结构
SPATIAL STRUCTURE
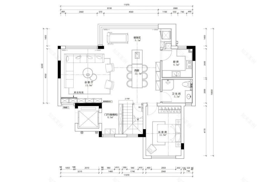
▲平面布置图(一楼)
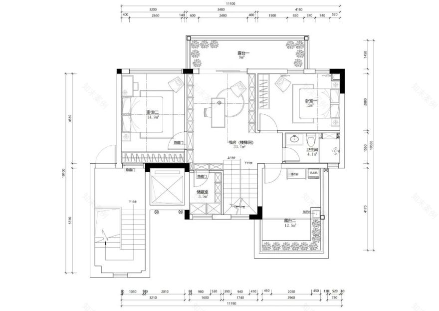
▲平面布置图(二楼)
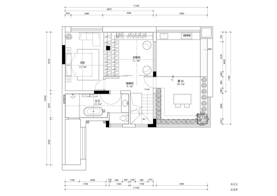
▲平面布置图(三楼)
呼吸/breathe
设计的重心围绕公共区域展开,一楼本来是有两个入户门,设计师为了保证客厅动线的完整性,只保留了楼梯一侧的入户门,作为家人日常停留最久的客餐公共区域,设计师的处理增大了客厅的使用面积,也增加了人与空间的交互。通透的处理也让视线可以延伸至各个空间角落,目光所及之处均让人喜悦。
流动的空间拥有更多探索的可能性,与常规的客餐厅设计不同,一楼的厨房与卫生间都做了封闭式的设计,很大程度上保证了两个区域的私密性,并且设计师在视觉上采取了对称的手法,从客厅的角度看过来,两个区域分开却又与彼此联系,目光触碰到的每一处都是松弛舒适的。
人文/humanity 弱化公共空间和独处空间之间的边界,转身来到二楼,两边一体的书柜,包括入户门边的展示柜,满目琳琅的书籍,无不展示出这个家主人的知识氛围。浅原木的色调赋予整个空间收放有度的呼吸感。
次卧深色系视觉与浅色的公共空间分割开来,室外的光线掠进静默安然的内里尘嚣,舒适闲雅的感觉在全身舒展开来。
与自然共处/coexistence with nature
走上三楼,这里没有传统的规矩之说,简单的空间布局却体现出设计师的无限灵感。整个一层都是业主二人的私密空间,正对楼梯便是一间衣帽间。外面是布满绿植的露台花园,在给予了通透性的同时也保证了私密性。
主卫的空间则大面积使用了墙砖和艺术漆,绿色的漆面让整个空间深邃而静谧,设计师的想法让生活动线充满独特趣味的体验感。
睡眠区则满足了他们自己的想法,中式风格更加明显,贴近自然,与心灵共处。古朴静雅的墙面装饰与坡屋顶相呼应,提高了空间感。房间内多了一些本来就该如此的平静,在自我意识的调和下,房间不单单只是一个单独的容器,它应该是带有个人印记的专属领域。
业主的自白 /confession of the owner
.
.
.
【END】
设计师 | 袁小军 朱妍
设计荣誉
HONOR IN DESIGN
MUSE 缪斯国际创意大奖
MUSE CREATIVE AWARDS
中国室内设计年度评选 金堂奖
ANNUAL SELECTION OF CHINESE INTERIOR DESIGN
NEST AWARD 筑巢奖
FORUM AND AWARDING CEREMONY
IDEA-TOPS 艾特奖 国际空间设计大奖
INTERNATIONAL SPACE DESIGN AWARD
APIDA 亚太室内设计大奖
ASIA&PACIFIC INTERIOR DESIGN AWARD
中国家装产业创新大赛 红鼎奖
CHINA HOME DECORATION INDUSTRY INNOVATION COMPETITION
CIID 中国室内设计大奖赛 优秀奖
CHINA INTERIOR DESIGN AWARDS
金外滩奖 INTERIOR DESIGN
THE GOLDEN BUND AWARD
中国设计杰出青年 40UNDER40
OUTSTANDING YOUTH OF CHINESE DESIGN
红棉奖中国设计奖
RED COTTON AWARD CHINA DESIGN AWARD
BCDA 美化家居设计大赛金奖
BEAUTIFYING HOME DESIGN COMPETITION
《时尚家居》全国年度十佳作品
FASHION HOME IS ONE OF THE TOP TEN WORKS OF THE YEAR IN CHINA
ZHU RONG AWARD
JIN WA PRIZE
客服
消息
收藏
下载
最近






























