查看完整案例


收藏

下载
△接待大堂
PROJECT
项目名称:中国龙工·优加展厅
LOCATION
项目地址:福建·福州
PROJECT AREA
项目面积:1000㎡
DESIGN TEAM
设计团队:维上设计
CHIEF DESIGNER
主创设计:蓝玉维
PROJECT PHOTOGRAPHER
项目摄影:何惠明
WRITER
文案:蓝玉维
中国龙工,全球工程机械50强企业;它起源于中国红色圣地—闽西,与身俱来的红色基因、经历千锤百炼的企业成长史是本案设计展开的轴线。
△建筑外观
龙工优加展厅位于福建福州,坐落于雄伟的五虎山脚下,海峡机械园内。海峡机械园经历业态的重整之后如今已整装待发,将成为福州市工程机械行业重点的展示销售园区。
△建筑外观
从室内到建筑外观,
通过对几何造型建筑感与现代美学的探索与表达,用趣味性的思维转化成为室内外艺术场景;将工程机械充满张力的外形状态融入其中,从而达到建筑、空间与人的共鸣。
△铁锈肌理
△接待大堂
岁月总会留下痕迹,
经历千锤百炼的龙工,如同斑驳的铁锈。铁锈肌理写意的印证了龙工企业的红色基因、金属基因和企业成长史。几何造型状的铁锈背景,形成五张座椅的姿态,意在表达“虚位以待”、“五谷丰登”
的美好
愿景。
△办公通道
前台区趣味性的将工程机械驾驶舱的外形融入其中;作为室内空间的轴心部分,它既是空间的亮点,也是空间动线的重要引导。
△通往二楼
龙工企业色在空间中的运用淋漓尽致,蓝色的玻璃扶手夺人眼球;运用浅灰色水磨石做为空间的基底,提亮整体空间的明度。
△办公区组合柜
带有企业符号的软装陈设,加深了空间的企业文化属性。
△二楼通道
△接待茶室
△三楼通道
受限于原建筑构造,三楼区域层高较矮,而作为最容易被忽视的空间区域,将二楼通往三楼楼道通过跳色处理吸引来宾,仿佛穿梭于时光通道进入新的空间;三楼被规划为重要来宾接待区和会议室使用。
△建筑外观
龙工优加展厅的落成,打破了园区、内乃至整个工程机械行业传统惯性装修模式。崭新的建筑、空间状态为龙工销售带来更多的亮点和吸引力,已经成为园区内地标性建筑单体。
DESIGN PLAN
▼
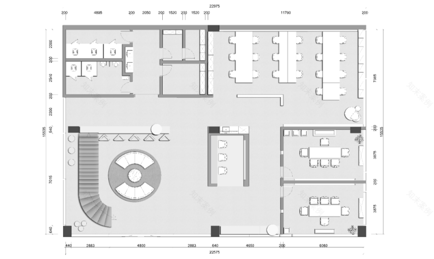
△一层平面图
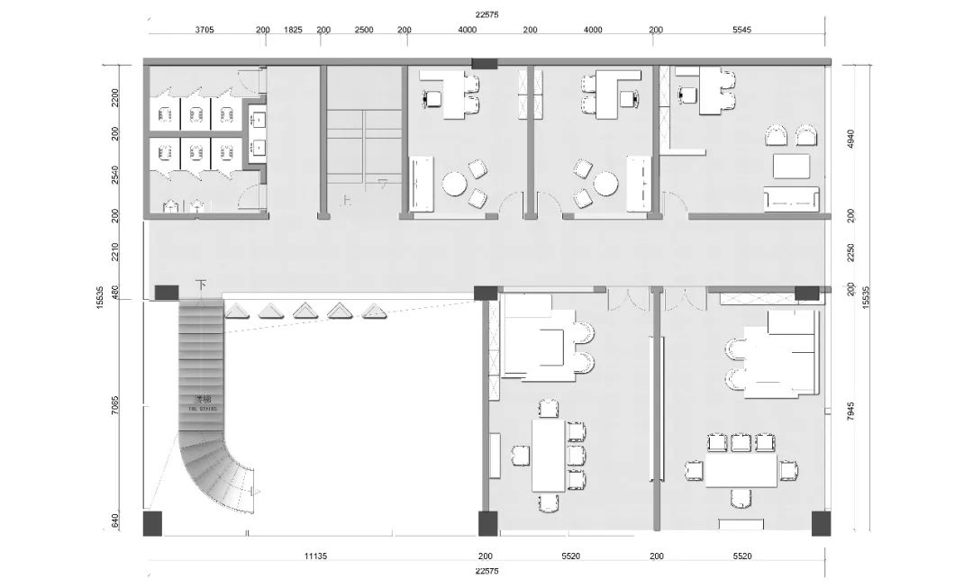
△二层平面图
△三层平面图
维
/
上
/
设
/
计
维度空间 上乘品质
WEIS INTERIOR DESIGN
『
主创设计
』
▼
蓝 玉 维
维上设计 创始人/设计总监
金堂奖全国联盟福建站 常务理事
福建省环境艺术设计协会齐心学社 副秘书长
荣 / 誉 / 经 / 历
▼
• CIID 福建十大年度新锐设计师
• 40 UNDER 40中国(福州)设计杰出青年
• 2020 寻星奖全国十八强
• 金住奖 中国(福州)十大居住空间设计师
• 金堂奖 V网站年度人气榜
• 2019 上海国际设计周新锐中国设计奖(省际榜)
• 2019 上海国际设计周新锐中国设计奖(城际榜)
• 2019 第十一届中国照明应用设计大赛福州赛区佳作奖
• 2019 卡米亚东方美学设计大赛福州赛区TOP8
• 2018 金堂奖 中国室内设计年度评选优秀作品
• 2018 中国(福建)室内设计总评榜年度最佳办公空间
• 2018 中国(福建)室内设计总评榜年度优秀设计
• 2017 福州移动卫视《打造梦想家》栏目专访
• 2017 福州移动卫视《城市梦享家》栏目专访
项目合作,欢迎联系
室内设计 | 住宅 | 别墅 | 商业 | 全案委托
13459115314
感谢阅览,欢迎留言。
THANK YOU ALL .
客服
消息
收藏
下载
最近





























