查看完整案例


收藏

下载
黑、白、木,这样的设计元素给人第一感觉就是,十分简洁、自然,
而王强所创立的黑白木空间设计工作室,也的确一直致力于用简洁、神秘、自然的设计,创造有故事的空间。
▲黑白木设计工作室
“我们基本上每个设计项目都会有不一样的主题概念,目的就是为了不重复自己。要做
出
新鲜感,这样才比较有趣。”
王强设计作品:DR BEAUTY
|
用建筑手法做室内设计,创造新空间
设计对王强而言,是一种创造性的工作,是把一些旧的事物,通过重新组合变成一件新的事物。而这种创造性,不单单是通过室内设计来实现,更多是和建筑设计的相结合。
“我们用建筑体块、光线等手法来处理设计。我们经常研究的也是建筑设计师的作品,尤其是普利兹克奖获奖的建筑师,这是世界很重要的一个设计风向标。”
王强设计作品:自然光影
“我觉得做一个设计草图的过程,就是写一个电影剧本的过程,这很有意思。建筑是空间的艺术,电影是时间的艺术。我们努力把空间和时间结合,去做一个有永恒诗意的设计。”
轩宅:
自由流动平面功能布局 释放更大空间
这是一个80多平米的房子,出于工作的需要,业主在初次沟通的时候,就表示希望新家能兼具生活和工作、日常创作的需求。
为了释放出更大的空间,客厅没有放置传统的大沙发,而是把飘窗向内飘出一个回字木框架,即可当作沙发,也可作为小孩的玩具桌。
回式的开放空间给室内增加了更多的可能,也更显通透。
设计师用整块原木头制作成了悬空的餐桌与书桌,致力打造一个兼具生活与工作的成长、创作空间。
放眼望去,空间整齐利落,设计师把业主这样的都市精英人士与生活环境之间的互动用设计贯穿其中。诠释工作、生活以及家庭关系的平衡,打造现代人雅致、惬意的居住模式。
自由流动的平面功能布局,可以满足各种多变的用途,借鉴现代建筑与雕塑而设计出的各种体块,丰富了整个空间的情感体验。
黑色的神秘、白色的简洁、灰色的调性、木色的自然、个性的椅子,共同造就了一个温馨的成长环境,也营造出可以激发灵感的氛围。
回木:
无招胜有招,极简是追求更好的事物
现代很多人对‘极简’有着极大的误解,极简不是意味着放弃,而是追求更好的事物;极简也不是整理你所拥有的物品,而是清理你不需要的物品。王强设计师这个“回木”案例,就很好的表现出了极简内涵的一面。
“当你开始想着用什么电视背景墙,搭配什么装饰品的时候,你就开始走偏了。上世纪伟大的已故建筑艺术大师阿道夫·卢斯说:
‘装饰就是罪恶’
。”
“过多的装饰品毫无意义,就像武侠小说里面的花拳绣腿一样。真正的高手,最厉害的招式都是看不见的,这叫‘无招胜有招’。”
扔掉那些无意义的虚荣的背景墙,扔掉那些积满灰尘的廉价装饰品。用多出的钱,买下自然的芬芳,买下永恒的艺术品。
其实,极简,也是一种极奢。它将设计的元素、色彩、照明,简化到最少的程度,心无旁骛地关注材料,对材料的质感、工艺的要求却很高。这个项目是尝试用高端材料和极简风格的结合。
我们可能看不出什么刻意的设计痕迹,但是都用名贵的材质和精湛的施工细节,去打造一个即时是有钱人,也很喜欢的家。
整体保持了现代极简风格,同时最大程度释放空间体量,将空间利用最大化,融入功能,简而不减。
"这是一种国际审美,在欧美、日本这些国家,这种设计很正常。但是在国内,土豪风格目前还是比较盛行,不少人花了很多钱,却设计出很丑的东西。我们要和丑陋的设计做抗争,让我们的设计,维持在国际审美的范围。"
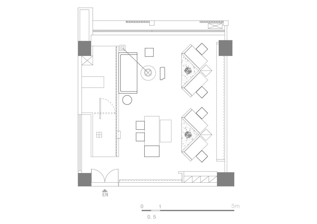
无间:
普通材料展示高级感 长方形木盒作空间隔断
无间,是王强所创黑白木空间设计的办公室,同时也是他们做极简手法设计的另一个方向,这是一个没有完全隔开的办公空间,在这几乎是正方形的室内,并没有做任何独立的房间,设计的初衷,是希望用普通的材料做出高级感。
在入口处置入一个长方形木盒子,作为空间的暧昧间隔。旋转灰色玻璃门是用来满足空间功能的,错落有致的窗子是用来增加空间情感体验的。这一切也促进了使用者及来访者的交流与互动。
天花和地面都是黑色的,墙壁是纯白的。
黑色天花用来掩盖横梁、消防管、电线管,白色墙壁用来制造简洁的气质。
洽谈区的桌子也是一块水磨石大砖,好像从地面延伸上来的一样。
办公区是用两个W型的矮屏风隔开,让每个办公者拥有不一样的视野和感受,有别于常规的长方形大办公桌。
整个空间用的灯光也是经过精心设计的,只有三条细细的长灯带,以及三个射灯,分布在不同的区域,制造不同的照明感受之外,也渲染出不同的空间气氛。
材质使用方面,水磨石和欧松板被大量使用。
一种是石头的碎末做成,一种是木头的碎末做成,这两者搭配起来,感觉很巧妙。
办公室的效果是适合创意发散工作的,也保证了工作的效率。
如此奇妙独特的空间,
受到了意想不到的欢迎。
更多作品详情
DR BEAUTY
魔法
无招胜有招《回木》
MXX 美容院
黑白深蓝
潮·餐厅
客服
消息
收藏
下载
最近















































