查看完整案例


收藏

下载
似森似花是光是影似音符奏乐章前厅一个个凝固的音符,谱写出一个灵动活泼,极具生命力的空间。几何形态拟化的花与树,以“弧”与“线”规律放入单元体中,再结合空间设定的功能与位置,大大小小,丰满空间中。尊从大自然规律,以“高”“矮”“肥”“瘦”调动空间的光与影,使得空间层次韵律起伏,表情丰富,正整达到简洁而不简单的效果。
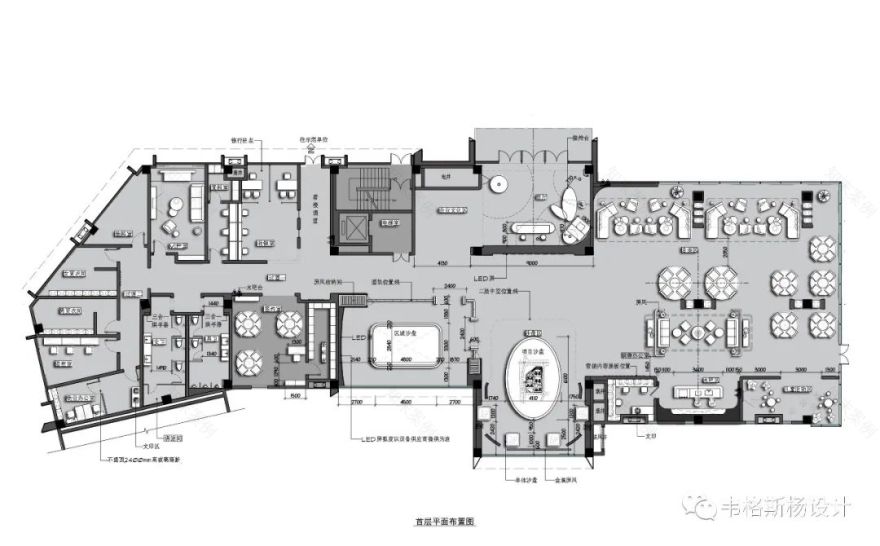
洽谈区
从室内渗透进来的自然光,让人想享受一顿下午茶。
沐浴在这秋天的日光里,续上一杯茶,聊聊天,慢悠悠地享受这时光,似乎就是来这里的目的。
笔直的线,弧形的边,勾勒出的空间,饱含着坚定又缓缓地流露着温柔。往上看,缤纷的花环环绕立于场地中,以建筑结构柱网为基点分隔空间,阵列有序的变化摆设,以虚实结成一种体系。
色彩的重复取得视觉的联系与唤起视觉的运动
沙盘区
叔本华说:“当我们在欣赏设计时,相比起其他,光线是一个绝对必要的条件,它能够放大美。”
彩色的“蕊”,如花季少女,灿烂而含蓄,奔放而内敛,尽情演绎着光与生命的真谛。
太阳通透的屋顶,照在“蕊”中,折射出一个色彩斑斓的世界,如花在绽放。这些透着光的美,是空间与人对话,呢喃细语,让人心花怒放。
背景色是室内色彩设计中首要考虑和选择的因素,使用极具包容性的白色,能将环境因素与室内性质沟通起来,剔除杂质,以达到最理想效果。而且因地制宜,白色的背景能完美地表达光与影的互动。
阳光绚烂的空间
阴天的空间
色彩能随着时间的不同而发生变化,微妙地改变着空间表情
门套与脚线关系细节处理
过渡空间焦点处理与围合穿透的关系
VIP 区
精心订制的水磨石电视枱,延展至一体式“美人靠”,与园林景色互动,里外自然过渡。挑高的空间与窗景合二为一,让空间随四季变化而变换表情。
项目资讯:
中建映花悦府营销中心
开发商:中建地产广州有限公司
项目地点:广东 广州
项目面积:1699.52㎡
设计团队:林智伟团队
摄影师:陈嘉献
广州市韦格斯杨设计有限公司
广州市凹凸工艺品有限公司
地址:广州市海珠区新滘中路 88 号唯品同创汇园区艾特利薇大街 3 号
电话:020-83781048
电邮:
网站:
客服
消息
收藏
下载
最近









































