查看完整案例


收藏

下载
序
山不稀缺
,但三山环抱的宜居之地稀缺。
景不稀缺
,但零距离推窗观景稀缺。
墅不稀缺
,但动静相宜、咫尺繁华的城墅稀缺。
与山为伴 与景相依
广州萝岗既是生态保护区,亦是
新广州未来发展的方向
。
WHO
——城市房地产目标客户群体分
类
广州的
流
入
人口主要来源是本省其他城市及周边省份,其中人口来源最多的地方为深圳、佛山及东莞。
WHY
——广州客群置业原因
由数据可观,人群置业的目的是主要来源于生活需求,其次,投资需求也成为置业的第二大群体,占据相当的比重。
WHERE
——来广购房选购地段
广州是一座老城,中轴发展从荔湾、越秀延向天河、琶洲,再到科学城。如果赌未来的城运,东边创新中轴线
将是
个购房
投资的不错选择。
WHAT
——客群购房类型意向
大多数客群将刚需置业目标瞄准为“三房”
,其次是二房、四房。
和谐空间 与家成长
我们应该打造一个什么样的宜居之地?
身为区域内唯一的复墅产品,其位置居于项目最右侧的半山之上,呈雁翅布局之态。西瞰天地美墅及梯田美墅等产品,乐享高层视野;东望无垠山体,可清新正气。整个复墅的东西侧皆无遮挡,两梯两户的布局更能做到户户私密而不对望。户内独特的错层复式布局,让复墅内部享有更多采光面及通风渠道。功能分层有序,在
尽享亲密的同时
,又能保证室内居住者各自的私密空间。
玄关
客餐厅
主人房
儿童房
书房
厨房
主卫
公卫
时代浮
躁,匠心难得。
在这个产品为王的时代,若想要在市场中脱颖而出,就要在使用率、人性化设计、装修标准等细节上倾注更多心血。
正如丹麦设计大师汉斯·瓦格纳所言:
把一件家具翻过来,如果底部也能让人满意,其他部分便不会有问题。
如何能让人生活得尽可能舒适,这并不完全取决于居住面积的大小,更关键的是在于对空间的布置是否合理。
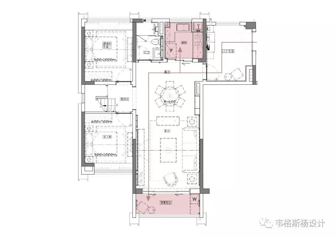
家政动线
:
从厨房到卫浴,再到家政间,一路畅通无阻,节省时间,完美处事。
会客动线:
开阔的会客空间,为多样化的会客方式提供了可能性。
功能区至卧室动线:
既无障碍,也能保持私密性,高效利用空间以节省时间。
二人世界——你与我的空间
开阔的首层既可接朋待友,又能为二人
日常
工作、生活所用。二层的浪漫私密,与首层的活跃形成分割对比,整个空间动静皆宜。
三口之家
——爱与希望的传承
合理的空间布局,为即将到来的小天使做足准备,让家里不会因成员突如其来而“兵荒马乱”。二层书房可转换为儿童房,贴近主卧,可使父母随时悉知孩子状况。
三代同堂
——共享天伦之乐
四室空间,既能三代同堂对住房大小的需求,亦能更好地满足各家庭成员对生活私密性的追求。
情景再现
BEING HOME
——回归休憩港
COOKING
——烹饪也是一种享乐
RESTING
——餐后谈论一天的心情故事
BATHING
——整天中最清爽的时刻
SLEEPING
——睡眠令人得到最大的放松
WAKING
——一日之计在于晨
人居理念
GREEN ECOLOGY
——使用天然生态、环保材料
根据广州的气候环境及周边景致,在空间上选用合适且贴近自然的材料,构造精致。
SMART HOME
——智能家居给生活带来便捷
利用智能化家居,可以为生活带来极大的便利。科技的进步提高了人们的生活品质,也逐渐改变着人们的生活方式。
项目过程
项目起始于2017年11月,历时一年半,
项目的定位是高端实用型复式别墅。因而,
我司与中冶集团多次商讨磨合,力求将中冶逸璟台这一项目打造得尽善尽美。凭借上百项的精工细节,俘虏了不少追求高品质的买家。
效果图(非本户型)
工地现场照
现代简约风格的设计,在任何时候都毫不过时。考虑到生活上
的
各种需求,
我们在空间里
添家了各项人性化配置,即使是广州内的楼盘都
少有
如此高的配备率。无论是楼盘的公共区域还是室内空间,灯光均由专业公司设计,以确保从步入园区到安坐家中都能有舒适的氛围及感受。该项目可谓从规划到实施,无不处处体现我们追求人与自然、人与人的和谐的宗旨。
后记
对人的尊重,体现在细节的延伸。我们将万亩山林美景奉献给大众,充分利用每个角落空间,推出养生式奢华的别墅,配套以各种人性化配置。
项目资讯:
中冶逸景台高层交楼标准样板房
开发商 :中冶置业集团
项目地点:广东 广州
设计面积:126
㎡
设计师 :张子伦 邝嘉欣
摄影师
:陈嘉献
主要材料:天然石材、硅藻泥、瓷砖、木地板、不锈钢
建筑设计单位:广东省轻纺建筑设计院有限公司
室内施工单位:北京丽贝雅建筑装饰工程有限公司
灯光顾问
:玖石(国际)设计顾问有限公司
软装设计单位:北京耘墨空间设计有限公司
广州市韦格斯杨设计有限公司
广州市凹凸工艺品有限公司
地址:
广州市海珠区新滘中路88号
唯品同创汇园区艾特利薇大街3号
020-83781048
电邮:
网站:
客服
消息
收藏
下载
最近














































