查看完整案例


收藏

下载
项目名称:江间阔影
设计单位:MOTIN 摩町设计
全案设计:姚思萌
项目地址:重庆市南岸区
项目面积:120㎡
项目投资:60W
竣工时间:2021 年底
项目摄影:琳琳
整体空间:客厅、餐区、主卧、主卫,四合一全开敞。
本案业主为一家三口,孩子即将住校,未来多年,房屋居住人员将以夫妻二人为主。在与业主深入交流后,我们决定打破私宅传统结构限制,打造一个以夫妻关系为主的浪漫、自由空间,展现家庭与个人的关系,营造居家生活情趣的多种可能性。
空间改造后,为一室两厅。厨房与客厅全开敞,主卧则设计在沙发后方。业主喜欢躺床上看电视,又不希望在卧室装电视,因此我们在客厅与主卧中间设计透光不透影的长虹玻璃滑门作为隔断。白天打开滑门,扩大客厅区域面积;晚上关闭滑门,实现卧室空间独立。
180°观景卫生区
业主喜欢居住区有大量采光,并酷爱泡澡,因此全屋采光最好的地方留给了主卫,实现泡澡、洗漱、淋浴、衣帽换取一体化。
考虑到房屋夫妻二人单独居住较多,我们同样在主卫与主卧之间设计了透光不透影的玻璃滑门,在隔绝水雾的同时,不影响采光。
|关于光线
原户型仅有单边采光,透光进深有限。
我们通过格局的改造,让日光尽可能地透进空间深处,增加空间通透性。
|关于风格&材质
空间整体为现代简约风。我们结合采光及户外景色,采用白色、大地色系、玻璃材质,扩大空间视觉感,并搭配木材质增加空间温馨感。
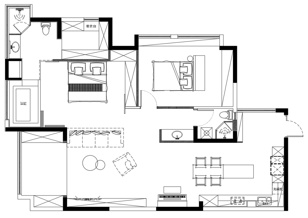
▲平面布置图
- 往期作品回顾 -
姚思萌
重庆建筑大学
重庆 Motin 摩町设计 创始人&设计总监
重庆市建筑室内设计联合会 理事
-国际-
2022 德国 IF 设计奖
2020 意大利 A’ Design Award 铜奖
2020 意大利 A’ Design Award 铁奖
2020 APDC 亚太设计精英邀请赛·商业佳作奖
2018 APDC 亚太设计精英邀请赛·商业佳作奖
-国内-
2022 祝融奖·酒店空间二等奖(西南地区)
2022-2023 设计千人
MOTIN 摩町招聘
室内设计师 | 室内设计助理 | 实习生
欢迎志同道合的朋友们加入我们
客服
消息
收藏
下载
最近












































