查看完整案例


收藏

下载
在这个快节奏的时代,越来越多的人厌烦了繁杂的事务,开始追求自然简单的美,推崇回归自然。本案呈现出原生态的肌理和质感,以质朴取代奢华,简约朴实却充满质感。
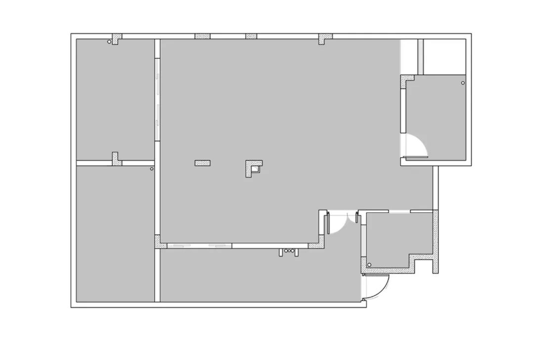
Negative First Floor
负一层
<< 滑动查看下一张图片 >>
负一层功能划分:厨房、餐厅、休闲区、公卫、老人房、门厅。
· 门 厅·
The Hallway
生活需要过渡,门厅满载着归家的仪式感,于此停顿,拂去一身疲惫,过渡到家庭生活,开启与家人美好的幸福时光。
· 餐 厅·
Dining Room
餐厅的设计,拉近了家庭成员之间的距离。朴实无华,自然装饰,盛放着高级之美。
原木色是对自然最好的诠释,搭配着让人眼前一亮的红砖,让整个家居环境散发出一种怡人的气氛。餐桌椅都是原木打造,简单、干净、纯粹。原木的就餐环境,增进食欲,舒缓心情。
· 厨 房·
The Kitchen
开放式厨房,有着宽敞中岛台,将功能性与形式感完美体现,提高餐厨空间颜值的同时,更能彰显主人的高端品位。
原木色泽淡雅,有着大自然的纹理,透露着优雅自然的气息,与水磨石台面完美搭配,让美食与幸福都在厨房发酵。
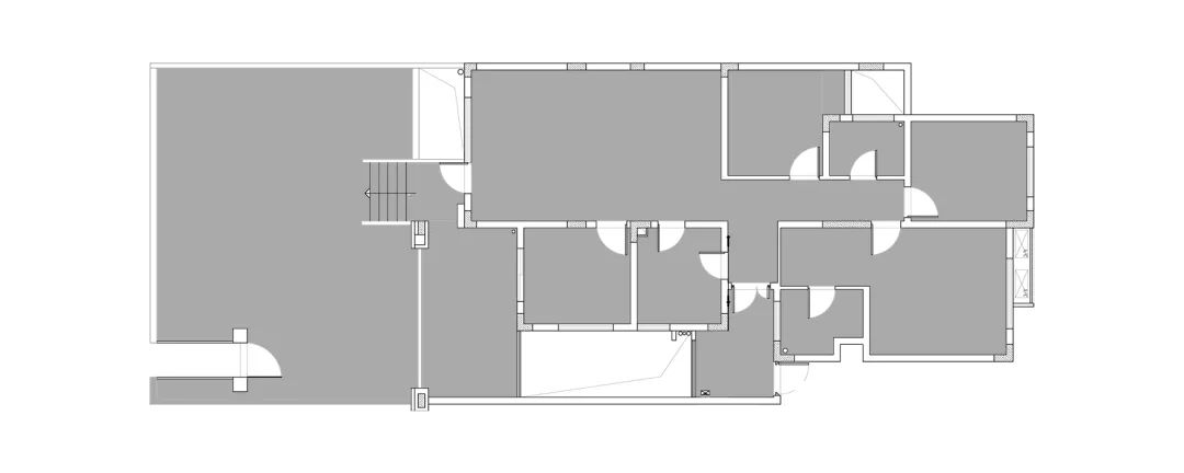
The First Floor
一层
<< 滑动查看下一张图片 >>
一层功能划分为:客厅、主卧套房、女孩房、男孩房、花园等。
· 客 厅·
Living Room
客厅与钢琴区隔而未断,形成一个开放式交友娱乐中心,设计师更多是想通过软装陈设,让这个家温暖一些。
奶油色的空间里,一切都以舒适慵懒为前提。整墙的储物柜替代了传统电视墙,满足业主在客厅读书的需求,营造出别样的气质。
· 主 卧 ·Master’s Room
主卧房间延续原木素雅的基调,与陈设品自然和谐地保持着某种平衡,重新解读物料的本质,演绎再造自然。
空间以低调的色彩氛围营造出淡雅安静的气息,伴着和煦的阳光,营造出慵懒惬意的氛围,赋予空间优雅,内敛含蓄的气质,让家居生活更加精致。
· 女孩房 ·
Girl’s Room
女孩房采用大量的原木作为墙面背景,造型可爱的粉色兔子床,搭配柔软舒适的床品,明亮、轻松、愉悦,给孩子一种温馨的甜蜜感。
· 男孩房 ·
Boy’s Room
男孩房简洁时尚的设计,令人轻松惬意。从软装着手,打造属于孩子的专属小天地。
「TRUST」
·致谢业主·
再次感谢如此优秀的客户通过严格筛选,最终选择信任我们 KD 人来帮助他们实现美好的居住梦想。
我们始终坚信,我们一定是一群能创造更多美好空间、美好生活的 KD 人。从过去、到现在、期未来,以原创设计,敬美好生活。让众多热爱生活之人,因恺邸生活更美好幸福。
项目信息
Project information
—
The project name
金科·阳光小镇
The project address
重庆九龙坡区
The project area
265 平米
The design of style
自然风
Design agency
KD 室内设计事务所
恺邸装饰
—END
—
客服
消息
收藏
下载
最近

































