查看完整案例


收藏

下载
形式的简单纯净和重复,是现实生活的内在、韵律。人们肉眼所见到的日常生活,本质上并没有那样丰富多彩。在简单枯燥的外表后面,是人们对生活和社会秩序的渴望和追求。用克制的力量战胜一切的形式感,去寻找简约带来的沉淀,感受内在的秩序和微妙的平衡感。
Negative Second Floor
负二层
改造后
负二层功能划分车库、入户、鞋帽间以及家庭室等空间。· 入户·Household Entry
暖色调的入户,让人归家即有温馨感。梯步的设计,增加了回家的仪式感。精致的小景,整洁的收纳,家的第一道风景就在眼前。
· 家 庭 室·
Leisure Area
家庭室的存在,让生活变得多元化。舒适的大尺寸沙发,大面积的书柜,为空间带入悠闲自在的情境。
Negative First Floor
负一层
改造后
负一层功能划分影音室、舞蹈室、健身区以及客房。
· 舞 蹈 区·
The Dance Area
舞蹈区和健身区相连,可相互切换。开阔的空间里,自由跳跃,或弹奏一曲,或翩翩起舞。在这静谧的空间环境里,放空自我,寻找真我。
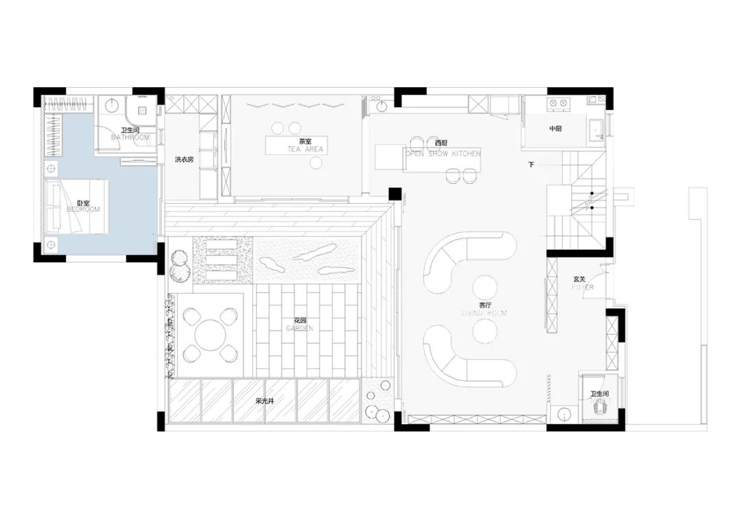
The First Floor
一 层
改造后
一层功能划分客厅、餐厅、厨房、茶室、老人房、户外花园等。
· 客 厅·Living Room
客厅确保家庭成员活动时享有舒适的空间外,以围合的组合方式,强调谈话交流的亲密感与舒适感,深咖与暖白色调的材质和线性灯展现了空间的无限延伸感。
· 茶室·
The Tea Room
穿过餐厨区可望见品茗区,延伸整体空间同时又保留相对的隐秘性,自然形成通透又独立的特性。在这个隐秘而独特的空间里,品一杯香茗,思索未来的生活。
The Second Floor
二层
改造后
二层功能划分为主卧套房以及两间儿童房、书房等。
· 主 卧 ·
Master’s Room
主卧大面积的落地窗,即享窗外美景,从繁华闹市中抽离,只有当下的宁静与美好,结束一天的疲惫,在这里重新演绎生活的千姿百态。
· 儿童房 ·
Children’s Room
儿童房细致地关照了孩子在日常生活的方方面面。学习、玩耍、生活,一样不差。摈弃传统的卡通风格,以沉稳的灰色基调铺开,搭配裸粉、咖色作点缀,赋予空间的甜美雅致。
「TRUST」
·致 谢 业 主 ·
再次感谢如此优秀的客户通过严格筛选,最终选择信任我们 KD 人来帮助他们实现美好的居住梦想。
我们始终坚信,我们一定是一群能创造更多美好空间、美好生活的 KD 人。从过去、到现在、期未来,以原创设计,敬美好生活。让众多热爱生活之人,因恺邸生活更美好幸福。
项目信息
Project information
—
The project name
龙湖·紫云台【第肆套】
The project address
重庆北碚区
The project area
450 平米
The design of style
现代风格
Design agency
KD 室内设计事务所
恺邸装饰
—END
—
客服
消息
收藏
下载
最近


















