查看完整案例


收藏

下载
- RESIDENCE
- 家作为我们得以喘息的自留地,自然要住的惬意,得享其静。生活本身,从不在别处,也无须刻意向外寻求,自在这一片天地之间。舒适度满满而又高颜值的家,是我们对美好未来的向往。
万科·江上明月 |RESIDENCE| 2021
The address:重庆江北区
The project area:210㎡
The Design style:简约原木风
Transformation features:本案设计师选用和谐统一的色调塑造空间,以舒适柔软的浅暖色系占据主导地位,再搭配原木材质作为空间的点缀,整体呈现干净纯粹的简约风格。空间中没有过多的矫饰,适量的留白塑造出现代原木主义的写意美感。
「FRIST FLOOR」
一楼
—
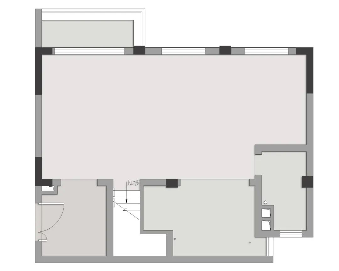
原始结构&平面布置
* BEFORE
一层为集客厅、餐厅、厨房、老人房、卫生间等功能为一体。
* AFTER
1.拆除入户对面半墙,增加柜体安装后入户空间尺度更好。
2.拆除原楼梯间靠厨房墙体,打开楼梯间的灰空间,便于景观设计与厨房采光。
3.拆除了冰箱后半墙,让冰箱厚度与橱柜一致。
4.拆除了原一楼长辈房墙体,让卧室和卫生间尺寸更加合理。
“时尚的生活美学”
Fashionable aesthetics of life
「入户」
设计师精心设计下沉式入户,打破常规入户的平面格局,通过高低的分割手法来造景,形成视觉上的凹凸感,看上去更有一番风味儿。
“温柔而暖煦”
Gentle and warm
「客厅」
素雅的米灰配色,点缀些许原木色,犹如让客厅蒙上微雾滤镜,营造温柔暖煦无压的居家氛围,奠定了沉静优雅的空间气质。整体质朴简约,没有跳脱的色彩,一切都恰到好处。
高级灰色的布艺沙发搭配方形的浅色羊毛地毯,赋予空间亲切感与舒适感。摒弃传统的大型茶几,而选用小巧的圆形边几,释放出更多空间,陪伴孩子玩耍。
“美好尽在其中”
This place deserves to be beautiful
「餐厅」
餐厅位于沙发背后,客餐厅开放式的设计使得空间具有一体感。原木色的餐桌餐椅,为空间带来暖意,给人温馨舒适的用餐环境。平行悬挂的吊灯,设计感十足,为餐厅带来足够的照明,同时也增强艺术氛围。
“多元有趣的烹饪空间”
Diverse and interesting cooking space
「厨房」
半开放式的厨房用吧台做隔断,既作为餐厨的分区,还能丰富厨房的功能,增强实用性。墙上门洞的设计增强了交流与互动,也使厨房空间更具通透感。
“轻盈通透的室内风景”
Light and transparent interior scenery
「楼梯间」
透过厨房大大的门洞,映出眼帘的是楼梯间小景,轻盈通透。
楼梯的设计改造往往承担着不止通行要道的功能,更是空间中精美的艺术造型,一道出彩的风景线。
“收纳美好时光”
Soak up the good times
「卫生间」
深灰色的大理石让浴室冷静时尚,原木色吊柜在暖色灯带的照耀下,烘托出温暖柔和的氛围,收纳着浴室里的美好时光。
“悠然的生活气”
Leisurely life
「老人房」
老人房采用榻榻米与书桌储物柜一体化设计,美观又实用。丰富细腻的肌理纹理,色彩温暖自然,大量原木将轻盈、舒适的质感渗透进空间,悠然的生活气息迎面而来。
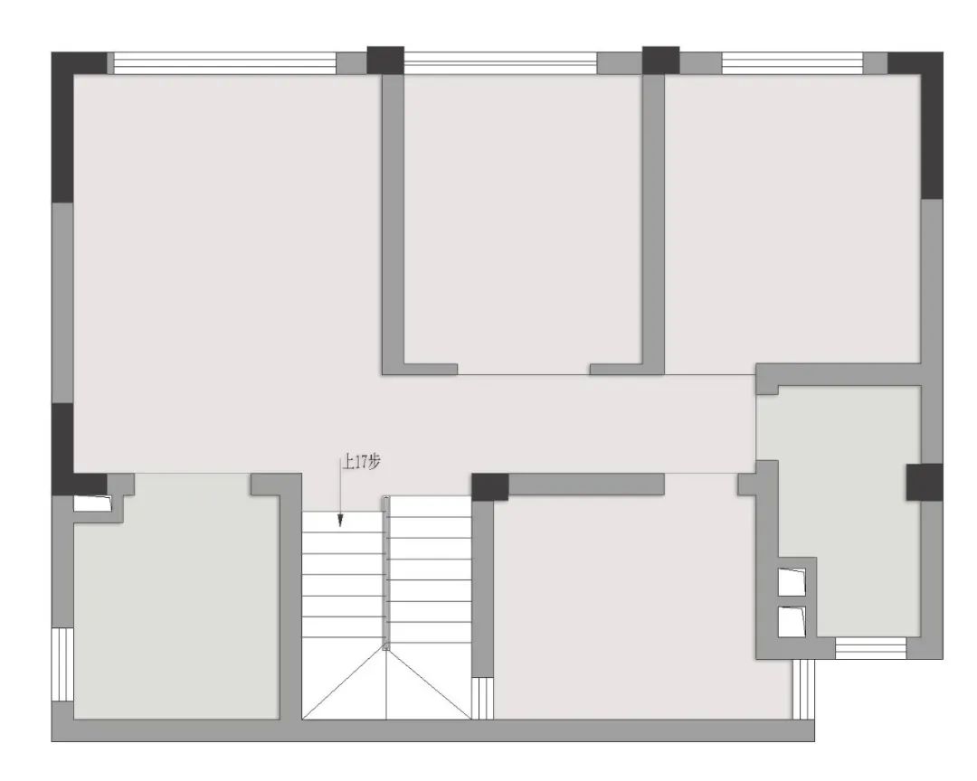
「SECOND FLOOR」
二楼
—
原始结构&平面布置
* BEFORE
二层为居住层,原本三个卧室。
* AFTER
拆除原三房结构,重新布局儿童房和主卧+配套书房格局。
“尽享每一刻自由时光”
Enjoy every moment of freedom
「主人房」
主卧展现出一种新的生活方式,高颜值的地台床让空间拥有更多可能性,百叶窗保证充足采光。此外,为了让休息区和衣帽间、书房互动性更强,设计师在墙上设计了一玻璃窗,居住体验大大升级,一股恰到好处的高级风与慵懒风扑面而来。
推开主卧套房的门,首先是女屋主梦想中的衣帽间,流畅动线紧密串连更衣间与主卧休闲区的关系,近一步推演心中的理想轮廓。
主卧的书房具备多功能储物能力和衣帽间自成一方小天地,白色与原木色的对比拉阔空间张力。临窗的定制书桌,舒适且治愈,和缓缱绻的暖阳透过百叶窗,伴着温热的微风入室,一切都慢了下来,春雨润物般地充实着心灵。
“安全实用”
Safe and practical
「儿童房」
儿童房同样运用了大量的环保原木定制设计,结合储藏柜、书架、书桌、床头与榻榻米,一体式解决日常储物以及未来孩子的学习需要。
“耐看的空间美学”
Durable space aesthetics
「卫生间」
卫生间中,设计师选用白色大理石与灰色瓷砖作为主要材质,营造干净纯粹的空间氛围。原木色的吊柜,与度假风墙砖,平衡了大面积的浅色,展现出简约耐看的空间美学。
「THE ROOFTOP」
顶楼
—
原始结构 & 平面布置
* BEFORE
原本屋顶没有空间区域的具体规划。
* AFTER
设计师巧妙的将这个空间设计为半开放式,让屋顶拥有强大的实用性与观赏性。功能划分为生活区、景观区、菜园区、健身区、BBQ 区及收纳区等功能。
“静谧的思悟空间”
Quiet space for reflection
「露台」
露台打造为了一处日式小景。枯山水、石灯笼……一个小小的角落,悉心的雕琢一番,便有了一隅禅意,将一种平和的感觉引入生活之中,让业主获得一份心灵的放松,享有一处静谧的思悟空间。
-THE END-
MORE CASES
点击图片即可获取更多案例详情
……
两江新宸云顶 大空间极简计划
约克郡壹号半岛 十里春风
绿城兰园 精致低奢 温暖有度
恒大华府 微光浮现
约克郡壹号半岛 冬日暖阳
东海定南山【叁】 岁月如歌
龙湖·紫云台【贰】千山阅 春沐
龙湖开元 时光魅影
约克郡【第叁套】上林 烟火
国宾壹号院 东方神韵
中洲半岛 现代与自然的互动
约克郡禧悦 演绎新时尚
龙湖·紫云台【第壹套】夏声
龙湖·春江天镜 自然主义休憩之所
龙湖椿山 纯粹之美
奥林匹克花园 简居简行
客服
消息
收藏
下载
最近


























































