查看完整案例


收藏

下载
点击视频 了解更多
如何重新定义旅居生活美学
整个酒店呈现城市卓越化生活方式的体验,以精致旅居遇见诗意生活。在方法、材料层面拆解重组,通过材质的创新赋予酒店以全新的语言。
设计师崇尚自然时尚的美感,避免矫揉造作的装饰,体现出对人与环境的友好,不浮夸不聒噪,简单好用。
『Commercial Space Design』
-2021-
THE DELICATEHOTEL 01
精致旅居
重庆丽呈别院·泊联汇坐落于重庆两江新区棕榈泉高端商业区,西临颐和高尔夫练习场,具有良好的观景视野;酒店东临爱琴海购物中心,地处北区商圈范围,具有良好的商业价值和景观资源;比邻金开大道,交通便捷,享受城市繁华中的一片宁静。
KD 软装设计团队在与甲方多次沟通中,为甲方量身定制了软装设计方案。共有客房 87 间,KD 室内设计团队融合现代艺术与轻奢主义,极力打造体验式的情景人居。
以舒适为出发点,结合居家、旅行、休闲等不同层面进行人性化思考,着力打造公园式高端商务酒店,满足高端人群的生活所需,为顾客提供顶级住宿体验。
此外,设计团队更加重视物品的陈列和空间的布局,家具陈设简洁而不简单 ,去掉多余的装饰,崇尚合理的构成工艺 ,尊重材料的特性 ,讲究材料自身的质地和色彩配置效果 ,着重体现舒适、精致与稳重的居住体验。独具匠心的设计让每位顾客都能在此收获舒适与幸福。
PROJECT ANALYSIS 02
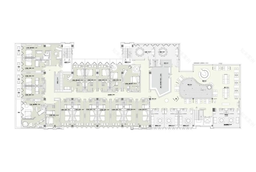
平面方案
#一层 Exhibition:一层为公共区,功能划分为接待台、自助餐厅、会议室等。
#二层 Exhibition:二层为入住区,共计 29 间客房。
#三层 Exhibition:三层为入住区,共计 29 间客房。
# 四层 Exhibition:
四层为入住区,共计 29 间客房。
THEME ELEMENTS03
软装方案
整体色彩方案
入户软装方案
接待大厅软装方案
自 助 餐厅 软 装 方 案
会议室软装方案
公区软装方案
亲子房软装方案
普通单间与标间软装方案
豪华客厅套房软装方案
豪华单间软装方案
茶室房软装方案
FURNISHINGS PROCESS
04 软装落地
软装选样
本案所有家具均由 KD 软装团队协力独家专属定制设计,并找专业的厂家制作,反复沟通修改,无论是颜色、材质还是形状都是经过大量考究对比,且对品质进行把控,以确保达到最满意的效果。
软装安装过程
KD 软装设计团队和质检人员正在进行现场软装验收以及安装,确定数量以及品质,尤其是定制产品,最终用完美的软装呈现来助力整体设计的落地。
SPACE PRESENTATION 05
实景展示
# 建筑外观:
酒店的设计灵感来源于六边形钻石的元素,设计应用钻石的切割及光泽的特点来塑造空间,从建筑感的平面布局到立面的细节都贯穿这一设计初衷,美轮美奂。
# 入户 #
入户处设计师匠心独运,打造出多个适合打卡拍照的网红原素,酒店大门旁拱门的绿植造型墙以及酒店形象墙旁的圆形灯光喷雾,迎合了时尚人士拍照打卡的需求,真正实现奢享旅居。
# 接待大堂 #
接待大堂的建筑空间运用精致的特殊玻璃结合水芯片的屏风及层架分出空间的段落,使得狭长的大堂区域营造出不同的空间场景。
接待吧台的设计延续钻石切割的处理手法,倾泻而下的发光艺术装置更让人眼前一亮。
# 自助餐厅 #
270°无遮掩观景自助餐厅,以高端西式加粤式菜式为主,辅以本土特色特殊早餐,打造重庆独有的特色自助早餐。设计师致力于营造休闲与艺术为一体的用餐体验,即使是一个角落,也想处处有美景。
独特的装饰也让整个餐厅更加饱满,让纯粹的空间也有格调。开放式的自助餐厅,其功能更加多样化,客人可以在此休息、谈事,也可以在此享受自助餐。同时,精致的空间设计,亦让用餐氛围更具仪式感,品味生活从生活品质开始。
# 会议室 #
精而美的会议室,让人享受到美食、艺术、休闲与商务相融合的高品质入住体验。无论是商务会议、行业交流或是培训教育、新品推介等等,都可以在这里举办。#休息区 #
作为入住区的公共休息区,这里是安静而休闲的。温暖明艳的色调,使人感到和谐、舒畅,能够产生最大程度的放松感。
# 电梯间 #
还未步入客房,电梯走廊就已经让人充满了期待。经典灰白色营造出的冷静的氛围,呈现出时尚、崭新的酒店体验。
# 舒适单间 #
房间的软装设计沿袭泊联汇品牌优雅且简洁的设计,客房中大量使用奢华且低调的材料,例如高档石材台面、山水意境硬包、散发雅致光泽的家具等。
# 舒适标间 #
每个房间的风格基本统一,却雷而不同,在细枝末节上,总能发现设计师隐藏的惊喜。每一间客房中都可以寻找到东方风格与现代轻奢无缝连接的元素,为入住者带去探秘的惊喜感。
标准间与单间拥有相同的格局,相同的功能,房间的活动区域更大。舒适的居住氛围,50 寸液晶电视,高端定制的床上用品以及家具,为展现重庆丽呈别院•泊联汇酒店入住的美好体验,客房内的装修设计更是精益求精。
# 精品单间#
东方元素的床头背景,视觉上增加了空间层次感。现代轻奢风的调性,为这个具有活力的城市的客人营造一种平静而奢华的氛围。在这个书味的房间,生活可以变得慵懒又简单而幸福。
# 豪华单间 #
豪华单间拥有 70 平米左右的面积。更高级的房型,室内面积更大,同时比基础房型多了沙发和独立的写字台,非常的有设计感。
# 豪华客厅套房#
阳光透过大面积的百叶窗将光与自然融进空间,慢慢将力量与激情聚合在床榻之上,房间里简单而随性,自由而惬意,这就是对生活最好的选择。
注重空间与材料的完美搭配,在原有空间意识形态基础上,保留原始空间的独特气质,注入新的活力,以材料的自然肌理与美的本质,表达无限的空间张力。
#豪华茶室房#
这个房间的搭配无论从色调还是家具摆放,都非常讲究。大面积留白与山水壁画的结合,降低了视觉上的压迫感,好似在展现延绵山脉与粼粼水中倒影,让空间更加有想象力。房间内的茶台让空间显得更加多元化,偶尔与朋友喝茶畅谈也别有一番趣味。# 豪华麻将套房 #
麻将房是为贴近重庆人热爱喝茶聊天打牌的生活特点,使得入住环境更生活化,更具有山城气息,从而给予住客精简而又不失格调的入住感受。
『 Trust 』
-致谢甲方-
再次感谢如此优秀的客户通过严格筛选,最终选择信任我们 KD 人来帮助他们实现美好的商业梦想及价值。
我们始终坚信,我们一定是一群能创造更多美好空间、美好生活的 KD 人。从过去、到现在、期未来,以原创设计,敬美好生活。让众多热爱生活之人,因恺邸生活更美好幸福。
项目信息
Project information
—
The project name
重庆丽呈别院·泊联汇
The project address
重庆两江新区金开大道
The project area
5500 平米
The design of style
现代轻奢
Design agency
KD 室内设计事务所
恺邸装饰
—
THE END
—
MORE CASES
·延伸阅读 ·
客服
消息
收藏
下载
最近












































































































