查看完整案例


收藏

下载
保罗·安德鲁曾说过
最好的建筑产生
是你能够重塑一个概念
而不是仅仅去包装他
我们便是要戒掉形同样板一般
不具表情的空间设计构造出
实际空间所能承载的美学及生活方式
满足业主的感性体验
复古是永不过时的潮流
潮流是不断翻新的复古
负一层
·Negative First Floor·
平面布置图&原始结构图
负一层功能划分为工作区和禅房。偶尔没有灵感时,可以去禅房放空自己。
一 层
·The First Floor·
平面布置图&原始结构图
一层功能划分为客厅、餐厅、厨房、多功能房等。原始结构客厅部分做了现浇的隔层,在一层二层的靠近阳台的位置做了挑高阳台的花园设计,因为占用了原始结构的阳台位置,所以重新打造了一个高度为5.8米的挑高阳台,来作为一层客厅和二层卧室的自然平台。
·客 厅·
本案为现代都市美式复古风,设计师通过这样的风格去诠释屋主对时尚品质生活的追求。
复古的红色与绿色的,铜板穿孔板与水泥地面,海洋蓝的贝壳砖与灰色的乳胶漆,黑色的玻璃与毛石梯步……让每一个亮点都能与屋主性格相互交流。
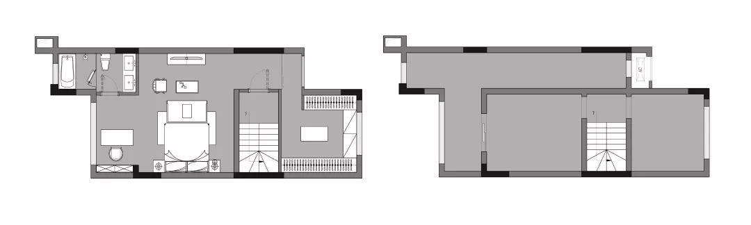
二 层
·The Second Floor·
平面布置图&原始结构图
二层功能划分为老人房和游戏房。
·老人房展示·
老人房设计为双人大床,起夜的时候不会打扰对方,在一个空间里,又便于彼此交流。
三 层
·The Third Floor·
平面布置图&原始结构图
三层功能划分为主人房和衣帽间。
·主人房展示·
主卧室整体以深灰色与黑色的辅助色调来调配复古的绿色,以暖性的光影调解黑色的感性,也是凝聚家中温度的象征。
四 层
·The Forth Floor·
平面布置图&原始结构图
四层功能划分为屋顶花园和洗衣区、晾晒区。
项目信息
Project information
—
The project name
金科中央华府
The project address
重庆南岸区茶园
The project area
330平米
The design of time
2019.6
Design agency
KD室内设计事务所
恺邸装饰
THE END
客服
消息
收藏
下载
最近














