查看完整案例


收藏

下载
快节奏的都市生活中
我们常常想慢一点
有天、有地、有花园
晨光斜照
花树成荫
鸟唱虫鸣
在自己专属的秘密花园里
赏花弄景
独享畅意时光
悠闲的生活由此展开
负二层
· Negative second floor·
平面布置图&原始结构图
<< 滑动查看下一张图片 >>
负二层功能划分为会客厅、健身区、活动区、鞋帽间等。
·娱乐室展示·
娱乐室,是业主放松解压的最佳场所。不管是来自工作的压力,还是生活琐碎的烦恼,都能在这个空间享受生活的美妙。
负一层
· Negative First floor·
平面布置图&原始结构图
<< 滑动查看下一张图片 >>
负一层功能划分为客房以及生活区。将原采光井位置作为生活区,负一楼挑空提高纵向通风采光及空间乐趣感。
一 层
·The first floor·
平面布置图&原始结构图
<< 滑动查看下一张图片 >>
一层功能划分为为客厅、餐厅、厨房、老人房、洗衣区以及花园。设计师设计改变厨房尺度,满足业主对厨房空间的需求。
·花园展示·
蜗居城市丛林,有一间庭院,已然成为一种奢侈的生活方式。庭院除了作为日常起居的生活空间,更是一种休养生息的精神家园。
院子,是人们田园梦具体的体现、意象化的象征。一花一木一家一人,在这一方院子里,孩子嬉戏,大人闲聊,有风景,也有温情。
·客厅展示·
全案点线面的手法,将整个空间表现得简洁明快且高级感十足,电视面的设计非常具有空间几何拉伸感,色彩运用浅色木质及米白色饰面为主,颜色处理干净温馨。
·餐厅展示·
宽敞明亮的一层公共领域空间,作全开放式设计。餐厅、西厨与客厅相连,创造出通透明亮的空间,同时也提高了空间的使用率。
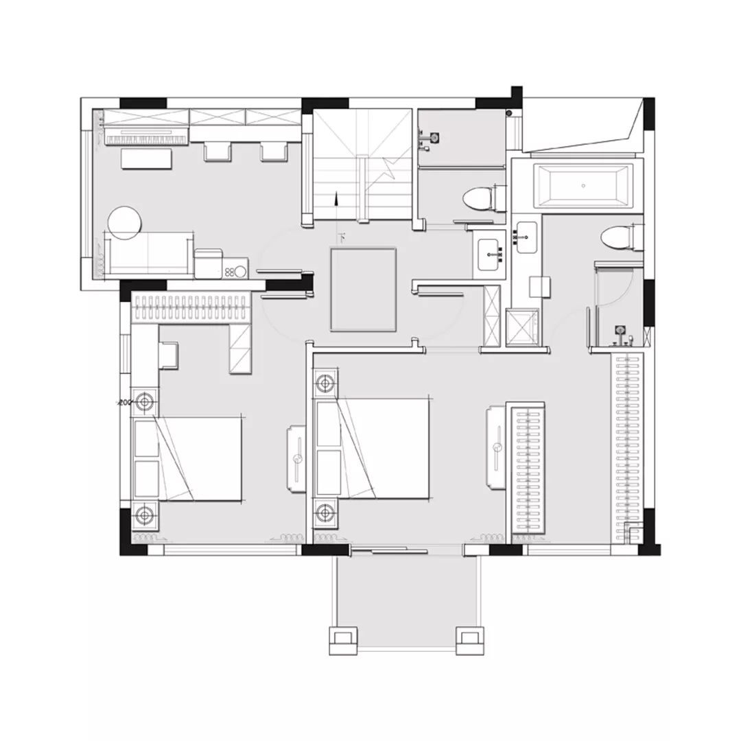
二 层
· The second floor·
平面布置图&原始结构图
<< 滑动查看下一张图片 >>
二层功能划分为主卧套房以及儿童房、书房等。打开原楼梯正对面窗户做成滑门,供主卧使用。
·儿童房展示·
男孩子的房间,以低调的深色为主,使孩子潜意识中趋向成熟稳重。同时搭配大面积的白色,让空间不会产生压抑的感觉。
·主卧展示·
明亮的室外美景通过阳台落地窗映入眼帘,主卧套房的设计,空间阔朗有型,以原木色、白色、灰色构成的简约空间,打造自然温馨浪漫二人世界。
项目信息
Project information
—
The project name
鲁能领秀城
The project address
重庆茶园
The project area
240平米
The Total cost
120w
Design agency
KD室内设计事务所
恺邸装饰
THE END
客服
消息
收藏
下载
最近



























