查看完整案例


收藏

下载
本案为现代简约风格,逆向思维,由面引出线,线引出点,点线面交融于一个干净而纯粹的空间,原汁原味的表现了一个高品质业主对于线条,比例的美感与追求。
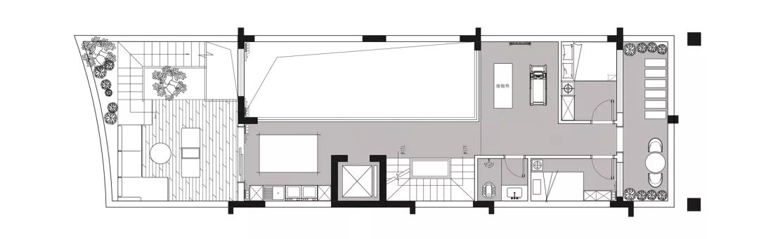
负二层
· Negative second floor·
· 平面方案&原始结构·
负二层由鞋帽间、会客厅兼观影区、儿童娱乐区、局部下沉花园组成。负二层车库入户后,进门可见整个横厅的挑空,地下层不再黑暗压抑。
· 会客厅·
会客厅布置在负二层,这里安静清幽有局部下沉的花园相伴,安放在地摊上的榻榻米式小茶几,能让业主和客人更悠闲轻松的交谈,木饰面与地砖颜色形成对比,让“素描画”瞬间变得立体起来。
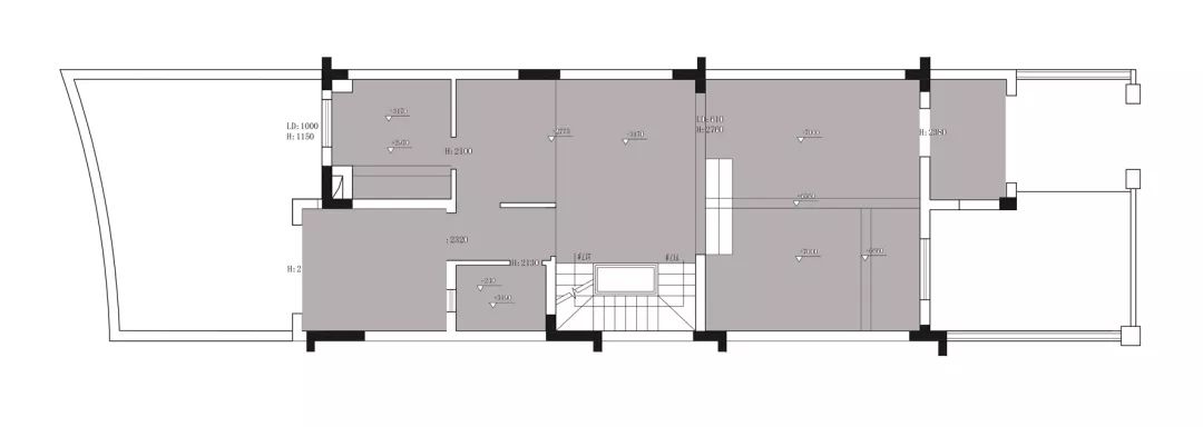
负一层
· Negative first floor·
· 平面方案&原始结构·
负一楼整个空间做了横向大挑空,将整个负一楼与负二楼的造型做到最大化形态,通风采光贯穿整个负一负二层。功能上满足的同时更能体现别墅的大气磅礴。
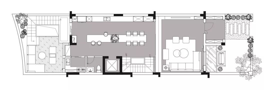
一层
· The first floor·
· 平面方案&原始结构·
一楼整体为共享空间;客厅、中厨、西厨、餐厅。
· 客 厅·
客厅简洁明块,木饰面与白色墙面相互交错,在整个空间中产生很强烈的序列感。色彩关系中木质色彩与白色墙面的色彩形成反差的同时划分黄金分割比,点线面的组成使整个空间更具有独特的艺术韵味,简约清爽而不失雅致。
· 餐 厅·
整个餐厅由石材与木质餐桌穿插而成,动线在使用中更加方便,孩子和父母一起做做手工、烘焙等一系列互动增添乐趣。更加大了整个空间的采光面及通风。从餐厅阳台出去,映入眼帘的是整个下沉式的后花园,可以直接下到负一层,增加了一楼与负一楼的互动性,并且最大化的解决负一楼的采光通风。
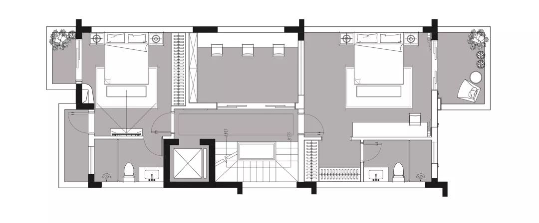
二 层
· The second floor·
· 平面方案&原始结构·
二楼整体空间划分为三个大空间,分别为老人房、儿童房、陪读玩耍区。
· 儿童房·
儿童房虽延续着整体的简约风,但无论是床头的小兔子壁画还是守在床边的大白Baymax,都在细节处体现着业主对孩子的呵护与关爱。
·老人房·
老人房与儿童房同处一层楼,有良好的朝向且空间开阔房型方正便于老人行走,选择有良好隔音功能的门窗保护老人睡眠每一天。
三 层
·The third floor·
· 平面方案&原始结构·
三楼整体设计为男女主人的私人空间;空间功能有入户玄关、衣帽间、书房、卫生间、休闲厅及卧室。
· 主 卧·
整个三楼都是男女主人的私人空间,主卧空间充足,为了方便日常生活我们为业主在电视墙设计了置物柜,小沙发放置在靠近落地窗的地方,能让业主独享美好时光。
· 书 房·
定制的整壁书柜和书桌同时满足了两个人的办公需要,小沙发舒适温馨。
项目信息
Project information
—
The project name
融创·凡尔赛
The project address
重庆两江新区
The project area
500平米
The design of time
2019.6
Design agency
KD室内设计事务所
恺邸装饰
THE END
客服
消息
收藏
下载
最近
























