查看完整案例


收藏

下载
位于南川的独栋别墅
设计师在美式风格基础上
简化美式的复杂繁琐元素
同时融入现代简约的设计
保留古典元素
让空间更符合现代审美
贴近现代都市人的生活
打造简约时尚的多元化生活
「Negative First Floor」
负一层空间
原始结构图
&
平面布置图
负一楼功能设置,集合了休闲、品酒、观影、棋牌,智能设备存储物品等功能区域。
# 休闲厅展示 #
休闲厅足够宽敞,方正有序。主区域是留给家庭主要娱乐—台球区,旁边是会客休闲区,也是接待朋友的备选之地。
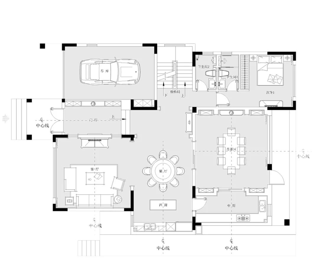
「The First Floor」
一层空间
原始结构图
&
平面布置图
一楼功能设置,集合会客厅、品茶区、餐厅、西厨、中厨以及老人房等功能区域。
# 客厅展示 #
美式挑高客厅,让空间更显气派,搭配经典的水晶吊灯,空间呈现出十足的品质感。
# 餐厅展示 #
餐厅空间,打破常规平庸的美式设计,采用简约美式的时尚感,高品质墙面硬装设计。色调上采用浅色系,在视觉体验上拉伸空间高度感。
# 茶室展示 #
茶室的整体色彩,保持在温馨的搭配比中,整体设计拥有非常浓厚的简约美感,通过对人文表现和设计技法的渲染达到新的设计高度。
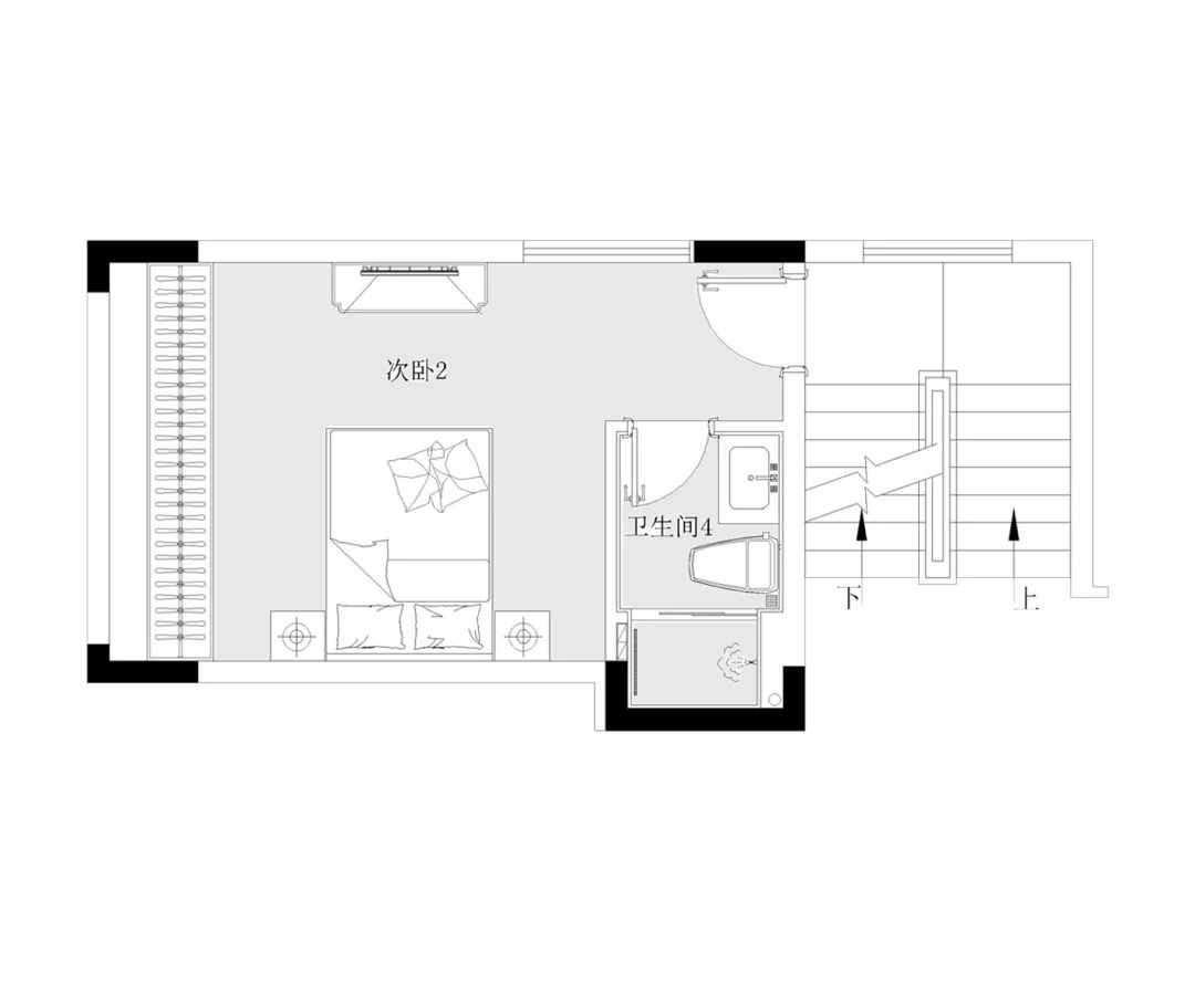
「Second Floor」
二层空间
原始结构图
&
平面布置图
二楼功能划分为小孩房、次卧、主卧、衣帽间以及主卫。
# 儿子房展示 #
儿子房主色调采用浅蓝色,为孩子营造一个健康成长的空间。
# 女儿房展示 #
打破常规女儿房的粉色系,灰色墙面点缀孔雀绿窗帘装饰品等,让空间呈现自然主义的时尚美感。
# 主卧展示 #
主卧堪称家里最美的一道风景。雾霾蓝清新优雅,点缀浅色系空间格外惊艳,一旁的衣柜,既实用又为主卧增添不凡的美感。
#书房展示 #
敞亮整洁的书房,是业主沉浸下来阅读的地方。大容量的书柜,满足业主对书籍的收藏需求。
# 主卫展示 #
多功能主卫,配备女业主喜欢的浴缸,也配备淋浴,满足多重沐浴需求。
「The Interlayer」
夹层空间
原始结构图
&
平面布置图
夹层功能主要设置为保姆房。
「The Top Floor」
顶楼空间
原始结构图
&
平面布置图
屋顶功能划分为洗衣区、晾晒区、观景区。
项目信息
Project information
—
The project name
南川天之娇
The project address
重庆南川
The project area
550平米
The design of time
2019.3
Design agency
KD室内设计事务所
恺邸装饰
THE END
客服
消息
收藏
下载
最近





























