查看完整案例


收藏

下载
这是一个百变宴会厅的设计思考
壹万平米的超大空间
极致浪漫的法式风情
致力打造最专业的宴会空间
全方面满足不同客户
对主题宴会的不同需求
·01·
「Building facades」
建筑外立面
建筑外观是端庄典雅的巴洛克风格。简洁、线条分明、对称,使人感到壅容华贵.典雅,富有浪漫主义色彩。
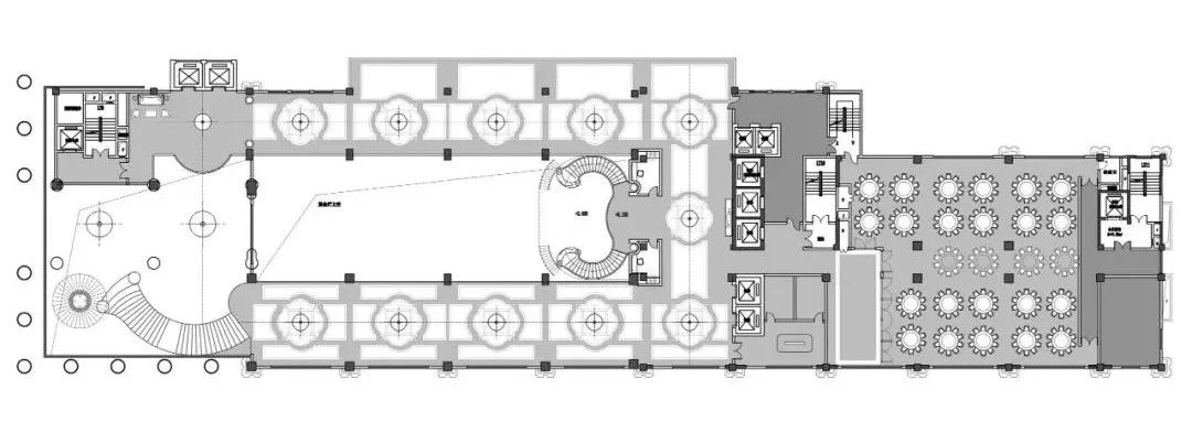
·02·
「The First Plane Layout 」
空间规划一
# 一层 #
大堂385平米
续厅115平米
宴会厅989平米
后勤152平米
# 二层 #
大堂840平米
续厅55平米
宴会厅409平米
后勤70平米
新娘房7*2平米
# 三层 #
续厅148+70平米
宴会厅900平米
包房106*2+45*5平米
新娘房16平米
后勤70平米
# 四层 #
续厅70平米
后勤1063平米
# 五层 #
续厅131平米
宴会厅593平米
包房28*6+40+46
新娘房44平米
休闲吧205平米
后勤94平米
·03·
「The First Plane Layout 」
空间规划二
# 一层 #
大堂215+90平米
续厅115平米
宴会厅754平米
后勤152平米
# 二层&三
层 #
大堂773平米
续厅55平米
宴会厅409平米
新娘房7*2平米
后勤70平米
# 五层 #
续厅131平米
宴会厅593平米
包房28*6+40+46平米
新娘房44平米
休闲吧205平米
后勤94平米
·04·
「Thematic analysis 」
主题分析
空间功能分布为:豪华宴会厅、中餐厅、休闲咖啡棋牌厅、宴会厅、户外宴会厅。
入口是宴会酒店的门面。大气豪华的法式巴洛克,营造出如梦似幻的意境。
一层殿堂喜宴,富丽堂皇的空间色彩,金色描边的细节,富贵又不失优雅,传达浓郁的法式风情。
二三层金色大厅,将巴洛克奢华、优雅与浪漫的华丽宫廷气息融入婚礼,巧妙的将法式风格建筑与现代花艺相结合。
五层梦幻礼堂,草地经过精心装点,在阳光之下与亲朋好友共同投入大自然的环抱,共享别致的婚礼氛围。
项目信息
Project information
—
The project name
壹万平米宴会餐厅的设计思考
The project address
重庆渝北区
The project area
5600平米
The all area
10000平米
The design of time
2016.9
Design agency
KD室内设计事务所
恺邸装饰
THE END
客服
消息
收藏
下载
最近


























