查看完整案例


收藏

下载
现代轻奢风倡导
“轻奢华 新时尚”的生活理念
是一种更尊重生活质量的生活方式
与财富地位无关
它代表着对高品质生活细节的追求
在强调秩序与功能的同时
将空间具化为
实用与美学交织相融的生命体
赋予空间轻奢雅致而舒适的生活氛围
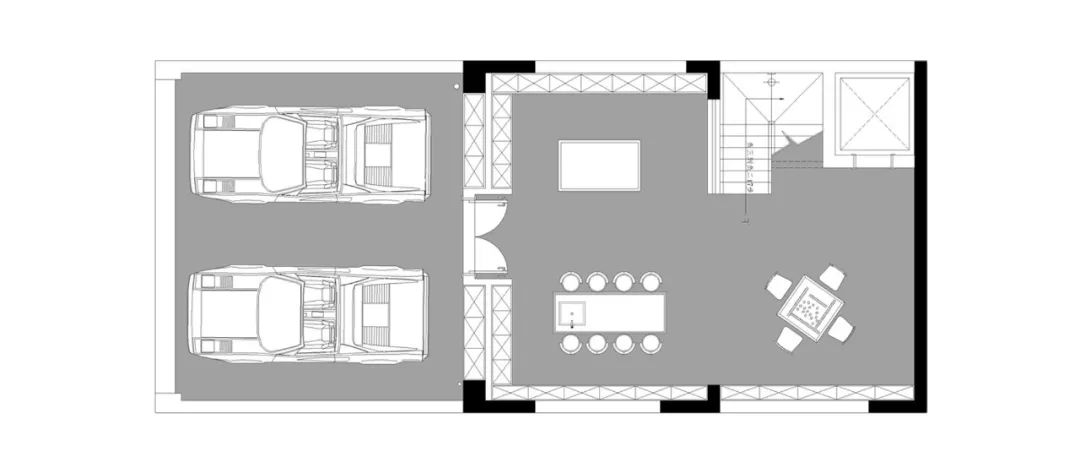
The Negativ Second Floor
负 二 楼
平面布置图&原始结构图
<< 滑动查看下一张图片 >>
负二层为车库和娱乐室。
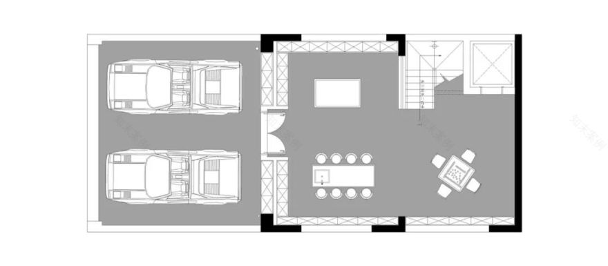
The Negativ First Floor
负 一 楼
原始结构图
<< 滑动查看下一张图片 >>
负一层为餐厅和西厨以及会客厅。
# 西餐厅 #
餐厅厨房作为一个整体空间,通透明亮;简洁的大理石吧台搭配精致的轻奢吊灯,简约中略带奢华,活化视觉节奏。
# 会客厅 #
会客厅一厅两用,既可以用于接待朋友,也可以作为独立书房。墙面上整笔嵌入式的书柜,既装饰了墙面,也成为必不可少的收纳空间。
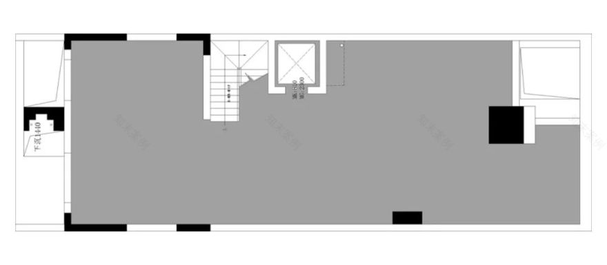
The First Floor
一 楼
平面布置图&原始结构图
<< 滑动查看下一张图片 >>
一层为客厅,以及老人房。
# 客厅展示 #
挑高的嵌入式书架作为负一层与一层的连接,在简洁线条中添加淡彩装饰,成为客厅一道靓丽的风景线。
客厅为现代轻奢风,将材料、色彩、灯光及元素进行简化,以实用的功能性家具为主,用简洁的视觉效果营造出时尚前卫的家居氛围。大理石墙面、富有设计感的吊灯、嵌入式储物柜背景墙,凸显整体空间显得高雅深邃。
The Second Floor
二 楼
平面布置图&原始结构图
<< 滑动查看下一张图片 >>
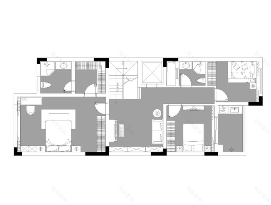
二层为家庭活动区以及两间儿童房。
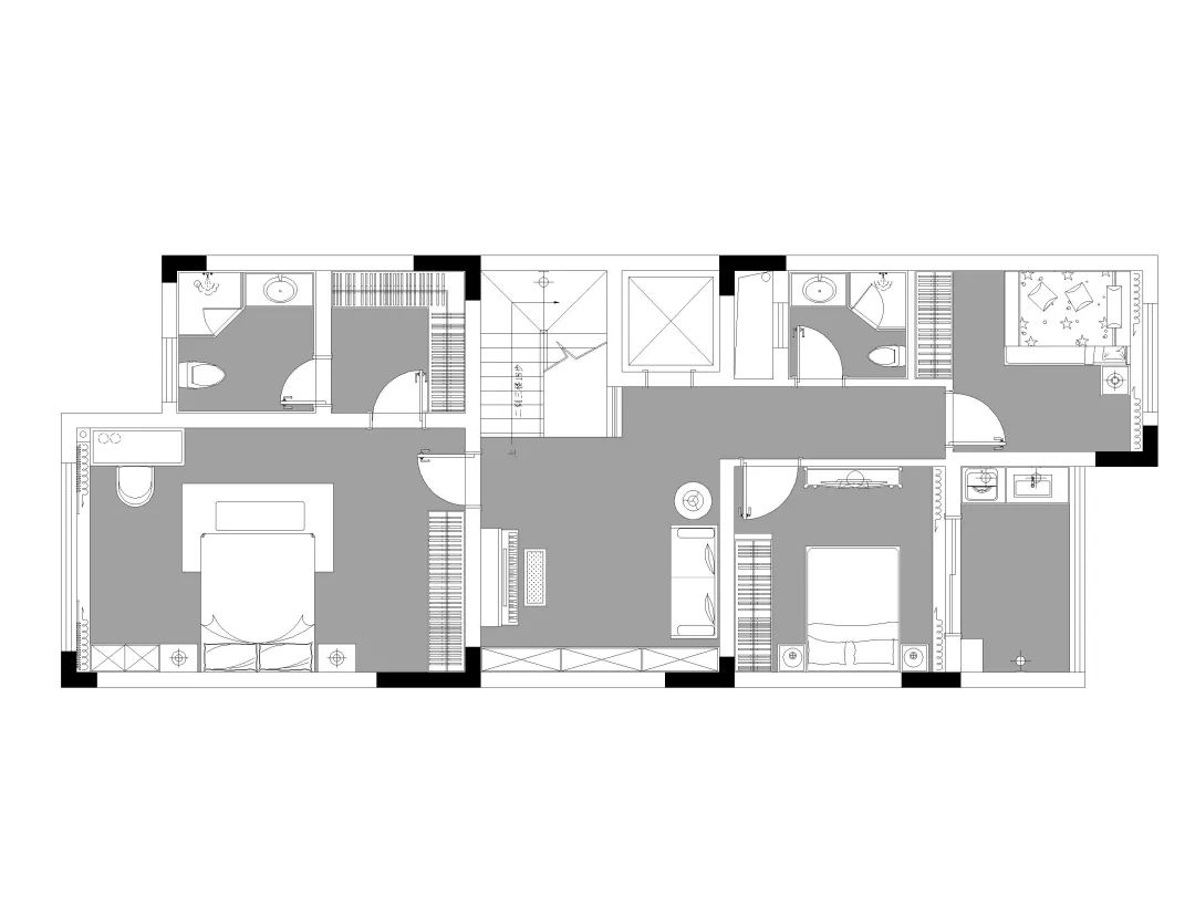
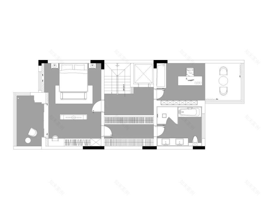
The Third Floor
三 楼
平面布置图&原始结构图
<< 滑动查看下一张图片 >>
三层为主人套房区,包括休息区、衣帽间、卫生间以及书房。
# 主卧 #
整个三层均为主人居住区,宽敞舒适的休息区,精致的摆设,呈现出来是对生活的追求和热爱,以及保持低调简洁,只享受生活原本的美好。
项目信息
Project information
—
The project name
约克郡·壹号湖畔
The project address
重庆两江新区
The project area
550平米
The design of time
2019.3
Design agency
KD室内设计事务所
恺邸装饰
THE END
客服
消息
收藏
下载
最近




























