查看完整案例


收藏

下载
年轻时尚的业主,从事互联网科技行业。设计师结合业主生活习惯,打造出极简高级灰住宅。整体以最低调的黑白灰三色为主,营造质感空间。设计比重在“灰”,平衡黑白界限,局部用暖色的大地黄在灰色的房间里透着温度。
The Negativ First Floor
负 一 楼
<< 滑动查看下一张图片 >>
负一层为公共区域,厨房、餐厅、客厅以及大露台。
# 休闲厅展示 #
考虑到业主工作的性质,在家办公时间较多。负一层为开放区,餐厅、吧台、客厅等,都可以看到工作学习区的影子。
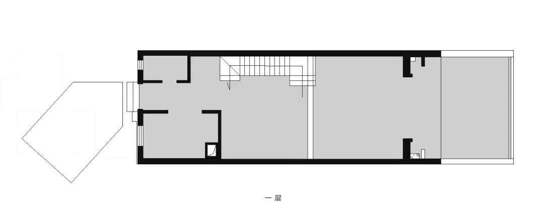
The First Floor
一 楼
<< 滑动查看下一张图片 >>
一层为两个老人套房和一个家庭活动区。
# 次卧展示 #
老人房预留了合适的尺寸,露台,电视机等等,让老年人也可以拥有更多丰富的生活。
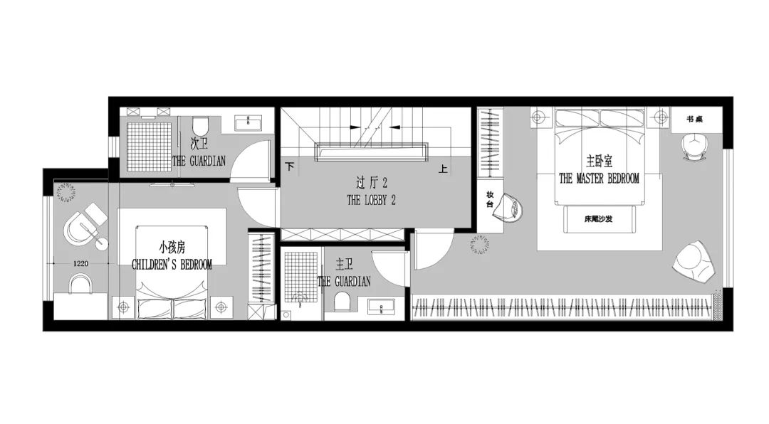
The Second Floor
二 楼
<< 滑动查看下一张图片 >>
二层为儿童套房和主卧套房。让每个家庭成员都拥有独立的私人空间。
# 儿童房展示 #
男孩房以白色为主色调,点缀以蓝色很黄色等明亮色,从色彩搭配到立体元素,都充满小清新的童趣。在这样的小天地里,留下的都是小绅士的成长印记。
#主卧展示 #
主卧起居室设计得很空,让房间足够大,储藏足够多。低调的黑白灰为主色,打造了一个舒适的质感睡眠空间。
The Third Floor
三 楼
<< 滑动查看下一张图片 >>
考虑到或许多年后家里会增添新成员,三楼预留了一件卧室。此外,平时这层楼主要作为娱乐区,用以接待朋友。
◆项目信息◆ Project information
◆项目名称:逸翠庄园
◆项目面积:360平米
◆设计风格:极简风格
◆设计机构
:
KD室内设计事务所
◆设计时间:2019.1
THE END
客服
消息
收藏
下载
最近
















