查看完整案例


收藏

下载
B & S _ STUDIO ShangHai. 2021 BORNTOCREATE
BS Studio
INDIVIDUAL HOUSECREATOR
BS DESIGN
DesignMaster
丁玮松 丁玮柏 王莹
DesignTeam
BS DESIGN TEAM
SruareMeters
89m2
Photograph
AR-J
星汇兰亭老房改造 - kunshan huaqiao,China
2021
Good things are always unique,
because she is always waiting for someone who appreciates her to appear.
.......
?
改造前
静寂的空间,原始的美感...
Quiet space, original beauty...
白色代表纯洁、干净、柔美,也映衬了无限的幻想。白色的清冷在木色的调和下也显的柔和起来。第一次与屋主的相见,言语之中畅谈对于家的各种设想,纯洁的笑容浮于面庞,每一次的方案各种奇思妙想也更加坚信了对于梦想里的家的改造...
每日梳妆,为了生活而奋斗,回到家的时候。褪去一身的疲倦,感受家的温暖...Daily dressing strives for life, when I get home. Get rid of your fatigue and feel the warmth of home...
打破原有厨房墙体限制,通过岛台+餐桌的形式进门的视觉亮点同时也借由此功能区块形成环游动线。
Breaking the limitations of the original kitchen wall, the visual highlight of entering the door through the form of island + dining table also forms a circular swimming line through this functional block.
桌上散落的柠檬也为空间增加了不少色彩...
慵懒的下午
坐在椅凳上,看一本书、喝一杯茶...
Lazy afternoon sitting on a chair and stool, reading a book, drinking a cup of tea...
灰色的结构梁体与吊顶的组合关系...
白色柜门不同数值的块面组合,线与面、宽与细的变化...地面局部的抬高与顶面的框体组合,共同构成了艺术空间...The combination of blocks and surfaces with different values of the white cabinet door, the changes in line and surface, width and thinness... The partial elevation of the ground and the combination of the frame on the top surface together constitute an art space...
线面与体块
石材的纹理也给静谧的空间增加了不少层次...
The texture of the stone also adds a lot of layers to the quiet space...
光影变化?趣味空间
顶面设计上运用了构造裸梁的结构,赋予灰色水泥漆的材质拉伸与周边的层次感,线条光的引入,也让原本的空间视野有了更多的层次。...The top surface design uses the structure of the bare beam, giving the gray cement paint material stretch and the surrounding layering. The introduction of line light also gives the original space vision more levels...
木与白的组合
一本书与两个人
玄关
一侧的烤漆玻璃墙体与镜子的组合,更好的扩充了进门的视野感,同时烤漆玻璃也是屋主平时叙事的一个地方...
The combination of the painted glass wall and mirror on the side of the entrance better expands the sense of vision when entering the door. At the same time, the painted glass is also a place where the homeowner usually narrates...
灯光语言
灯光的组合变化和空间关系相互交错...The combination of lights and spatial relationships are intertwined...?多功能空间
中间区域的功能性定义会更加偏向多元化,考虑到内部主要的功能分别为工作区域和家里临时偶尔来人需要休息的区域(相对频率不高的情况下),我们采用了可以折叠收拉的门,也是为了在不同时间段中去考虑空间的功能定义,也是最大化让空间的采光可以融入到公共活动区域...
折叠门与光影的组合
生活的愿景与态度
不同块面黑色的组合与白和木共同构成了简约温润的空间...The combination of different blocks of black and white and wood together form a simple and warm space...
移门动图的组合也展现了不同时间段空间的状态。
?主卧室
水泥漆与木色的组合,功能柜体的块面重组,床头有一角的壁灯也更好的为空间增加了不少暖度...The combination of cement paint and wood color, the block surface of the functional cabinet body is reorganized, and the wall lamp at the corner of the bed also adds a lot of warmth to the space...
ORIGINAL STRUCTURE | 原始结构图
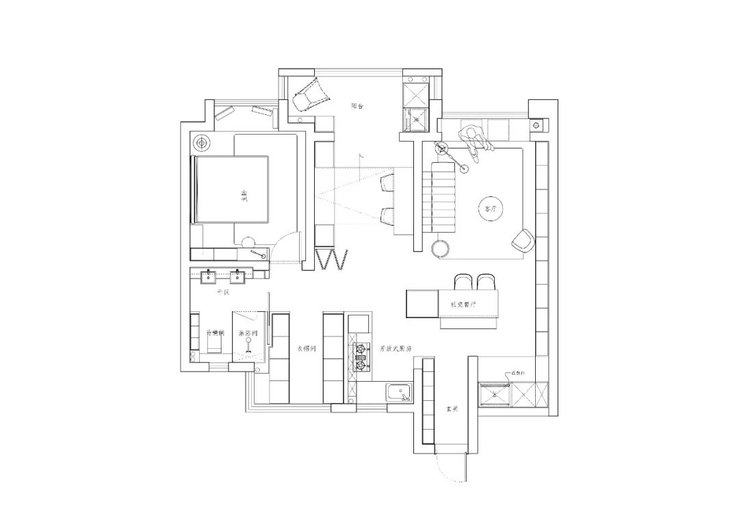
LANE PLAN|平面方案
CASE REVIEW
Good design takes time and needs to go through.......B & S DESIGNSTUDIO END
客服
消息
收藏
下载
最近

































