查看完整案例


收藏

下载
情景 | 空间 | 人文 | 诉求 | 功能 | 收纳
ShangHai . 2020
B&S
DESI
GN STUDI
O
项目坐标 | Location: 内蒙古-包头项目
项目面积 | Square Meters:140m2
项目类型 | Property: 私宅·住宅
设计机构 | Studio:B&S Design Studio
设计团队 | Team: 丁玮松 丁玮柏 王莹
Good things are always unique,
because she is always waiting for someone who appreciates her to appear.
.......
PUBLIC SPACE
-
翻转手机查看
本套户型为140m2户型,位于内蒙古包头的loft空间改造,空间层高4.6m,业主希望在现有的空间尺度中融入他们对于家的一些诉求,同时也希望在整体空间上有比较高的视野和行动趣味性,基于复式楼设计当中的重要环节楼梯位置的摆放和形式上的考究结合空间关系如何更好的丰富现有空间关系,我们将楼梯的位置结合一楼小孩房较大的开间去做了功能的划分,最大程度上保证了公共活动区域的尺度,公共区域的挑空则结合二层茶室,通过盒子的造型和固定玻璃让上下形成较好的互动感,厨房区域则通过两扇移门,根据使用功能的变化去决定厨房的开放和封闭....
整体设计风格,我们定义在现代简约,为了不强调风格本身的约束,
对于屋主所喜欢的元素进行了调和,重整 创新在不一样的空间形体上,通过黑白灰为主基调的元素,融入一定的木元素去增加空间自然的氛围...
转角柜体的设计通过木色门板与白色凹龛的组合增加空间层次,远处的玩偶与黑色漆背景形成对比,也更好的凸显出玩偶的独特性....
木色移门的另一侧是通往小孩房...
慵懒的下午坐在沙发上,看着窗外的景色,听听音乐,看看书,也别有
一番趣味..
PUBLIC SPACE
客厅看向餐厅的角度,黑白灰木的设计调性,上端的书房,木格子的设计,透过玻璃可以和楼下的人互动,也可以看到窗外的景色,在这里和朋友一起喝喝茶也是一番风味....
转角线条灯与现有顶面的关系去交相呼应,一侧的泥漆也更增加空间层次感....
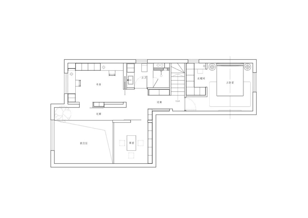
RIGINAL STRUCTURE | 原始结构图
PLANE PLAN | 平面方案
Good design takes time and needs to go through
........
CASE REVIEW
极简LOFT`建筑的手法表达空间情感
极致·简约
我和猫之间的故事 | 小户型放大术
自然·木-简约生活
粉色少女与蓝色先生的故事 | 家是个性的体现
.....
B
&
S
DESIGN STUDIO
END
客服
消息
收藏
下载
最近


















