查看完整案例


收藏

下载
情景 | 空间 | 人文 | 诉求 | 功能 | 收纳
ShangHai . 2019
B&S
DESI
GN STUDI
O
项目坐标 | Location: 上海
项目面积 | Square Meters:169m2
项目类型 | Property: 私宅
设计机构 | Studio:B&S Design Studio
设计团队 | Team: 丁玮松 丁玮柏
Good things are always unique,
because she is always waiting for someone who appreciates her to appear.
.......
PUBLIC SPACE
黑白灰+木成为了公区设计的主旋律,挑长的中岛台结合餐桌的体块形式,除去丰富造型的多样性,也让实际使用者在进行烹饪的过程可以最大化的节省效率,享受美食绘制过程的喜悦感
沙发的背面我们采用了水泥艺术漆,意在通过灰色作为中间的协调色拉开与远处柜体的对比感,丰富层次
右手边的飘窗台我们后期在造型上去做了一些变化,原始的尺寸太浅,可以得到的利用率比较低,考虑到客厅的开间是ok的,我们则扩大一部分占用客厅一定的尺寸,通过盒子的手法去处理这一面与周边的关系,拉升视觉效果。闲暇无事,想想坐在上面,看看窗外风景,也是一种乐趣
顶面不考虑过多的造型线条,通过装置性的长条挂灯与岛台+餐桌形成一种呼应拉伸从进门到窗景盒子的视觉纵深感。
顶面做了一些嵌入式铝合金灯条丰富整体照明层次,也可以更好的引导视线
电视墙采用了一些黄铜的元素去点缀空间,提高空间的品质感
LIVINGROOM LARGE SECTION SPACE
BEDROOM SPACE
卧室整体设计继续沿用之前的理念,不考虑过多的复杂造型,在顶面做了两个半弧的造型条口,满足了中央空调的出风回风问题,同样也增加了顶面的线条感
而另一侧则通过磁吸轨道去呼应,配上几个小巧的灯头
墙面的造型则采用线条更加密集的竖向格栅去强调视野的中心点,灰色的半墙则起到拉开空间层次关系也在视觉上让空间显得没这么高
红色的象鼻椅子也起到了非常好的点缀作用
白色的移门和灰色的艺术涂料起到了一个很好对比感
CLOAKROOM SPACE
BATHROOM SPACE
从卧室主入口进来,看到的不是一面墙而是我们特地设计的一扇通电玻璃,它可以保证进门视野的延申,也可以在需要隐私的时候给它镀上一层很漂亮的白膜,从而保证到整体空间光线的流通性,打破暗卫
造型设计上的超窄边框玻璃开门,保证了光线可以最大进入室内,也满足了屋主再泡澡时不喜欢太封闭的空间,可以更好的欣赏室内与窗外的光景
ORIGINAL STRUCTURE | 原始结构图
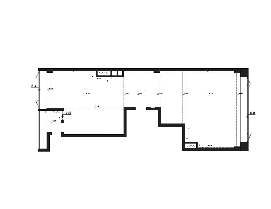
PLANE PLAN | 平面方案
Good design takes time and needs to go through
........
B
&
S
DESIGN STUDIO
END
客服
消息
收藏
下载
最近





















