查看完整案例


收藏

下载
情景 | 空间 | 人文 | 诉求 | 功能 | 收纳
ShangHai . 2019
B&S
DESI
GN STUDI
O
项目坐标 | Location: 上海·融信
项目面积 | Square Meters:480m2
项目类型 | Property: 私宅·别墅
设计机构 | Studio:B&S Design Studio
设计团队 | Team: 丁玮松 丁玮柏 王莹
Good things are always unique,
because she is always waiting for someone who appreciates her to appear.
.......
PUBLIC SPACE
整体设计风格延续黑白灰经典色系的搭配,避免黑白灰带来的强烈对比感而引起一定的空间单调,所以在空间设计元素里融入了一定的木元素去做配比,作为这套别墅地下空间,考虑到地下的采光量相对于楼上空间减少很多,所以在格局改造上避免过多实质的墙体,更多采用开放式的手法,结合不同功能直接的体块去串联空间,也最大化保证平时自然光线的引入
原有地下两层空间,我们通过改善楼板的方式。将地下客厅上方做一定的挑空,拉升纵向方向的视觉高度,从而最大化引进自然光
楼梯的另一侧则考虑作为小孩和家人娱乐互动的区域,零散的攀爬器具,一侧的白色爬梯,也方便大人爬上爬下,开放式的凹龛设计,摆放小孩和大人的一些物品...
白色体块的盒子串联了互动区和练舞房之间的关系,也丰富了原有空间动线,也更好的增加了空间结构感
练舞房则通过木 白的元素的融合,打造一个相对温和的空间,一侧的镜子也更好的放大空间视觉
PUBLIC SPACE
-
翻转手机查看
灯光是空间的语言,也强调拉伸空间层次....
PUBLIC SPACE
远处的镜面拉伸了远处的视觉长度,超长的岛台结合装置灯具,也形成了进门的视觉亮点
线条灯光很好的提升了空间层次感
个性的茶几组合
PUBLIC SPACE
挑高区域串联了负二层起居室与楼上女主人办公的区域,大面的开窗和黑色固定的金属增加空间结构感,同时也让天井的光线更好的进入每一个空间......
RIGINAL STRUCTURE | 原始结构图
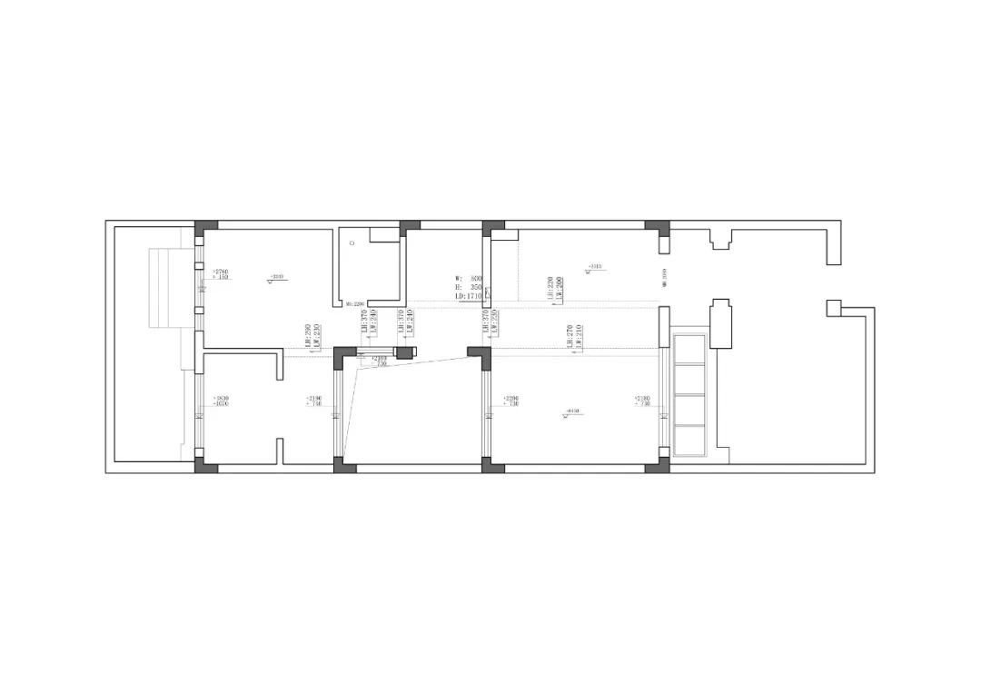
A NEGATIVE ONE PLAN | 负一层平面方案
A
NEGATIVE
TWO
PLAN | 负二
层平面方案
Good design takes time and needs to go through
........
CASE REVIEW
极简LOFT`建筑的手法表达空间情感
极致·简约
我和猫之间的故事 | 小户型放大术
自然·木-简约生活
粉色少女与蓝色先生的故事 | 家是个性的体现
B
&
S
DESIGN STUDIO
END
客服
消息
收藏
下载
最近




















