查看完整案例


收藏

下载
我们试图让整个空间通透清爽自然。运用大面积的留白,让整个空间呈现地比较干净简洁。同时没有运用过多的装饰手法,大量采用极简的设计手法,让整体空间更加沉稳又不缺细节。
We try to make the whole space clear and natural. Use a large area of blank space. Make the whole space clean and simple. At the same time, they did not use too many decorative techniques. Extensive use of minimalist design techniques. Make the overall space more stable without lack of detail.
在喧嚣繁忙的生活中,我们常常需要被治愈。百看不腻的奶油色调,彷佛自带自愈属性,可以让我们忘却烦恼,享受生活的美好。In the hustle and bustle of life, We often need to be cured. A creamy hue, Seems to have self-healing properties, It can make us forget our troubles, Enjoy the beauty of life. 1 LIVINGROOM 客厅
2 DININGROOM 餐厅
3 KITCHEN 厨房
4
BEDROOM
卧室
5 BATHROOM 卫生间
ENTERTAINMENT ROOM
娱乐室
7 SDTAIR 楼梯
8
AISLE
过道
9
BALCONY
阳台
10 GARDEN 花园
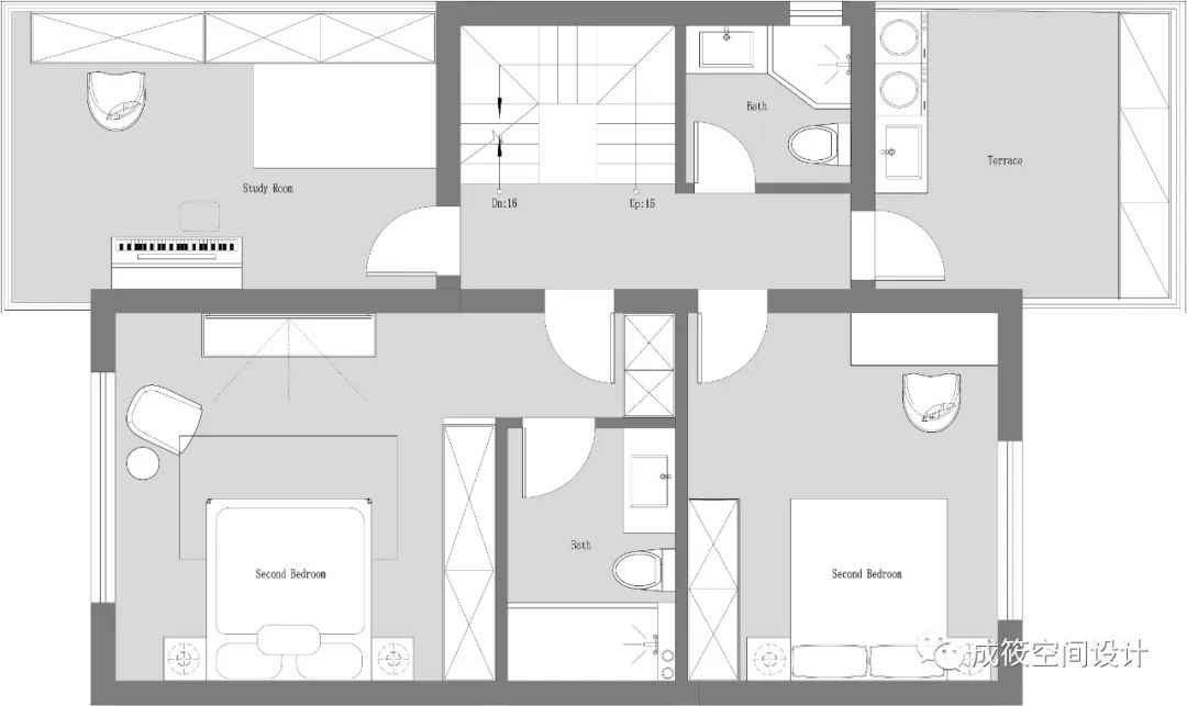
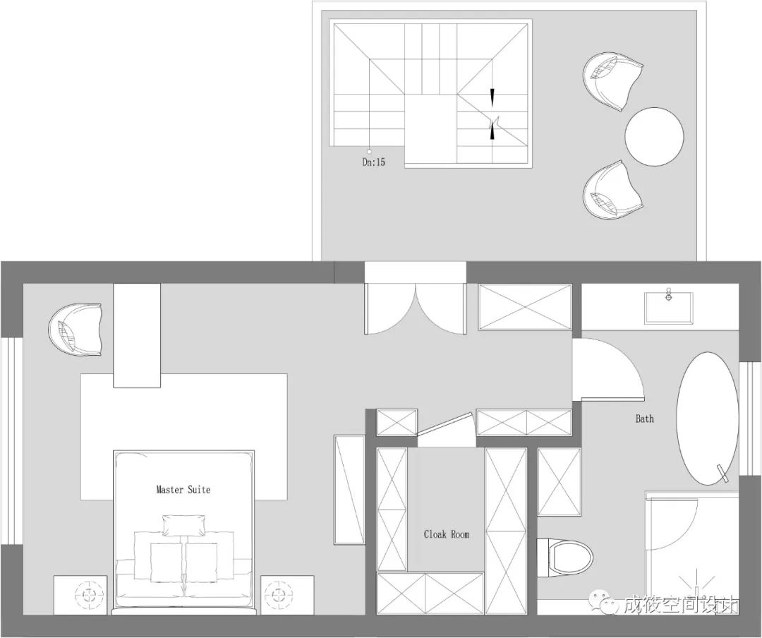
附户型图
项目面积 | 230㎡
项目户型 | 别墅
项目地址 | 上海
项目设计 | 成筱设计
客服
消息
收藏
下载
最近


































