查看完整案例


收藏

下载
住宅空间的趣味性,
便是不同的居住者投到空间的气息,
像一首好曲上独一无二的音符。
The interest of residential space,
That is, the breath of different residents into the space,
Like a unique note on a good song.
一晃而过的是岁月,
一闪而过的是青春;
一刻不停的是脚步,
一如既往的是人生.
Time flies by,
What flashed by was youth;
It's footsteps all the time,
As always, life.
1
LIVINGROOM
客厅
2
DININGROOM
餐厅
3
BEDROOM
卧室
4
SECOND BEDROOM
次室
5
GARDEN
花园
6
BATHROOM
卫生间
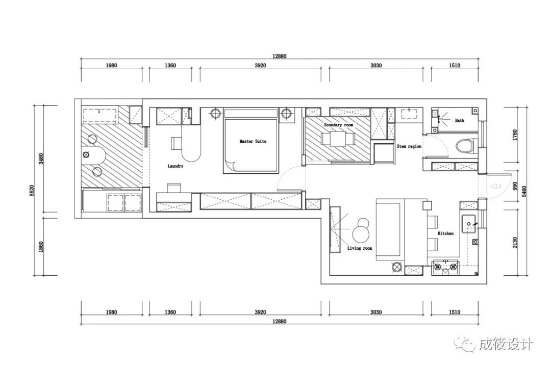
附
户型图
项目面积 |70㎡
项目户型 | 平层公寓
项目地址 | 黎明花园
项目设计 | 成筱设计
The project area is | 70m2
Project unit type | flat floor apartment
Project address | Dawn Garden
Project design | Chengxiaodesign
客服
消息
收藏
下载
最近



























