查看完整案例


收藏

下载
每一束灯光,每一间房子,
背后都是一个和谐的家,一种品质生活。
使用多样化的天然材料来表现空间氛围和设计感。
通过色彩和力量的混合,运用多种材质与色彩搭配,
强调特定房间的风格与特征。
Every light, every house,
Behind is a harmonious home, a quality of life.
Use a variety of natural materials to express the space atmosphere and sense of design.
Through the mixing of color and power, using a variety of materials and color matching,
Emphasize the style and characteristics of a particular room.
家是一个有温度的词,
它不仅是我们身体休息的地方,
更是我们心灵停靠的港湾。
——董卿
Home is a word with temperature.
It is not only a place for our bodies to rest,
but also a harbor for our hearts to dock.
—— Dong Qing
1
LIVINGROOM
客餐厅
2
BEDROOM
卧室
3
SECOND BEDROOM
次室
4
KITCHEN
厨房
5
BATHROOM
卫生间
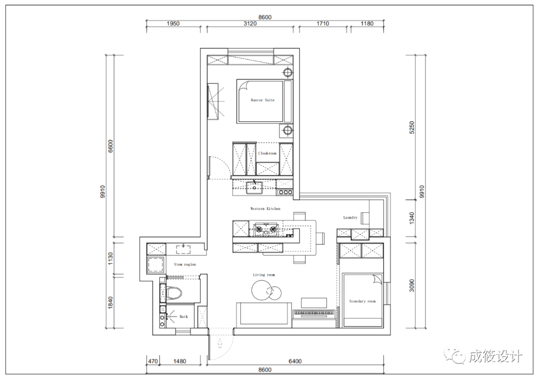
附
户型图
项目面积 | 50㎡
项目户型 | 平层公寓
项目地址 | 中山北路2380号白大楼
项目设计 | 成筱设计
The project area is | 50m2
Project unit type | flat floor apartment
Project address | White building, 2380 North Zhongshan Road
Project design | Chengxiaodesign
客服
消息
收藏
下载
最近






















