查看完整案例


收藏

下载
每一束灯光,每一间房子,
背后都是一个和谐的家,一种品质生活。
使用多样化的天然材料来表现空间氛围和设计感。
通过色彩和力量的混合,运用多种材质与色彩搭配,
强调特定房间的风格与特征。
Everylight,everyhouse,
Behindisaharmonioushome,aqualityoflife.
Useavarietyofnaturalmaterialstoexpressthespaceatmosphereandsenseofdesign.
Throughthemixingofcolorandpower,usingavarietyofmaterialsandcolormatching,
Emphasizethestyleandcharacteristicsofaparticularroom.
家是一个有温度的词,
它不仅是我们身体休息的地方,
更是我们心灵停靠的港湾。
——董卿
Home is a word with temperature.
It is not only a place for our bodies to rest,
but also a harbor for our hearts to dock.
——Dong Qing
1
LIVINGROOM
客厅
2
RESTAURANT
餐厅
3
BEDROOM
卧室
4 STUDY 书房
附
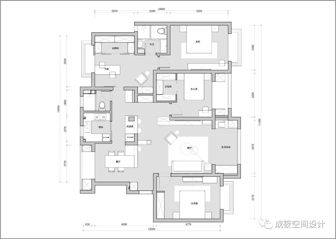
户型图
项目面积 |157㎡
项目户型 | 平层公寓
项目地址 | 上海龙翔家园
项目设计 | 成筱设计 The project area is | 157 m2 Project unit type | flat floor apartment Project address | Shanghai Longxiang home Project design | Cheng Xiao design
客服
消息
收藏
下载
最近




















